Upplýsingar
Verðsaga
122,6 m²
4 herb.
1 baðherb.
3 svefnh.
Þvottahús
Lyfta
Lýsing
BÓKIÐ SKOÐUN - SÝNUM SAMDÆGURS - Einar s 888-7979, Hlynur s. 698-2603, Glódís s. 659-0510, Helgi s. 893-2233, Vala s. 791-7500
Hraunhamar kynnir: Glæsilega nýbyggingu á frábærum stað í Vallarhverfinu í Hafnarfirði, einstakt útsýni yfir hraunbreiðuna og til fjalla.
Íbúðirnar afhendast fullbúnar með gólfefnum.
______________________
2ja,3ja og 4ra herbergja
Stærðir frá 67,9 fm til 123,1 fm.
Verð er frá 58 millj.
______________________
Tilbúnar til afhendingar. Sjá skilalýsingu hér.
ATH: Myndir eru af sýningaríbúð og getur skipulag íbúðar verið annað. Efnisval á innréttingum og gólfefnum er eins í öllum íbúðum.
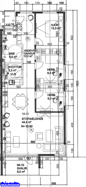
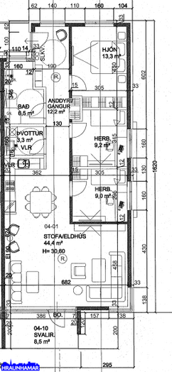
Íbúð 401 er 122,6 fm endaíbúð og þar af er 8 fm geymsla merkt 0122 ásamt 8,5 fm svölum.
Nánari lýsing skv. teikningu:
Forstofa með fataskápum og flísum á gólfi.
Gott opið rými, þar sem eldhús og stofa eru samliggjandi.
Eldhús með smekklegri innréttingu frá Axis og vönduðum eldunartækjum AEG.
Stofa/borðstofa er björt, þaðan er útgengt á rúmgóðar svalir.
Hjónaherbergi með fataskápum.
Tvö góð svefnherbergi með fataskápum.
Flísalagt baðherbergi með innréttingu, upphengdu salerni og sturtu.
Þvottahús er sér og innan íbúðar.
Geymsla í sameign er 7 fm.
Gólefni eru harðparket og flísar.
Húsið er klætt að utan með álklæðningu, og ál/tré gluggar.
Stórir gluggar þar sem útsýnið fær að njóta sín.
Kaupandi borgar skipulagsgjald þegar þess verður krafist sem er 0,3 % af væntu brunabótamati eignarinnar.
Suðurhella 12 er hluti af klasabyggingu þar sem skemmtilegur garður mun tengja húsin saman. Í stigaganginum eru 27 íbúðir.
Byggingaraðili hússins er ÞBF ehf. sem er reynslumikið og traust byggingarfélag.
Bókið skoðun hjá sölumönnum Hraunhamars:
Einar Örn Ágústsson, löggiltur fasteignasali, s. 888-7979, einar@hraunhamar.is
Hlynur Halldórsson, löggiltur fasteignasali, s. 698-2603, hlynur@hraunhamar.is
Valgerður Gissurardóttir löggiltur fasteignasali s.791-7500, vala@hraunhamar.is
Glódís Helgadóttir, löggiltur fasteignasali, s. 659-0510, glodis@hraunhamar.is
Helgi Jón Harðarson, sölust. s. 893-2233, helgi@hraunhamar.is
Skoðunarskylda:
Í lögum um fasteignakaup nr. 40/2002 er kveðið á um ríka skoðunarskyldu kaupenda á fasteignum. Hraunhamar fasteignasala vill benda væntanlegum kaupendum á að kynna sér vel ástand fasteigna fyrir kauptilboðsgerð og ef þurfa þykir að leita til sérfræðinga fyrir nánari ástandsskoðun.
Gjöld sem kaupandi þarf að standa straum af vegna kaupanna:
1. Stimpilgjald af kaupsamningi, fyrstu kaup (0,4%), almenn kaup (0,8%), lögaðilar (1,6%) af heildarfasteignamati.
2. Þinglýsingargjald af kaupsamningi, veðskuldabréfi, mögulegu veðleyfi o.fl. – kr. 2.700 kr. af hverju skjali.
3. Lántökugjald lánastofnunar er skv. verðskrá viðkomandi lánastofnunar.
4. Umsýslugjald til fasteignasölu skv. þjónustusamningi
Hraunhamar er elsta fasteignasala Hafnarfjarðar, stofnuð 1983.
Hraunhamar, í farabroddi í rúm 40 ár ! – Hraunhamar.is
Hraunhamar kynnir: Glæsilega nýbyggingu á frábærum stað í Vallarhverfinu í Hafnarfirði, einstakt útsýni yfir hraunbreiðuna og til fjalla.
Íbúðirnar afhendast fullbúnar með gólfefnum.
______________________
2ja,3ja og 4ra herbergja
Stærðir frá 67,9 fm til 123,1 fm.
Verð er frá 58 millj.
______________________
Tilbúnar til afhendingar. Sjá skilalýsingu hér.
ATH: Myndir eru af sýningaríbúð og getur skipulag íbúðar verið annað. Efnisval á innréttingum og gólfefnum er eins í öllum íbúðum.
Íbúð 401 er 122,6 fm endaíbúð og þar af er 8 fm geymsla merkt 0122 ásamt 8,5 fm svölum.
Nánari lýsing skv. teikningu:
Forstofa með fataskápum og flísum á gólfi.
Gott opið rými, þar sem eldhús og stofa eru samliggjandi.
Eldhús með smekklegri innréttingu frá Axis og vönduðum eldunartækjum AEG.
Stofa/borðstofa er björt, þaðan er útgengt á rúmgóðar svalir.
Hjónaherbergi með fataskápum.
Tvö góð svefnherbergi með fataskápum.
Flísalagt baðherbergi með innréttingu, upphengdu salerni og sturtu.
Þvottahús er sér og innan íbúðar.
Geymsla í sameign er 7 fm.
Gólefni eru harðparket og flísar.
Húsið er klætt að utan með álklæðningu, og ál/tré gluggar.
Stórir gluggar þar sem útsýnið fær að njóta sín.
Kaupandi borgar skipulagsgjald þegar þess verður krafist sem er 0,3 % af væntu brunabótamati eignarinnar.
Suðurhella 12 er hluti af klasabyggingu þar sem skemmtilegur garður mun tengja húsin saman. Í stigaganginum eru 27 íbúðir.
Byggingaraðili hússins er ÞBF ehf. sem er reynslumikið og traust byggingarfélag.
Bókið skoðun hjá sölumönnum Hraunhamars:
Einar Örn Ágústsson, löggiltur fasteignasali, s. 888-7979, einar@hraunhamar.is
Hlynur Halldórsson, löggiltur fasteignasali, s. 698-2603, hlynur@hraunhamar.is
Valgerður Gissurardóttir löggiltur fasteignasali s.791-7500, vala@hraunhamar.is
Glódís Helgadóttir, löggiltur fasteignasali, s. 659-0510, glodis@hraunhamar.is
Helgi Jón Harðarson, sölust. s. 893-2233, helgi@hraunhamar.is
Skoðunarskylda:
Í lögum um fasteignakaup nr. 40/2002 er kveðið á um ríka skoðunarskyldu kaupenda á fasteignum. Hraunhamar fasteignasala vill benda væntanlegum kaupendum á að kynna sér vel ástand fasteigna fyrir kauptilboðsgerð og ef þurfa þykir að leita til sérfræðinga fyrir nánari ástandsskoðun.
Gjöld sem kaupandi þarf að standa straum af vegna kaupanna:
1. Stimpilgjald af kaupsamningi, fyrstu kaup (0,4%), almenn kaup (0,8%), lögaðilar (1,6%) af heildarfasteignamati.
2. Þinglýsingargjald af kaupsamningi, veðskuldabréfi, mögulegu veðleyfi o.fl. – kr. 2.700 kr. af hverju skjali.
3. Lántökugjald lánastofnunar er skv. verðskrá viðkomandi lánastofnunar.
4. Umsýslugjald til fasteignasölu skv. þjónustusamningi
Hraunhamar er elsta fasteignasala Hafnarfjarðar, stofnuð 1983.
Hraunhamar, í farabroddi í rúm 40 ár ! – Hraunhamar.is
Ár
Fasteignamat
Kaupverð
Stærð
Fermetraverð
19. júl. 2024
5.710.000 kr.
40.000.000 kr.
10401 m²
3.846 kr.
Byggt á upplýsingum úr Þjóðskrá Íslands frá 2006-2025