Upplýsingar
Verðsaga
Byggt 2015
129 m²
4 herb.
2 baðherb.
2 svefnh.
Þvottahús
Útsýni
Sameiginl. inngangur
Hjólastólaaðgengi
Bílastæði
Lyfta
Lýsing
Betri Stofan fasteignasala og Atli S. Sigvarðsson fasteignasali kynna nýtt í einkasölu: Sérstaklega björt, falleg og vel skipulögð horníbúð á þriðju hæð með fallegu útsýni við Garðatorg Garðabæ, göngufæri er í alla helstu þjónustu. Alrými er stórt og fallegt, gott eldhús með vönduðum tækjum, eyju og steinefni á borðum. Rúmgóð hjónasvíta, tvö baðherbergi. Yfirbyggðar stórar og sólríkar svalir ásamt stæði í lokaðri bílageymslu.
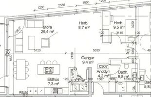
Eignin telur: forstofu / anddyri, stórt stofu og eldhúsrými, sjónvarpsrými (á teikningu þriðja herbergið), góða hjónasvítu, gestaherbergi, baðherbergi ásamt sér þvottahúsi. Góð geymsla í snyrtilegri sameign og stæði í bílageymslu.
Nánari lýsing:
Anddyri: Með góðum fataskáp.
Stofa / borðstofa / eldhús: Mynda saman opið og bjart alrými, útgengt er út á yfirbyggðar stórar svalir.
Eldhús: Falleg innrétting með vönduðum tækjum, steinefni á borðum og eldunareyju.
Sjónvarpshol: Opið við stofurýmið sem er mjög rúmgott (hægt að stúka af 3. herb. skv fyrri teikningu).
Hjónasvíta: Stórt svefnherbergi með góðum fataskáp, innaf því er gott sér baðherbergi með sturtu með einhalla og gleri.
Svefnherbergi: Gott með fínum fataskáp.
Baðherbergi: Flísalagt með hvítri innréttingu, góðri innréttingu og sturtu með einhalla og gleri.
Þvottahús: Flísar á gólfi. Góð innrétting, skolvaskur og tæki í vinnuhæð.
Svalir: Stórar, yfirbyggðar og sólríkar. Fallegt útsýni m.a yfir Garðabæ / Hafnarfjörð, Bessastaði og út á sjó.
Sameign: Mjög snyrtileg, gott bílastæði í bílageymslu og sér geymsla. Sameiginleg hjóla og vagnageymsla.
Fallegt ljóst parket á öllum rýmum, votrými eru flísalögð.
Þetta er einstaklega björt og falleg íbúð með frábæru útsýni, í göngufæri við alla helstu þjónustu.
Allar upplýsingar veitir Atli S. Sigvarðsson í síma 899-1178 eða atli@betristofan.is
Eignin telur: forstofu / anddyri, stórt stofu og eldhúsrými, sjónvarpsrými (á teikningu þriðja herbergið), góða hjónasvítu, gestaherbergi, baðherbergi ásamt sér þvottahúsi. Góð geymsla í snyrtilegri sameign og stæði í bílageymslu.
Nánari lýsing:
Anddyri: Með góðum fataskáp.
Stofa / borðstofa / eldhús: Mynda saman opið og bjart alrými, útgengt er út á yfirbyggðar stórar svalir.
Eldhús: Falleg innrétting með vönduðum tækjum, steinefni á borðum og eldunareyju.
Sjónvarpshol: Opið við stofurýmið sem er mjög rúmgott (hægt að stúka af 3. herb. skv fyrri teikningu).
Hjónasvíta: Stórt svefnherbergi með góðum fataskáp, innaf því er gott sér baðherbergi með sturtu með einhalla og gleri.
Svefnherbergi: Gott með fínum fataskáp.
Baðherbergi: Flísalagt með hvítri innréttingu, góðri innréttingu og sturtu með einhalla og gleri.
Þvottahús: Flísar á gólfi. Góð innrétting, skolvaskur og tæki í vinnuhæð.
Svalir: Stórar, yfirbyggðar og sólríkar. Fallegt útsýni m.a yfir Garðabæ / Hafnarfjörð, Bessastaði og út á sjó.
Sameign: Mjög snyrtileg, gott bílastæði í bílageymslu og sér geymsla. Sameiginleg hjóla og vagnageymsla.
Fallegt ljóst parket á öllum rýmum, votrými eru flísalögð.
Þetta er einstaklega björt og falleg íbúð með frábæru útsýni, í göngufæri við alla helstu þjónustu.
Allar upplýsingar veitir Atli S. Sigvarðsson í síma 899-1178 eða atli@betristofan.is
Gjöld sem kaupandi þarf að standa straum af ef að kaupum verður:
1. Stimpilgjald af fasteignamati fasteignar er 0.8%, en 0,4% fyrir fyrstu kaup og 1,6% fyrir lögaðila.
2. Þinglýsingargjald: kaupsamningi, skuldabréfi, veðleyfi, afsali o.s.frv. er kr. 2.700 af hverju skjali.
3. Lántökukostnaður samkvæmt verðskrá viðkomandi lánastofnunar.
4. Umsýslugjald til fasteignasölu skv. gjaldskrá.
Ár
Fasteignamat
Kaupverð
Stærð
Fermetraverð
7. jan. 2015
4.830.000 kr.
60.050.000 kr.
129.2 m²
464.783 kr.
Byggt á upplýsingum úr Þjóðskrá Íslands frá 2006-2025