Upplýsingar
Verðsaga
Byggt 2008
217,1 m²
6 herb.
2 baðherb.
4 svefnh.
Þvottahús
Bílskúr
Sérinngangur
Lýsing
ALLT fasteignasala kynnir í einkasölu eignina Holtsgötu 26, birt stærð er 217.1 fm sem skiptist í íbúðarrými 189.3 fm og bílskúr 27.8 fm.
Nánari upplýsingar veitir/veita:
Halla Vilbergsdóttir, Nemi til löggildingar fasteignasala í síma 772-7930, tölvupóstur halla@allt.is.
Ásta María Jónasdóttir, Löggiltur fasteignasali í síma 847-5746, tölvupóstur asta@allt.is
Nánari lýsing eignar:
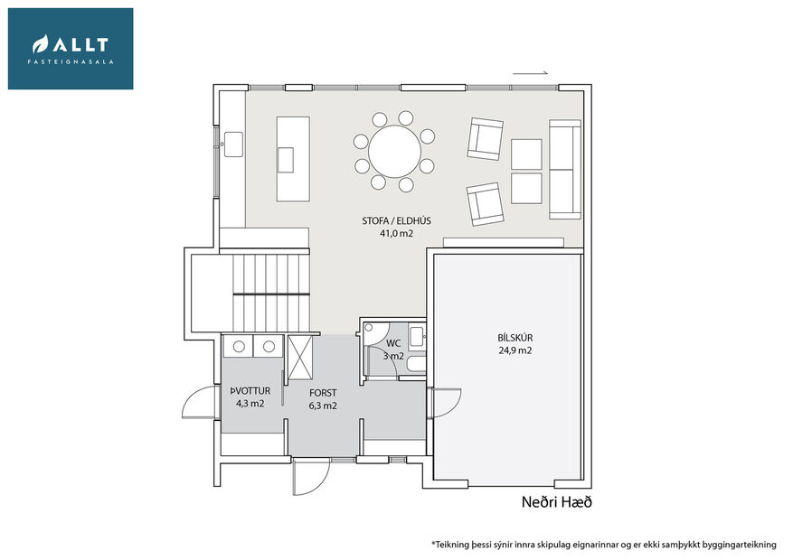
Neðri hæð:
Forstofa: Flísalagt með hvítum fataskáp og góðum hvítum skóskáp.
Þvottahús: Flísalagt, hvít innrétting fyrir þvottavél og þurrkara í vinnuhæð og hvít innrétting á móti með góðu vinnuborði og vask.
Baðherbergi: Flísalagt í hólf og gólf, hvít innrétting, vaskur, upphengt klósett og sturta.
Eldhús / Stofa: Er með ljósu harðparketi, falleg hvít innrétting með hvítri borðplötu, góðu skápaplássi og stórri eyju, í innréttingu er innbyggður ísskápur, innbyggð uppþvottavél og 77 cm span helluborð.
Eldhús, borðstofa og stofa eru samliggjandi með ljósu harðparketi og gengið út á pall frá stofu, innbyggð lýsing er í stofu og eldhúsi. Tengi fyrir Sonos hátalara í stofu og eldhúsi (hátalarar fylgja ekki)
Bílskúr: er með epoxý á gólfi og er innangengt frá forstofu.
Efri hæð:
Hjónaherbergi: Er með ljósu harðparketi á gólfi og góðum hvítum fataskáp og hurð út á suðursvalir.
Barnaherbergin eru 3: Eru öll með ljósu harðparketi og góðum hvítum fataskápum.
Baðherbergi: Flísalagt með Walk in sturtu, upphengt klósett, hvít innrétting með vask og hvítri borðplötu og stór hvít innrétting alveg upp í loft með góðu skápaplássi.
Sjónvarpshol: Er með ljósu harðparketi, möguleiki er að breyta í stórt herbergi.
Geymslu loft: Aðgengi uppá geymslu loft er í einu barnaherberginu, geymslu loft er yfir allri efri hæðinni.
* Allar innréttingar og fataskápar eru sérsmíðaðir af MG furniture.
* Allar innihurðar eru úr Birgisson.
* Öll gólfefni eru úr Birgisson.
* Heitur pottur.
* Stór pallur
* Stór innkeyrsla, pláss fyrir 5 bíla.
* Snjóbræðslukerfi í öllu bílaplani.
* Búið að leggja fyrir bílhleðslustöð (hleðslustöðin fylgir ekki með)
* Húsið var byggt 2008, eigendur kaupa húsið tilbúið til innréttinga 2018.
* Öll loftljós sem og veggljós fylgja með eigninni.
* Hör gardínur í stofu eru nýlegar og fylgja með eigninni.
Vertu tilbúin(n) þegar rétta eignin birtist – skráðu eignina þín í dag og tryggðu þér forskotið.
ALLT fasteignasala er staðsett á eftirfarandi stöðum:
Hafnargötu 91, 230 Reykjanesbæ - Þverholti 2, 270 Mosfellsbæ
Kostnaður kaupanda:
1. Af gjaldskyldum skjölum skal greiða 0,8% af fasteignamati ef kaupandi er einstaklingur, fyrstukaupendur 0,4% og 1,6% af fasteignamati ef kaupandi er lögaðili.
2. Þinglýsingargjald á hvert skjal er kr. 2.700.
3. Lántökugjald fer eftir verðskrá lánastofnunar hverju sinni.
4. Umsýslugjald til ALLT fasteignasölu er kr. 69.440 m/vsk.
5. Sé um nýbyggingu um að ræða greiðir kaupandi skipulagsgjald, 0,3% af brunabótamati, þegar það er lagt á.
Skoðunar- og aðgæsluskylda kaupanda:
Í lögum um fasteignakaup nr. 40/2002 er kveðið á um ríka skoðunarskyldu kaupenda á fasteignum. ALLT fasteignasala vill beina því til væntanlegs kaupanda að kynna sér ástand fasteignar vel við skoðun og fyrir tilboðsgerð. Ef þurfa þykir er ráðlagt að leita til sérfræðifróðra aðila. Forsendur söluyfirlits: Söluyfirlit þetta er samið af fasteignasala til samræmis við lög um sölu fasteigna og skipa nr. 70/2015. Upplýsingar þær sem koma fram í söluyfirliti þessu eru sóttar í opinberar skrár, frá seljanda og eftir atvikum til húsfélags. Seljandi veitir upplýsingar um eignina til samræmis við upplýsingaskyldu sína sbr. lög um fasteignakaup nr. 40/2002. Fasteignasali sannreynir að upplýsingar séu réttar með sjónskoðun á eigninni. Fasteignasali getur ekki fullyrt um ástand og eiginleika þeirra hluta fasteignar sem ekki eru aðgengilegir og sjást ekki með berum augum, eins og t.d. lagnir, dren, skólp og þak.
Nánari upplýsingar veitir/veita:
Halla Vilbergsdóttir, Nemi til löggildingar fasteignasala í síma 772-7930, tölvupóstur halla@allt.is.
Ásta María Jónasdóttir, Löggiltur fasteignasali í síma 847-5746, tölvupóstur asta@allt.is
Nánari lýsing eignar:
Neðri hæð:
Forstofa: Flísalagt með hvítum fataskáp og góðum hvítum skóskáp.
Þvottahús: Flísalagt, hvít innrétting fyrir þvottavél og þurrkara í vinnuhæð og hvít innrétting á móti með góðu vinnuborði og vask.
Baðherbergi: Flísalagt í hólf og gólf, hvít innrétting, vaskur, upphengt klósett og sturta.
Eldhús / Stofa: Er með ljósu harðparketi, falleg hvít innrétting með hvítri borðplötu, góðu skápaplássi og stórri eyju, í innréttingu er innbyggður ísskápur, innbyggð uppþvottavél og 77 cm span helluborð.
Eldhús, borðstofa og stofa eru samliggjandi með ljósu harðparketi og gengið út á pall frá stofu, innbyggð lýsing er í stofu og eldhúsi. Tengi fyrir Sonos hátalara í stofu og eldhúsi (hátalarar fylgja ekki)
Bílskúr: er með epoxý á gólfi og er innangengt frá forstofu.
Efri hæð:
Hjónaherbergi: Er með ljósu harðparketi á gólfi og góðum hvítum fataskáp og hurð út á suðursvalir.
Barnaherbergin eru 3: Eru öll með ljósu harðparketi og góðum hvítum fataskápum.
Baðherbergi: Flísalagt með Walk in sturtu, upphengt klósett, hvít innrétting með vask og hvítri borðplötu og stór hvít innrétting alveg upp í loft með góðu skápaplássi.
Sjónvarpshol: Er með ljósu harðparketi, möguleiki er að breyta í stórt herbergi.
Geymslu loft: Aðgengi uppá geymslu loft er í einu barnaherberginu, geymslu loft er yfir allri efri hæðinni.
* Allar innréttingar og fataskápar eru sérsmíðaðir af MG furniture.
* Allar innihurðar eru úr Birgisson.
* Öll gólfefni eru úr Birgisson.
* Heitur pottur.
* Stór pallur
* Stór innkeyrsla, pláss fyrir 5 bíla.
* Snjóbræðslukerfi í öllu bílaplani.
* Búið að leggja fyrir bílhleðslustöð (hleðslustöðin fylgir ekki með)
* Húsið var byggt 2008, eigendur kaupa húsið tilbúið til innréttinga 2018.
* Öll loftljós sem og veggljós fylgja með eigninni.
* Hör gardínur í stofu eru nýlegar og fylgja með eigninni.
Vertu tilbúin(n) þegar rétta eignin birtist – skráðu eignina þín í dag og tryggðu þér forskotið.
ALLT fasteignasala er staðsett á eftirfarandi stöðum:
Hafnargötu 91, 230 Reykjanesbæ - Þverholti 2, 270 Mosfellsbæ
Kostnaður kaupanda:
1. Af gjaldskyldum skjölum skal greiða 0,8% af fasteignamati ef kaupandi er einstaklingur, fyrstukaupendur 0,4% og 1,6% af fasteignamati ef kaupandi er lögaðili.
2. Þinglýsingargjald á hvert skjal er kr. 2.700.
3. Lántökugjald fer eftir verðskrá lánastofnunar hverju sinni.
4. Umsýslugjald til ALLT fasteignasölu er kr. 69.440 m/vsk.
5. Sé um nýbyggingu um að ræða greiðir kaupandi skipulagsgjald, 0,3% af brunabótamati, þegar það er lagt á.
Skoðunar- og aðgæsluskylda kaupanda:
Í lögum um fasteignakaup nr. 40/2002 er kveðið á um ríka skoðunarskyldu kaupenda á fasteignum. ALLT fasteignasala vill beina því til væntanlegs kaupanda að kynna sér ástand fasteignar vel við skoðun og fyrir tilboðsgerð. Ef þurfa þykir er ráðlagt að leita til sérfræðifróðra aðila. Forsendur söluyfirlits: Söluyfirlit þetta er samið af fasteignasala til samræmis við lög um sölu fasteigna og skipa nr. 70/2015. Upplýsingar þær sem koma fram í söluyfirliti þessu eru sóttar í opinberar skrár, frá seljanda og eftir atvikum til húsfélags. Seljandi veitir upplýsingar um eignina til samræmis við upplýsingaskyldu sína sbr. lög um fasteignakaup nr. 40/2002. Fasteignasali sannreynir að upplýsingar séu réttar með sjónskoðun á eigninni. Fasteignasali getur ekki fullyrt um ástand og eiginleika þeirra hluta fasteignar sem ekki eru aðgengilegir og sjást ekki með berum augum, eins og t.d. lagnir, dren, skólp og þak.
Ár
Fasteignamat
Kaupverð
Stærð
Fermetraverð
1. ágú. 2018
34.750.000 kr.
44.700.000 kr.
217.1 m²
205.896 kr.
16. ágú. 2016
20.000.000 kr.
13.500.000 kr.
217.1 m²
62.183 kr.
Byggt á upplýsingum úr Þjóðskrá Íslands frá 2006-2025