Löggiltir fasteignasalar innan Félags fasteignasala:
Úlfar Þór Davíðsson
Ingimar Ingimarsson
Stefán Jóhann Ólafsson
Brandur Gunnarsson
Davíð Ólafsson
Gunnlaugur Þráinsson
Böðvar Sigurbjörnsson
Börkur Hrafnsson
Einar Pálsson
María Mjöll Guðmundsdóttir
Victor Levi Ricciardi Ferrua
Reynir Erlingsson
Vista
svg

622

svg

498  Skoðendur

svg

Skráð  10. okt. 2025

raðhús

Úugata 30

270 Mosfellsbær

134.000.000 kr.

560.201 þ.kr./m2
Fasteignanúmer

F2524807

Fasteignamat

82.300.000 kr.

Brunabótamat

0 kr.

Áhvílandi

0 kr.

Arion banki – Reikna lán
Upplýsingar
svg
239,2 m²
svg
6 herb.
svg
2 baðherb.
svg
5 svefnh.
svg
Þvottahús
svg
Bílskúr

Lýsing

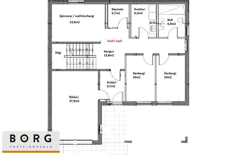
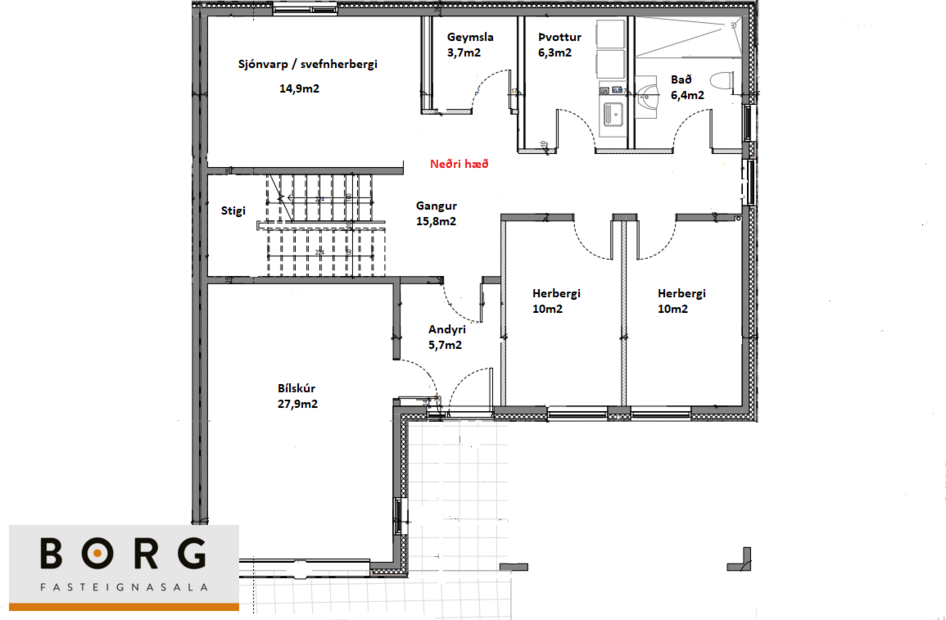
Borg fasteignasala kynnir: Nýtt forsteypt raðhús á tveimur hæðum við Úugötu 30 í Mosfellsbæ. Fimm rúmgóð herbergi, tvö stór baðherbergi. Eldhús og stofa í stóru alrými með útgengi út á stórar suð-vestur svalir. Sjónvarpsherbergi er skráð á teikningar en nýtist auðveldlega sem fimmta svefnherbergið. Þvottahús og geymsla. Stór bílskúr. Húsið er samtals 239,2 fm og þar af er bílskúrinn um 28 fm. 

Húsið mun afhendast fokhelt. Húsið verður fullbúið að utan, álklæðning á bakhlið, timburklæðning að hluta til að framan. Að innan eru veggir tilbúnir til spörslunar. Lagnagrind er tengd með gólfhita á neðri hæð. Rafmagnstalfan er tengd.  Bílskúrshurð með sjálfvirkum opnara. Að framan er lóðin fullbúin; búið að helluleggja bílaplan og tyrfa lóðina. Að baka til er búið að leggja grasþökur. Sjóbræðsla er tilbúin til tengingar. 

Byggingarstjóri er tilbúinn að vinna áfram með væntanlegum kaupendum. 

Upplýsingar veitir Davíð Ólafsson fasteignasali í síma 897-1533 eða david@fastborg.is


Seljandi greiðir heimtaugagjöld fyrir rafmagn og hita, en kaupandi greiðir 0,3% skipulagsgjald sem er innheimt við endanlegt brunabótarmat.

img
Davíð Ólafsson
Lögg.fasteignasali innan félags fasteignasala
Borg Fasteignasala
Síðumúla 23, 108 Reykjavík
Borg Fasteignasala

Borg Fasteignasala

Síðumúla 23, 108 Reykjavík
phone
img

Davíð Ólafsson

Síðumúla 23, 108 Reykjavík
Borg Fasteignasala

Borg Fasteignasala

Síðumúla 23, 108 Reykjavík
phone

Davíð Ólafsson

Síðumúla 23, 108 Reykjavík