Upplýsingar
Verðsaga
Byggt 2025
131,1 m²
4 herb.
2 baðherb.
4 svefnh.
Þvottahús
Sérinngangur
Lýsing
ALLT fasteignasala kynnir í einkasölu eignina Staðarborg 20A4, 190 Vogar, birt stærð 131.1 fm. Bókið skoðun!
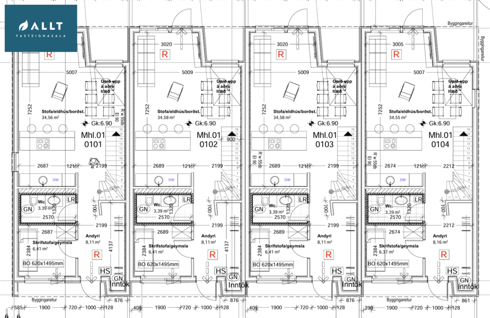
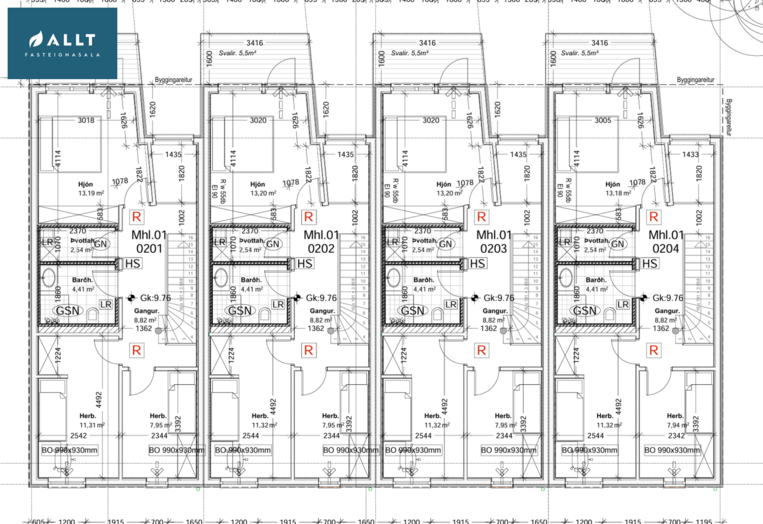
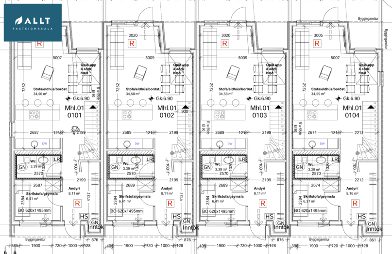
Nýtt fimm herbergja endaraðhús á tveimur hæðum við Staðarborg 20 í Grænubyggð. Gott sjávarútsýni af efri hæð hússins. Skipulag er fjölskylduvænt og hagkvæmt og hentar fjölskyldum afar vel. Alls eru fjögur svefnherbergi. Tvö baðherbergi og sér þvottahús. Íbúðarrýmið er bjart. Lagnir fyrir heitan og kaldan pott.
Eignin er tilbúin til afhendingar við kaupsamning.
Nánari upplýsingar veita:
Páll Þorbjörnsson Löggiltur fasteignasali, í síma 698-6655, tölvupóstur pall@allt.is.
Sigurjón Rúnarsson Löggiltur fasteignasali, í síma 560-5524, tölvupóstur sigurjon@allt.is
Nýjar fullgerðar íbúðir. Gólfefni eru gegnheill Askur og flísar.
Forstofa með flísum á gólfi.
Svefnherbergi / skrifstofa inn af forstofu.
Gestasalerni er flísalagt ásamt upphengdu salerni, hvítri innréttingu ásamt handklæðaofni.
Alrými er opið og rúmgott og samanstendur af stofu/borðstofu og eldhúsi. Aukin lofthæð og loftalýsing fullgerð. Úr stofu er útgengi út í sér garð með tengi fyri heitum og köldum potti.
Eldhús er með innréttingu frá Parka sem nær upp í loft með eyju. Kvarts steinn á borðum. Undirfelldur vaskur. Innbyggður ísskápur og uppþvottavél. Eldhústæki eru frá Electrolux
Innréttingar eru frá Parka og er kvarts steinn á borðum. Innbyggð ísskápur og uppþvottavél.
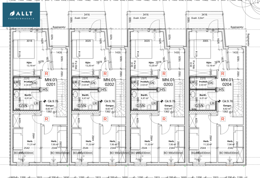
Efrihæð:
Glæsilegur stigi úr Aski er milli hæða sem setur fallegan svip á rýmið. Á efri hæð eru rúmgóðar svalir og glæsilegt sjávarútsýni.
Hjónaherbergi er rúmgott með útgengi á vestursvalir. Glæsilegt sjávarútsýni.
Barnaherbergi eru tvö, bæði í góðri stærð.
Baðherbergið er flísalagt. Sturta með sturtugleri, upphengt salerni, vaskur með hvítri innréttingu ásamt handklæðaofni.
Sér þvottaherbergi með flísum á gólfi og á veggjum upp í loft.
Aukin lofthæð yfir hluta rýmisins með fallegum gluggum á 1. og 2. hæð. Húsin er klædd að utan og viðhaldslétt. Tvö bílastæði fylgja enda íbúðum.
Verið velkomin í Grænabyggð – Vogum — þar sem lífsgæði mæta náttúrunni!
Í hjarta fjölskylduvæns hverfis í sveitafélaginu Vogar bíður þessi íbúð eftir nýjum eigendum. Grænabyggð og samfélagið státar af öflugri menntun fyrir börn og ungmenni, með áformum um nýjan leikskóla og stækkun grunnskóla á svæðinu. Íþróttafélagið Þróttur býður upp á fjölbreytt tómstundastarf og nálægð við strandlengju, gönguleiðir og golfvöll gefur færi á heilbrigðum lífsstíl allt árið um kring. Aðeins er um 10 – 15 mínútna akstur á höfðuborgarsvæðið, Bláa lónið og Keflavíkurflugvöll. Þetta er tækifæri til að fjárfesta í framtíðinni — bæði fyrir heimilið og lífið sjálft. Vertu í sambandi við okkur og bókaður skoðun, ALLT fyrir þig.
Vertu tilbúin(n) þegar rétta eignin birtist – skráðu eignina þín í dag og tryggðu þér forskotið.
ALLT fasteignasala er staðsett á eftirfarandi stöðum:
Hafnargötu 91, 230 Reykjanesbæ - Þverholti 2, 270 Mosfellsbæ
Kostnaður kaupanda:
1. Af gjaldskyldum skjölum skal greiða 0,8% af fasteignamati ef kaupandi er einstaklingur, fyrstukaupendur 0,4% og 1,6% af fasteignamati ef kaupandi er lögaðili.
2. Þinglýsingargjald á hvert skjal er kr. 2.700.
3. Lántökugjald fer eftir verðskrá lánastofnunar hverju sinni.
4. Umsýslugjald til ALLT fasteignasölu er kr. 69.440 m/vsk.
5. Sé um nýbyggingu um að ræða greiðir kaupandi skipulagsgjald, 0,3% af brunabótamati, þegar það er lagt á.
Skoðunar- og aðgæsluskylda kaupanda:
Í lögum um fasteignakaup nr. 40/2002 er kveðið á um ríka skoðunarskyldu kaupenda á fasteignum. ALLT fasteignasala vill beina því til væntanlegs kaupanda að kynna sér ástand fasteignar vel við skoðun og fyrir tilboðsgerð. Ef þurfa þykir er ráðlagt að leita til sérfræðifróðra aðila. Forsendur söluyfirlits: Söluyfirlit þetta er samið af fasteignasala til samræmis við lög um sölu fasteigna og skipa nr. 70/2015. Upplýsingar þær sem koma fram í söluyfirliti þessu eru sóttar í opinberar skrár, frá seljanda og eftir atvikum til húsfélags. Seljandi veitir upplýsingar um eignina til samræmis við upplýsingaskyldu sína sbr. lög um fasteignakaup nr. 40/2002. Fasteignasali sannreynir að upplýsingar séu réttar með sjónskoðun á eigninni. Fasteignasali getur ekki fullyrt um ástand og eiginleika þeirra hluta fasteignar sem ekki eru aðgengilegir og sjást ekki með berum augum, eins og t.d. lagnir, dren, skólp og þak.
Nýtt fimm herbergja endaraðhús á tveimur hæðum við Staðarborg 20 í Grænubyggð. Gott sjávarútsýni af efri hæð hússins. Skipulag er fjölskylduvænt og hagkvæmt og hentar fjölskyldum afar vel. Alls eru fjögur svefnherbergi. Tvö baðherbergi og sér þvottahús. Íbúðarrýmið er bjart. Lagnir fyrir heitan og kaldan pott.
Eignin er tilbúin til afhendingar við kaupsamning.
Nánari upplýsingar veita:
Páll Þorbjörnsson Löggiltur fasteignasali, í síma 698-6655, tölvupóstur pall@allt.is.
Sigurjón Rúnarsson Löggiltur fasteignasali, í síma 560-5524, tölvupóstur sigurjon@allt.is
Nýjar fullgerðar íbúðir. Gólfefni eru gegnheill Askur og flísar.
Forstofa með flísum á gólfi.
Svefnherbergi / skrifstofa inn af forstofu.
Gestasalerni er flísalagt ásamt upphengdu salerni, hvítri innréttingu ásamt handklæðaofni.
Alrými er opið og rúmgott og samanstendur af stofu/borðstofu og eldhúsi. Aukin lofthæð og loftalýsing fullgerð. Úr stofu er útgengi út í sér garð með tengi fyri heitum og köldum potti.
Eldhús er með innréttingu frá Parka sem nær upp í loft með eyju. Kvarts steinn á borðum. Undirfelldur vaskur. Innbyggður ísskápur og uppþvottavél. Eldhústæki eru frá Electrolux
Innréttingar eru frá Parka og er kvarts steinn á borðum. Innbyggð ísskápur og uppþvottavél.
Efrihæð:
Glæsilegur stigi úr Aski er milli hæða sem setur fallegan svip á rýmið. Á efri hæð eru rúmgóðar svalir og glæsilegt sjávarútsýni.
Hjónaherbergi er rúmgott með útgengi á vestursvalir. Glæsilegt sjávarútsýni.
Barnaherbergi eru tvö, bæði í góðri stærð.
Baðherbergið er flísalagt. Sturta með sturtugleri, upphengt salerni, vaskur með hvítri innréttingu ásamt handklæðaofni.
Sér þvottaherbergi með flísum á gólfi og á veggjum upp í loft.
Aukin lofthæð yfir hluta rýmisins með fallegum gluggum á 1. og 2. hæð. Húsin er klædd að utan og viðhaldslétt. Tvö bílastæði fylgja enda íbúðum.
Verið velkomin í Grænabyggð – Vogum — þar sem lífsgæði mæta náttúrunni!
Í hjarta fjölskylduvæns hverfis í sveitafélaginu Vogar bíður þessi íbúð eftir nýjum eigendum. Grænabyggð og samfélagið státar af öflugri menntun fyrir börn og ungmenni, með áformum um nýjan leikskóla og stækkun grunnskóla á svæðinu. Íþróttafélagið Þróttur býður upp á fjölbreytt tómstundastarf og nálægð við strandlengju, gönguleiðir og golfvöll gefur færi á heilbrigðum lífsstíl allt árið um kring. Aðeins er um 10 – 15 mínútna akstur á höfðuborgarsvæðið, Bláa lónið og Keflavíkurflugvöll. Þetta er tækifæri til að fjárfesta í framtíðinni — bæði fyrir heimilið og lífið sjálft. Vertu í sambandi við okkur og bókaður skoðun, ALLT fyrir þig.
Vertu tilbúin(n) þegar rétta eignin birtist – skráðu eignina þín í dag og tryggðu þér forskotið.
ALLT fasteignasala er staðsett á eftirfarandi stöðum:
Hafnargötu 91, 230 Reykjanesbæ - Þverholti 2, 270 Mosfellsbæ
Kostnaður kaupanda:
1. Af gjaldskyldum skjölum skal greiða 0,8% af fasteignamati ef kaupandi er einstaklingur, fyrstukaupendur 0,4% og 1,6% af fasteignamati ef kaupandi er lögaðili.
2. Þinglýsingargjald á hvert skjal er kr. 2.700.
3. Lántökugjald fer eftir verðskrá lánastofnunar hverju sinni.
4. Umsýslugjald til ALLT fasteignasölu er kr. 69.440 m/vsk.
5. Sé um nýbyggingu um að ræða greiðir kaupandi skipulagsgjald, 0,3% af brunabótamati, þegar það er lagt á.
Skoðunar- og aðgæsluskylda kaupanda:
Í lögum um fasteignakaup nr. 40/2002 er kveðið á um ríka skoðunarskyldu kaupenda á fasteignum. ALLT fasteignasala vill beina því til væntanlegs kaupanda að kynna sér ástand fasteignar vel við skoðun og fyrir tilboðsgerð. Ef þurfa þykir er ráðlagt að leita til sérfræðifróðra aðila. Forsendur söluyfirlits: Söluyfirlit þetta er samið af fasteignasala til samræmis við lög um sölu fasteigna og skipa nr. 70/2015. Upplýsingar þær sem koma fram í söluyfirliti þessu eru sóttar í opinberar skrár, frá seljanda og eftir atvikum til húsfélags. Seljandi veitir upplýsingar um eignina til samræmis við upplýsingaskyldu sína sbr. lög um fasteignakaup nr. 40/2002. Fasteignasali sannreynir að upplýsingar séu réttar með sjónskoðun á eigninni. Fasteignasali getur ekki fullyrt um ástand og eiginleika þeirra hluta fasteignar sem ekki eru aðgengilegir og sjást ekki með berum augum, eins og t.d. lagnir, dren, skólp og þak.
Ár
Fasteignamat
Kaupverð
Stærð
Fermetraverð
14. júl. 2025
40.600.000 kr.
510.200.000 kr.
10104 m²
50.495 kr.
Byggt á upplýsingum úr Þjóðskrá Íslands frá 2006-2025