Löggiltir fasteignasalar innan Félags fasteignasala:
Halla Unnur Helgadóttir
Elín Urður Hrafnberg
Guðmunda Björnsdóttir Stackhouse
Herdís Valb. Hölludóttir
Ingibjörg Reynisdóttir
Ellert Bragi Sigurþórsson
Daði Runólfsson
Upplýsingar
svg
Byggt 2002
svg
287,6 m²
svg
7 herb.
svg
2 baðherb.
svg
5 svefnh.
svg
Þvottahús
svg
Bílskúr
svg
Sérinngangur

Lýsing

Gimli fasteignasala og Bárður H Tryggvason kynna glæsilegt 287.6 fm einbýlishús á einni hæð með  innbyggðum 53.4 fm bílskúr Kjarrás 9 í Garðabær. 
Húsið er einstaklega vel staðsett innst í lokuðum botnlanga.
Arkitekt hússins er Sigurður Hallgrímsson.
Húsið er mjög vel skipulagt og birtan inní það skipar stóran sess í hönnun þess.
Allar innréttigar eru úr rauðeik og smíðaðar í trésmiðjunni Borg á Sauðárkróki sem þekkt er fyrir einstaklega vandaða smíði.
Bílastæðið er mjög stórt og með steypt með Bomanit, hitalögn er undir.
Húsið er klætt að utan með álklæðningu að miklu leiti en múrað á hefðbundin hátt að öðru leiti. Nýlega er búið að mála steypta hlutann.
Garðurinn er sérlega fallegur og auðveldur í umhirðu. Verandir og skjólveggir úr Lerki (harðviður sem ekki þarf að bera á)
Rafmagnshleðslustöðvar eru við húsið að utan.
Gluggar eru ál/tré.
Útilýsing í garði.
Inngangshurð í bílskúr er við hlið aðalinngangs.
Nýlega er búið að taka bæði baðherbergin í gegn. 
NÁNARI LÝSING:
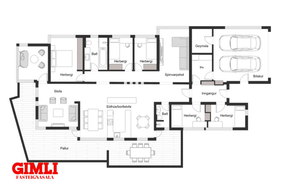
Forstofa rúmgóð með skáp.
Innangegnt í vel innréttað þvottahús úr forstofu og þaðan inní rúmgóðan bílskúrinn sem er með epoxy á gólfi, innaf bílskúr er góð geymsla.
Svefnherbergin í húsinu er 5.
Barnaherbergin er 4 og með skápum.
Rúmgott hjónaherbergi með skáp.
Rúmgott skrifstofuherbergi með góðum glugga og fallegu útsýni.
Rúmgott sjónvarpsherbergi með góðum skenk.
Þaðan er stigi upp í gott skrifstofuherbergi með góðum glugga með einstöku útsýni.
Baðherbergin í húsinu eru tvö.
Baðherbergi 1, með sturtuklefa steyptum og innréttingu, handklæðaofn og gluggi á baði.
Baðherbergi 2, er mjög rúmgott með sturtuklefa og baðkari, innréttingu, handklæðaofni og glugga.
Eldhúsið með vandaðri innréttingu og tækjum, góður borðkrókur þar. Útgengi á verönd.
Borðstofa.
Stofa með arni.
Úr stofu er gengið út í bjarta sólstofu og þaðan útgengi út í garð. Náttúruflísar á gólfi og hitalögn þar undir.
Flísar eru á forstofu, þvottahúsi og 2 barnaherbergjum.
Khars parket er á öðrum gólfum hússins.
Fallegur sjónsteypypuveggur gengur í gegnum stóran hlutan hússins og setur skemmtilegan svip á hönnun þess.

Niðurlag: Fallega hannað arkitektateiknað hús sem er vel byggt með vönduðum innréttingum og þar sem birtan fær að njóta sín með fallegri gluggasetningu.
Garður og hús sérlega viðhaldslétt. Frábær staðsetning í fallegu grónu hverfi.
Húsið verður aðeins sýnt í einkaskoðun.
Nánari upplýsingar veitir: Bárður H Tryggvason sölustjóri, í síma 8965221, tölvupóstur bardur@gimli.is eða gimli@gimli.is

Gimli fasteignasala leggur áherslu á traust, áreiðanleika og góða þjónustu.

Það er okkar trú að það skipti öllu máli í fasteignaviðskiptum að viðskiptavinurinn fái trausta og góða þjónustu. Við hjá Gimli höfum stundað fasteignaviðskipti með farsælum hætti í meira en fjóra áratugi. Hjá okkur starfa sérhæfðir og reyndir fasteignasalar sem sinna stórum sem smáum verkefnum af nákvæmni og þekkingu sem skilar árangri.

Hvar erum við?
Gimli Fasteignasala er staðsett á jarðhæð í Skipholti 35 í Reykjavík en einnig rekum við söluskrifstofu að Eyrarvegi 29. 2 hæð á Selfossi.

Við höfum opið frá 10-15 mánudaga til föstudaga. Sláðu á þráðinn eða líttu við hjá okkur í Skipholtinu næst þegar þú átt leið hjá. Við erum alltaf með heitt á könnunni. sími: 570 4800, tölvupóstur: gimli@gimli.is

Gimli gerir betur...
Heimasíða Gimli fasteignasölu

Gimli á Facebook


Um skoðunar- og aðgæsluskyldu kaupenda: Í lögum um fasteignakaup nr. 40/2002 er kveðið á um ríka skoðunarskyldu kaupenda á fasteignum. Gimli fasteignasala bendir væntanlegum kaupendum á að kynna sér vel ástand eigna við skoðun og fyrir tilboðsgerð og að leita til sérfræðinga um nánari ástandsskoðun ef þörf er á.
Forsendur söluyfirlits: Söluyfirlit er samið af fasteignasala í samræmi við ákvæði laga nr. 70/2015. Þær upplýsingar sem fram koma í söluyfirliti þessu eru sóttar í opinberar skrár, til seljanda sjálfs og eftir atvikum til húsfélags. Seljandi veitir upplýsingar um eign í samræmi við upplýsingaskyldu laga um fasteignakaup nr. 40/2002. Fasteignasali sannreynir að þær upplýsingar séu réttar með sjónskoðun á eigninni. Fasteignasali getur ekki fullyrt um ástand og eiginleika þeirra hluta fasteigna sem ekki eru aðgengilegir og sjást ekki berum augum, t.d. lagnir, dren, skólp og þak.
Gjöld sem kaupandi þarf að standa straum af vegna kaupanna:Stimpilgjald af kaupsamningi sem er hlutfall af fasteignamati. Stimpilgjald er 0,8% fyrir einstaklinga (0,4% við fyrstu kaup m.v. að lágmarki 50% eignarhlut) og 1,6% fyrir lögaðila.Þinglýsingargjald hvers skjals er kr. 2.700,- .Lántökugjald lánastofnunar skv. gjaldskrá viðkomandi lánveitanda.Umsýsluþóknun fasteignasölu skv. gjaldskrá.Ef um nýbyggingu er að ræða greiðir kaupandi skipulagsgjald, 0,3% af brunabótamati, þegar það er lagt á.
Teikningar sem fylgja lýsingu eignarinnar og myndum eru til viðmiðunar og ekki alltaf í samræmi við samþykktar teikningar af eigninni.
Myndir í auglýsingu eru í einkaeigu og er notkun þeirra með öllu óheimil án formlegs leyfis fasteignasala
 

Gimli fasteignasala leggur áherslu á traust, áreiðanleika og góða þjónustu.

Það er okkar trú að það skipti öllu máli í fasteignaviðskiptum að viðskiptavinurinn fái trausta og góða þjónustu. Við hjá Gimli höfum stundað fasteignaviðskipti með farsælum hætti í meira en fjóra áratugi. Hjá okkur starfa sérhæfðir og reyndir fasteignasalar sem sinna stórum sem smáum verkefnum af nákvæmni og þekkingu sem skilar árangri.

Hvar erum við?
Gimli Fasteignasala er staðsett á jarðhæð í Skipholti 35 í Reykjavík en einnig rekum við söluskrifstofu að Eyrarvegi 29. 2 hæð á Selfossi.

Við höfum opið frá 10-15 mánudaga til föstudaga. Sláðu á þráðinn eða líttu við hjá okkur í Skipholtinu næst þegar þú átt leið hjá. Við erum alltaf með heitt á könnunni.

Gimli gerir betur...

Gimli fasteignasala

Gimli fasteignasala

Skipholt 35, 105 Reykjavík
phone
Gimli fasteignasala

Gimli fasteignasala

Skipholt 35, 105 Reykjavík
phone