Löggiltir fasteignasalar innan Félags fasteignasala:
Daníel Rúnar Elíasson
Vista
svg

141

svg

130  Skoðendur

svg

Skráð  12. okt. 2025

parhús

Álmskógar 2

300 Akranes

113.900.000 kr.

681.220 þ.kr./m2
Fasteignanúmer

F2302389

Fasteignamat

95.950.000 kr.

Brunabótamat

93.620.000 kr.

Áhvílandi

0 kr.

Arion banki – Reikna lán
Upplýsingar
Verðsaga
svg
Byggt 2021
svg
167,2 m²
svg
5 herb.
svg
2 baðherb.
svg
4 svefnh.
svg
Þvottahús
svg
Bílskúr

Lýsing

HÁKOT fasteignasala og Daníel Rúnar Elíasson löggiltur fasteignasali sími: 431-4045 / 899-4045 auglýsa:

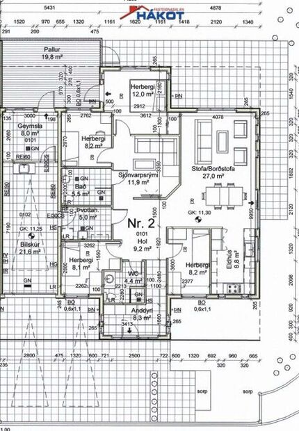
** ÁLMSKÓGAR 2 ** Parhús á 1 hæð 142.9 m² ásamt innbyggðum bílskúr (24.3 m²) = 167.2 m².

*** 4 svefnherbergi + sjónvarpshol/vinnuherbergi ***


Forstofa (flísar, skápur).
Hol (parket). 
Gestawc (flísar, flísar á vegg, hvít innrétting, upphengt wc, ekki gluggi). 
Herbergi 2 (parket, skápur).
Herbergi 3 (parket, skápur).
Þvottahús (flísar, hvít innrétting, inngangur í bílskúr).
Herbergi 4 (parket, til fataskápur).
Baðherbergi (flísar, flísar á vegg, sturta í gólf, upphengt wc, ekki gluggi). 
Svefnherbergi (parket, fataskápur, útgangur út á steypta vestur Verönd (gert ráð fyrir heitum pott).
Sjónvarpshol (parket, stúkkað af og nýtt fyrir skápara og vinnuaðstöðu).
Stofa/borðstofa (parket, útgangur út á litla steypta Verönd í norður).
Eldhús (parket, hvít innrétting, helluborð, ofn, háfur, innbyggð, uppþvottavél, opið að stofu).

Bílskúr (epoxy, flekahurð m/opnara, rafmagn (var gert ráð fyrir þvottahúsi í bílskúr). Geymsla í enda, útgagnur út á verönd).

ANNAÐ: Timburhús á steyptum grunni. Gólfhiti. Steypt gangstétt meðfram húsinu. Steypt innkeyrsla með snjóbræðslu. Steypt verönd í vestur og lítil verönd í norður (grillaðstaða) með skjólgirðinum. Stutt í verslun og þjonustu og 2 leikskóla (Garðasel og Akrasel

Allar upplýsingar í söluyfirlitinu eru fengnar hjá seljendum og úr opinberum gögnum.

************
Um skoðunar- og aðgæsluskyldu:
Í lögum um fasteignakaup nr. 40/2002 er kveðið á um ríka skoðunarskyldu kaupenda á fasteignum. Fasteignasalan Hákot bendir væntanlegum kaupendum á að kynna sér vel ástand fasteigna við skoðun og fyrir tilboðsgerð og ef þurfa þykir að leita til sérfræðinga um nánari ástandsskoðun.

Forsendur söluyfirlits: 
Söluyfirlit er samið af fasteignasala í samræmi við ákvæði laga nr. 70/2015. Þær upplýsingar sem fram koma í söluyfirliti þessu eru sóttar í opinberar skrár, til seljanda sjálfs og eftir atvikum til húsfélags. Seljandi veitir upplýsingar um eign í samræmi við upplýsingaskyldu laga um fasteignakaup nr. 40/2002. Fasteignasali metur eignina með sjónskoðun.
Fasteignasali getur ekki fullyrt um ástand og eiginleika þeirra hluta fasteigna sem ekki eru aðgengilegir og sjást ekki berum augum, t.d. lagnir, dren, skólp og þak.

Gjöld sem kaupandi þarf að standa straum af vegna kaupanna:  
1. Stimpilgjald af kaupsamningi - 0.8% af heildar fasteignamati / 1.6% fyrir lögaðila, (0.4% við fyrstu kaup einstaklinga).
2. Þinglýsingagjald af kaupsamningi, afsali, veðskuldabréfi, umboði, veðleyfi o.fl.- kr. 2.700 af hverju skjali.
3. Umsýslugjald kr. 49.600 (m/vsk).
4. Lántökugjald veðskuldabréfa samkvæmt gjaldskrá lánveitenda.
5. Ef um nýbyggingu er að ræða greiðir kaupandi skipulagsgjald, 0,3% af brunabótamáti, þegar það er lagt á

Fasteignasalan Hákot

Fasteignasalan Hákot

Kirkjubraut 12 (jarðhæð)300 Akranesi
phone
Ár
Fasteignamat
Kaupverð
Stærð
Fermetraverð
4. maí. 2021
67.000.000 kr.
78.500.000 kr.
167.2 m²
469.498 kr.
Byggt á upplýsingum úr Þjóðskrá Íslands frá 2006-2025
Fasteignasalan Hákot

Fasteignasalan Hákot

Kirkjubraut 12 (jarðhæð)300 Akranesi
phone