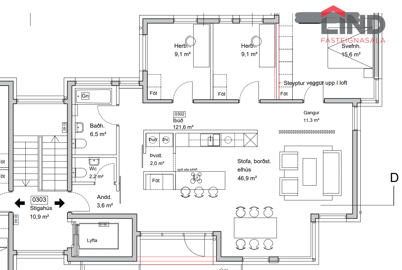
Hraungata, 210 Garðabær