Upplýsingar
Byggt 2025
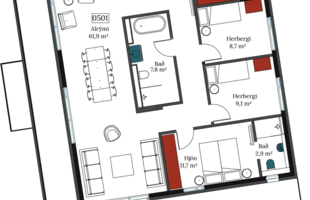
140,9 m²
4 herb.
2 baðherb.
3 svefnh.
Þvottahús
Bílastæði
Lyfta
Lýsing
BÓKIÐ SKOÐUN - Einar s. 888-7979 Helgi s. 893-2233 Glódís s. 659-0510 Vala s. 791-7500 Hlynur s. 698-2603
Hraunhamar kynnir: Glæsilega fjögurra herbergja endaíbúð á 5. hæð með svölum í nýju vönduðu lyftuhúsi á frábærum stað í Hamraneshverfinu í Hafnarfirði, þar sem stutt er í alla helstu þjónustu. Íbúðirnar afhendast fullbúnar með gólfefnum. Ath: Tvö baðherbergi !
Íbúð 501 er fjögurra herbergja, skráð 140,90 fermetrar með geymslu. Auk þess fylgir stæði með í lokaðri bílageymslu.
Afhending við kaupsamning.
Sjá nánar um íbúðina hér. Sjá söluvef hér.
Húsið er klætt að utan með álklæðningu, og ál/timbur gluggar.
Nánari lýsing skv. teikningu:
Forstofa.
Gott opið rými, þar sem eldhús og stofa eru samliggjandi.
Eldhús með smekklegri innréttingu frá HTH og vönduðum eldunartækjum.
Björt stofa og borðstofa og þaðan er útgengt á svalir sem snúa til suð-vesturs.
Tvö góð svefnherbergi með fataskápum.
Rúmgott hjónaherbergi með fataskápum, flísalagt baðherbergi þar inn af með innréttingu, upphengdu salerni og sturtu.
Flísalagt baðherbergi með innréttingu, upphengdu salerni og sturtu, þar er þvottaaðstaða.
Sér geymsla í sameign.
Sér stæði í bílageymslu.
Áshamar 24 verður byggt eftir ströngum eftirlitsstaðli Svansins.
Sjá frekari upplýsingar um Svansvottun nýbygginga með því að smella hér.
Áshamar 24 er hluti af klasabyggingu þar sem skemmtilegur garður mun tengja húsin saman.
Eykt ehf er byggingaraðili hússins sem er reynslumikið og traust byggingarfyrirtæki með áratuga reynslu.
Kaupandi borgar skipulagsgjald þegar þess verður krafist sem er 0,3 % af væntu brunabótamati eignarinnar.
Bókið skoðun hjá sölumönnum Hraunhamars:
Einar Örn Ágústsson, löggiltur fasteignasali s. 888-7979, einar@hraunhamar.is
Glódís Helgadóttir, löggiltur fasteignasali s. 659-0510, glodis@hraunhamar.is
Valgerður Gissurardóttir löggiltur fasteignasali s.791-7500, vala@hraunhamar.is
Hlynur Halldórsson, löggiltur fasteignasali, s. 698-2603, hlynur@hraunhamar.is
Helgi Jón Harðarson, sölust. s. 893-2233, helgi@hraunhamar.is
Gjöld sem kaupandi þarf að standa straum af vegna kaupanna:
1. Stimpilgjald af kaupsamningi, fyrstu kaup (0,4%), almenn kaup (0,8%), lögaðilar (1,6%) af heildarfasteignamati.
2. Þinglýsingargjald af kaupsamningi, veðskuldabréfi, mögulegu veðleyfi o.fl. – kr. 2.700 kr. af hverju skjali.
3. Lántökugjald lánastofnunar er skv. verðskrá viðkomandi lánastofnunar.
4. Umsýslugjald til fasteignasölu skv. þjónustusamningi
Hraunhamar er elsta fasteignasala Hafnarfjarðar, stofnuð 1983
Hraunhamar, í farabroddi í 40 ár ! – Hraunhamar.is
Smelltu hér til að fá frítt söluverðmat.
Hraunhamar kynnir: Glæsilega fjögurra herbergja endaíbúð á 5. hæð með svölum í nýju vönduðu lyftuhúsi á frábærum stað í Hamraneshverfinu í Hafnarfirði, þar sem stutt er í alla helstu þjónustu. Íbúðirnar afhendast fullbúnar með gólfefnum. Ath: Tvö baðherbergi !
Íbúð 501 er fjögurra herbergja, skráð 140,90 fermetrar með geymslu. Auk þess fylgir stæði með í lokaðri bílageymslu.
Afhending við kaupsamning.
Sjá nánar um íbúðina hér. Sjá söluvef hér.
Húsið er klætt að utan með álklæðningu, og ál/timbur gluggar.
Nánari lýsing skv. teikningu:
Forstofa.
Gott opið rými, þar sem eldhús og stofa eru samliggjandi.
Eldhús með smekklegri innréttingu frá HTH og vönduðum eldunartækjum.
Björt stofa og borðstofa og þaðan er útgengt á svalir sem snúa til suð-vesturs.
Tvö góð svefnherbergi með fataskápum.
Rúmgott hjónaherbergi með fataskápum, flísalagt baðherbergi þar inn af með innréttingu, upphengdu salerni og sturtu.
Flísalagt baðherbergi með innréttingu, upphengdu salerni og sturtu, þar er þvottaaðstaða.
Sér geymsla í sameign.
Sér stæði í bílageymslu.
Áshamar 24 verður byggt eftir ströngum eftirlitsstaðli Svansins.
Sjá frekari upplýsingar um Svansvottun nýbygginga með því að smella hér.
Áshamar 24 er hluti af klasabyggingu þar sem skemmtilegur garður mun tengja húsin saman.
Eykt ehf er byggingaraðili hússins sem er reynslumikið og traust byggingarfyrirtæki með áratuga reynslu.
Kaupandi borgar skipulagsgjald þegar þess verður krafist sem er 0,3 % af væntu brunabótamati eignarinnar.
Bókið skoðun hjá sölumönnum Hraunhamars:
Einar Örn Ágústsson, löggiltur fasteignasali s. 888-7979, einar@hraunhamar.is
Glódís Helgadóttir, löggiltur fasteignasali s. 659-0510, glodis@hraunhamar.is
Valgerður Gissurardóttir löggiltur fasteignasali s.791-7500, vala@hraunhamar.is
Hlynur Halldórsson, löggiltur fasteignasali, s. 698-2603, hlynur@hraunhamar.is
Helgi Jón Harðarson, sölust. s. 893-2233, helgi@hraunhamar.is
Gjöld sem kaupandi þarf að standa straum af vegna kaupanna:
1. Stimpilgjald af kaupsamningi, fyrstu kaup (0,4%), almenn kaup (0,8%), lögaðilar (1,6%) af heildarfasteignamati.
2. Þinglýsingargjald af kaupsamningi, veðskuldabréfi, mögulegu veðleyfi o.fl. – kr. 2.700 kr. af hverju skjali.
3. Lántökugjald lánastofnunar er skv. verðskrá viðkomandi lánastofnunar.
4. Umsýslugjald til fasteignasölu skv. þjónustusamningi
Hraunhamar er elsta fasteignasala Hafnarfjarðar, stofnuð 1983
Hraunhamar, í farabroddi í 40 ár ! – Hraunhamar.is
Smelltu hér til að fá frítt söluverðmat.