Upplýsingar
Verðsaga
Byggt 1954
237 m²
6 herb.
1 baðherb.
5 svefnh.
Þvottahús
Bílskúr
Lýsing
ALLT fasteignasala kynnir í einkasölu eignina: Melteigur 8, 230 Reykjanesbær, birt stærð 237.0 fm þar af 44fm bílskúr
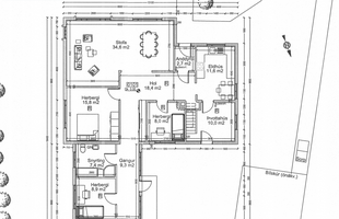
Um er að ræða einstaklega fallegt einbýlishús með bílskúr miðsvæðis í Keflavík sem hefur verið mikið endurýjað á síðustu árum. Eignin skiptist í forstofu, eldhús, stofu og borðstofu, 4 svefnherbergi, baðherbergi, þvottahús, ris sem er óklárað skráð sem stórt herbergi og forrými, bílskúr sem er að hluta herbergi með baðherbergi og að hluta sem bílskúr.
** Mikið endurnýjuð eign
** Þakjárn endurnýjað
** Gluggar endurnýjaðir að hluta
** Möguleiki á 6 svefnherbergjum
** Möguleiki á útleigu í bílskúr
** Vinsæl staðsetning
Náðu í söluyfirlit, teikningar og viðhalssögu eignar hér
Nánari upplýsingar veitir/veita:
Haukur Andreasson Löggiltur fasteignasali, í síma 866-9954, tölvupóstur haukur@allt.is.
Sigurjón Rúnarsson aðstoðarmaður fasteignasala, í síma 771-9820, tölvupóstur sigurjon@allt.is
Nánari lýsing eignar:
Forstofa hefur flísar á gólfi.
Eldhús hefur flísar á gólfi, fallega hvæita eldhúsinnréttingu með helluborði, bakaraofn og örnbylgjuofn.
Stofa/borðstofa er opin og björt, hefur parket á gólfi.
Svefnherbergin eru fjögur og hafa öll parket á gólfi, fataskápur er í hjónaherbergi.
Baðherbergi hefur flísar á gólfi og að mestu veggja, frístandi baðkar, walk in sturtu, baðherbergisinnréttingu með tveim handlaugum og handklæða ofn.
Þvottahús hefur flísar á gólfi, aðstöðu fyrir þvottavél og þurrkara, útgengt í garð og uppá ris.
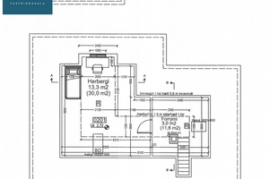
Ris/háaloft er óklárað, skráð 16,3 fm en gólfflötur er skráður 41,6 ( teikning í myndum)
Bílskúr: Fremri hluti bílskúr er notaður sem geymsla og í aftari hluta er búið að útbúa herbergi og baðherbergi með sérinngang. (Möguleiki á útleigu)
Umhverfi: Vinsæl staðsetning miðsvæðis í Keflavík, stutt í alla helstu þjónustu.
ALLT fasteignasala er staðsett á eftirfarandi stöðum:
Hafnargötu 91, 230 Reykjanesbæ - Þverholti 2, 270 Mosfellsbæ
Kostnaður kaupanda:
1. Af gjaldskyldum skjölum skal greiða 0,8% af fasteignamati ef kaupandi er einstaklingur, fyrstukaupendur 0,4% og 1,6% af fasteignamati ef kaupandi er lögaðili.
2. Þinglýsingargjald á hvert skjal er kr. 2.700.
3. Lántökugjald fer eftir verðskrá lánastofnunar hverju sinni.
4. Umsýslugjald til ALLT fasteignasölu er kr. 69.440 m/vsk.
5. Sé um nýbyggingu um að ræða greiðir kaupandi skipulagsgjald, 0,3% af brunabótamati, þegar það er lagt á.
Skoðunar- og aðgæsluskylda kaupanda:
Í lögum um fasteignakaup nr. 40/2002 er kveðið á um ríka skoðunarskyldu kaupenda á fasteignum. ALLT fasteignasala vill beina því til væntanlegs kaupanda að kynna sér ástand fasteignar vel við skoðun og fyrir tilboðsgerð. Ef þurfa þykir er ráðlagt að leita til sérfræðifróðra aðila. Forsendur söluyfirlits: Söluyfirlit þetta er samið af fasteignasala til samræmis við lög um sölu fasteigna og skipa nr. 70/2015. Upplýsingar þær sem koma fram í söluyfirliti þessu eru sóttar í opinberar skrár, frá seljanda og eftir atvikum til húsfélags. Seljandi veitir upplýsingar um eignina til samræmis við upplýsingaskyldu sína sbr. lög um fasteignakaup nr. 40/2002. Fasteignasali sannreynir að upplýsingar séu réttar með sjónskoðun á eigninni. Fasteignasali getur ekki fullyrt um ástand og eiginleika þeirra hluta fasteignar sem ekki eru aðgengilegir og sjást ekki með berum augum, eins og t.d. lagnir, dren, skólp og þak.
Um er að ræða einstaklega fallegt einbýlishús með bílskúr miðsvæðis í Keflavík sem hefur verið mikið endurýjað á síðustu árum. Eignin skiptist í forstofu, eldhús, stofu og borðstofu, 4 svefnherbergi, baðherbergi, þvottahús, ris sem er óklárað skráð sem stórt herbergi og forrými, bílskúr sem er að hluta herbergi með baðherbergi og að hluta sem bílskúr.
** Mikið endurnýjuð eign
** Þakjárn endurnýjað
** Gluggar endurnýjaðir að hluta
** Möguleiki á 6 svefnherbergjum
** Möguleiki á útleigu í bílskúr
** Vinsæl staðsetning
Náðu í söluyfirlit, teikningar og viðhalssögu eignar hér
Nánari upplýsingar veitir/veita:
Haukur Andreasson Löggiltur fasteignasali, í síma 866-9954, tölvupóstur haukur@allt.is.
Sigurjón Rúnarsson aðstoðarmaður fasteignasala, í síma 771-9820, tölvupóstur sigurjon@allt.is
Nánari lýsing eignar:
Forstofa hefur flísar á gólfi.
Eldhús hefur flísar á gólfi, fallega hvæita eldhúsinnréttingu með helluborði, bakaraofn og örnbylgjuofn.
Stofa/borðstofa er opin og björt, hefur parket á gólfi.
Svefnherbergin eru fjögur og hafa öll parket á gólfi, fataskápur er í hjónaherbergi.
Baðherbergi hefur flísar á gólfi og að mestu veggja, frístandi baðkar, walk in sturtu, baðherbergisinnréttingu með tveim handlaugum og handklæða ofn.
Þvottahús hefur flísar á gólfi, aðstöðu fyrir þvottavél og þurrkara, útgengt í garð og uppá ris.
Ris/háaloft er óklárað, skráð 16,3 fm en gólfflötur er skráður 41,6 ( teikning í myndum)
Bílskúr: Fremri hluti bílskúr er notaður sem geymsla og í aftari hluta er búið að útbúa herbergi og baðherbergi með sérinngang. (Möguleiki á útleigu)
Umhverfi: Vinsæl staðsetning miðsvæðis í Keflavík, stutt í alla helstu þjónustu.
ALLT fasteignasala er staðsett á eftirfarandi stöðum:
Hafnargötu 91, 230 Reykjanesbæ - Þverholti 2, 270 Mosfellsbæ
Kostnaður kaupanda:
1. Af gjaldskyldum skjölum skal greiða 0,8% af fasteignamati ef kaupandi er einstaklingur, fyrstukaupendur 0,4% og 1,6% af fasteignamati ef kaupandi er lögaðili.
2. Þinglýsingargjald á hvert skjal er kr. 2.700.
3. Lántökugjald fer eftir verðskrá lánastofnunar hverju sinni.
4. Umsýslugjald til ALLT fasteignasölu er kr. 69.440 m/vsk.
5. Sé um nýbyggingu um að ræða greiðir kaupandi skipulagsgjald, 0,3% af brunabótamati, þegar það er lagt á.
Skoðunar- og aðgæsluskylda kaupanda:
Í lögum um fasteignakaup nr. 40/2002 er kveðið á um ríka skoðunarskyldu kaupenda á fasteignum. ALLT fasteignasala vill beina því til væntanlegs kaupanda að kynna sér ástand fasteignar vel við skoðun og fyrir tilboðsgerð. Ef þurfa þykir er ráðlagt að leita til sérfræðifróðra aðila. Forsendur söluyfirlits: Söluyfirlit þetta er samið af fasteignasala til samræmis við lög um sölu fasteigna og skipa nr. 70/2015. Upplýsingar þær sem koma fram í söluyfirliti þessu eru sóttar í opinberar skrár, frá seljanda og eftir atvikum til húsfélags. Seljandi veitir upplýsingar um eignina til samræmis við upplýsingaskyldu sína sbr. lög um fasteignakaup nr. 40/2002. Fasteignasali sannreynir að upplýsingar séu réttar með sjónskoðun á eigninni. Fasteignasali getur ekki fullyrt um ástand og eiginleika þeirra hluta fasteignar sem ekki eru aðgengilegir og sjást ekki með berum augum, eins og t.d. lagnir, dren, skólp og þak.
Ár
Fasteignamat
Kaupverð
Stærð
Fermetraverð
14. júl. 2011
24.850.000 kr.
24.500.000 kr.
207 m²
118.357 kr.
Byggt á upplýsingum úr Þjóðskrá Íslands frá 2006-2025