Fasteignir.is
Fréttir
Viðskipti
Sport
Lífið
Skoðun
Innherji
Fasteignir
Atvinna
TAL
SJÓNVARP
ÚTVARP
Fasteignakaup
Fasteignasölur
Hugmyndir fyrir heimilið
Félagsmenn innan Félags fasteignasala
Fróðleikur
Um fasteignir.is
Til baka
In Icelandic
In English
In Polish
Til baka
Húseigandafélagið
Félag fasteignasala
Fasteignir.is
Fasteignakaup
In Icelandic
In English
In Polish
FASTEIGNASÖLUR
HUGMYNDIR FYRIR HEIMILIÐ
Félagsmenn innan Félags fasteignasala
Fróðleikur
Húseigandafélagið
Félag fasteignasala
Um fasteignir.is
Senda ábendingu á
Fasteignir.is
Þitt nafn
Símanúmer
Netfang
Ruslpóstavörn
Fyrirspurn
Senda
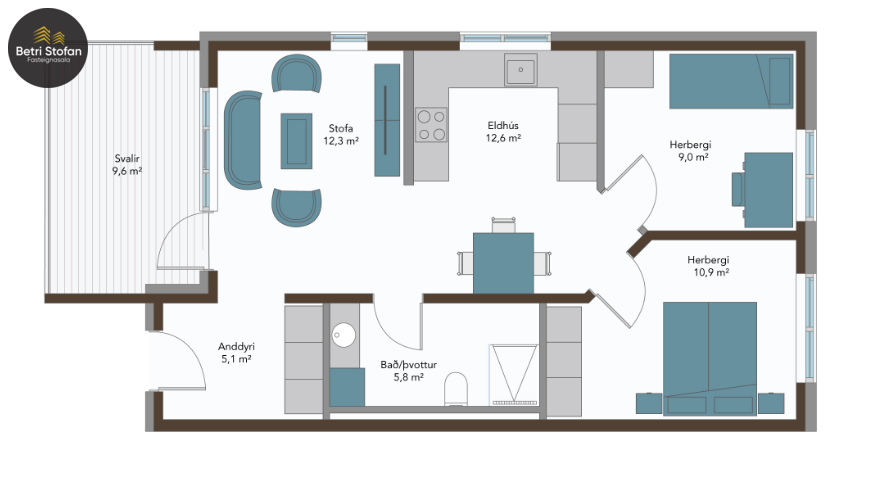
Asparskógar,
300 Akranes
Til baka
Fara efst upp