Upplýsingar
Byggt 1981
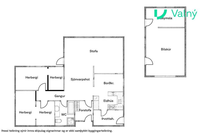
171,3 m²
5 herb.
1 baðherb.
3 svefnh.
Þvottahús
Bílskúr
Lýsing
Valný fasteignasala og Valgeir Leifur löggiltur fasteignasali kynna:
Norðurtún 4, 245 Sandgerði
Rúmgott einbýlishús á einni hæð með bílskúr á rólegum og fjölskylduvænum stað í Sandgerði. Eignin býður upp á björt rými, sólpall á baklóð og fallegt útsýni til sjávar. Góð aðkoma er að húsinu með malbikaðri innkeyrslu og hellulögðum stéttum.
Samkvæmt fasteignaskrá HMS er eignin skráð samtals 171.3 m², þar af er íbúðarrými 127,0 m² og bílskúr 44,3 m².
Eign merkt 01-01, fastanúmer 209-4945 ásamt öllu því sem eigninni fylgir, þar með talið tilheyrandi lóðar og sameignarréttindi.
Lýsing og skipulag eignar:
Forstofa er dúklögð með fataskáp
Eldhús er rúmgott með fallegri innréttingu með ofni í vinnuhæð, helluborði og háfi. Engin uppþvottavél. Flísar á gólfi.
Stofa og borðstofa eru flísa- og parketlagðar. Útgengt er á sólpall frá borðstofu.
Svefnherbergin eru parketlögð. Upphaflega voru þau þrjú en búið er að opna á milli og eru þau tvö í dag; fataherbergi er innaf hjónaherbergi.
Baðherbergi er með dúk á gólfi, hvítri innréttingu, baðkari og sturtuklefa.
Þvottahús er inn af eldhúsi, með flísum á gólfi, innréttingu og aðstöðu fyrir þvottavél og þurrkara, auk hurðar út á plan.
Bílskúr hefur hita og rafmagn, flísalagt gólf og bílskúrshurðaropnara.
Geymsla er innst í bílskúrnum.
Byggingarlýsing:
Húsið er timbureiningahús, byggt árið 1981 af Trésmiðju Sigurðar Guðmundssonar á Selfossi. Útveggir eru timburklæddir að utan.
Lóð og aðkoma:
Innkeyrsla er malbikuð og stéttar hellulagðar. Lóð er að hluta tyrfð. Sólpallur er á baklóð hússins.
Allar nánari upplýsingar veitir:
Valgeir Leifur / Löggiltur fasteignasali / 780-2575 / valgeir@valny.is
Ertu að leita að nýbyggingum? Skoðaðu úrvalið hjá Valný – smelltu hér.
Ertu að hugsa um að selja? Smelltu hér og fáðu frítt verðmat.
Ekki missa af draumaeigninni – fylgstu með okkur á Instagram og Facebook
Lestu reynslusögur frá ánægðum viðskiptavinum okkar.
- Fasteignasalan sem opnar dyrnar að þinni eign.
Valný fasteignasala | www.valny.is | Tjarnargötu 2, 230 Reykjanesbær | Opið alla virka daga frá 9:00-16:00
Norðurtún 4, 245 Sandgerði
Rúmgott einbýlishús á einni hæð með bílskúr á rólegum og fjölskylduvænum stað í Sandgerði. Eignin býður upp á björt rými, sólpall á baklóð og fallegt útsýni til sjávar. Góð aðkoma er að húsinu með malbikaðri innkeyrslu og hellulögðum stéttum.
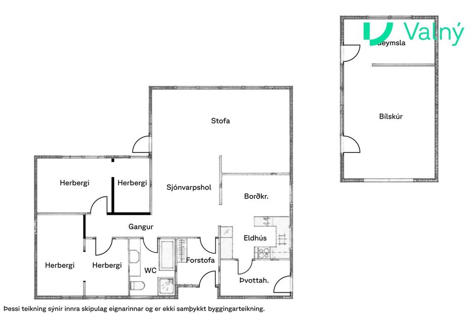
Samkvæmt fasteignaskrá HMS er eignin skráð samtals 171.3 m², þar af er íbúðarrými 127,0 m² og bílskúr 44,3 m².
Eign merkt 01-01, fastanúmer 209-4945 ásamt öllu því sem eigninni fylgir, þar með talið tilheyrandi lóðar og sameignarréttindi.
Lýsing og skipulag eignar:
Forstofa er dúklögð með fataskáp
Eldhús er rúmgott með fallegri innréttingu með ofni í vinnuhæð, helluborði og háfi. Engin uppþvottavél. Flísar á gólfi.
Stofa og borðstofa eru flísa- og parketlagðar. Útgengt er á sólpall frá borðstofu.
Svefnherbergin eru parketlögð. Upphaflega voru þau þrjú en búið er að opna á milli og eru þau tvö í dag; fataherbergi er innaf hjónaherbergi.
Baðherbergi er með dúk á gólfi, hvítri innréttingu, baðkari og sturtuklefa.
Þvottahús er inn af eldhúsi, með flísum á gólfi, innréttingu og aðstöðu fyrir þvottavél og þurrkara, auk hurðar út á plan.
Bílskúr hefur hita og rafmagn, flísalagt gólf og bílskúrshurðaropnara.
Geymsla er innst í bílskúrnum.
Byggingarlýsing:
Húsið er timbureiningahús, byggt árið 1981 af Trésmiðju Sigurðar Guðmundssonar á Selfossi. Útveggir eru timburklæddir að utan.
Lóð og aðkoma:
Innkeyrsla er malbikuð og stéttar hellulagðar. Lóð er að hluta tyrfð. Sólpallur er á baklóð hússins.
Allar nánari upplýsingar veitir:
Valgeir Leifur / Löggiltur fasteignasali / 780-2575 / valgeir@valny.is
Ertu að leita að nýbyggingum? Skoðaðu úrvalið hjá Valný – smelltu hér.
Ertu að hugsa um að selja? Smelltu hér og fáðu frítt verðmat.
Ekki missa af draumaeigninni – fylgstu með okkur á Instagram og Facebook
Lestu reynslusögur frá ánægðum viðskiptavinum okkar.
- Fasteignasalan sem opnar dyrnar að þinni eign.
Valný fasteignasala | www.valny.is | Tjarnargötu 2, 230 Reykjanesbær | Opið alla virka daga frá 9:00-16:00