Löggiltir fasteignasalar innan Félags fasteignasala:
Ásdís Ósk Valsdóttir
Guðbrandur Jónasson
Ásdís Rósa Ásgeirsdóttir
Böðvar Reynisson
Sveinbjörn Rosén Guðlaugsson
Jóhanna K. Gustavsdóttir
Pétur Ísfeld Jónsson
Anna Laufey Sigurðardóttir
Vista
svg

425

svg

357  Skoðendur

svg

Skráð  15. okt. 2025

fjölbýlishús

Melabraut 16

170 Seltjarnarnes

93.700.000 kr.

854.148 þ.kr./m2
Fasteignanúmer

F2067743

Fasteignamat

78.000.000 kr.

Brunabótamat

51.000.000 kr.

Áhvílandi

0 kr.

Arion banki – Reikna lán
Upplýsingar
Verðsaga
svg
Byggt 1959
svg
109,7 m²
svg
4 herb.
svg
1 baðherb.
svg
2 svefnh.
svg
Garður
svg
Sameiginl. inngangur
Opið hús: 28. október 2025 kl. 17:30 til 18:00

Lýsing

*** SÖLUSÝNING: MELABRAUT 16 ÍBÚÐ 201, ÞRIÐJUDAGINN 28. OKTÓBER 2025 KL 17:30-18:00. JÓHANNA KRISTÍN GÚSTAVSDÓTTIR, LÖGGILTUR FASTEIGNASALI VERÐUR Á STAÐNUM OG VEITIR NÁNARI UPPLÝSINGAR Í SÍMA: 6989470 EÐA EMAIL: JOHANNA@HUSASKJOL.IS ***

SMELLTU HÉR TIL AÐ BÓKA TÍMA Í SÖLUSÝNINGU OG SÆKJA UPPLÝSINGABÆKLING FYRIR Melabraut 16 Íbúð 201.

Ef þú átt eftir að selja þá er mikilvægt er að vera með staðfest verðmat á þinni eign til að geta sent inn raunhæf tilboð og verið samkeppnishæfur við aðra kaupendur. Smelltu hér til að bóka sölumat á þinni eign.
EF ÞÚ BÓKAR ÞIG FÆRÐU TILKYNNINGU EF SÖLUSÝNING FELLUR NIÐUR.
IF YOU BOOK A SHOWING, YOU WILL BE NOTIFIED IF IT’S CANCELLED.


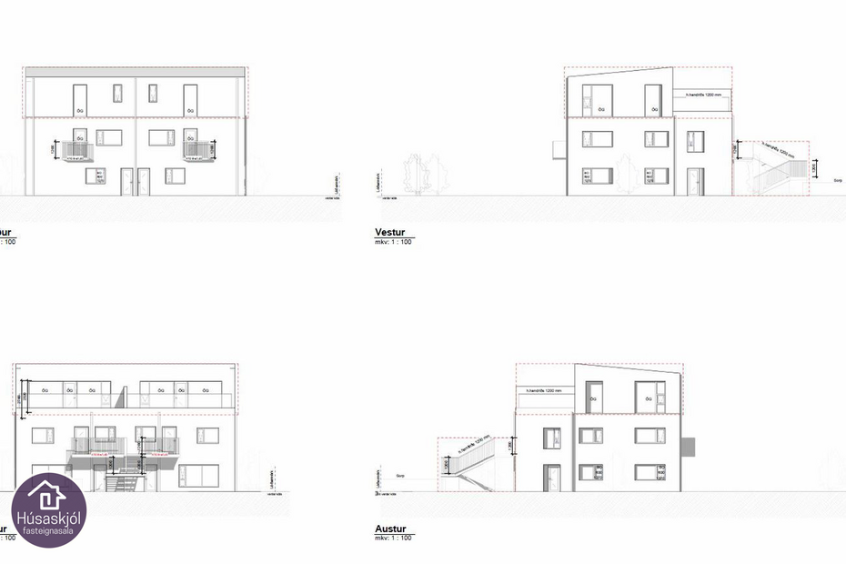
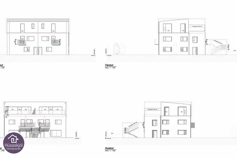
Húsaskjól og Jóhanna Gustavsdóttir löggiltur fasteignasali kynna í einkasölu: fallega og mikið endurnýjaða 4ja herbergja íbúð á efri hæð í fjórbýlishúsi ásamt rislofti á vinsælum stað á Seltjarnarnesinu á Melabraut 16 með sameiginlegum inngangi neðri hæðar. Fyrir liggur teikning og samþykki frá Seltjarnarnesbæ um að setja stiga framan á húsið og þá myndu allar íbúðirnar fá sérinngang. Jafnframt liggur fyrir samþykki og teikningar fyrir hækkun á húsinu og þá myndi þessi íbúð stækka um 45 fm og fá mjög rúmgóðar suðursvalir með einstöku sjávarútsýni. Teikningar frá arkitekt fyrir breytingunum, ásamt burðaþolsteikningum frá verkfræðingi og raf-og pípulagnateikningar geta fylgt með. Verkfræðiteikningarnar voru settar upp m.v. að forsmíðaðar einingar væru smíðaðar fyrir breytingunum og eru allar leiðbeiningar fyrir verksmiðju í þeim. Lóðin er stór og gróin og á hver íbúð í húsinu eitt bílastæði fyrir framan húsið.

Íbúðin er skráð samtals 109,7 fm að stærð og þar af er aðalhæðin 87,3 fm og innréttað risloft 22,4 fm auk rýmis undir súð sem er ekki inni í skráðum fm. Eignin skiptist í tvö svefnherbergi, eldhús, rúmgóða stofu og borðstofu, baðherbergi með tengi fyrir þvottavél, hol, stigapall og risloft.


FASTEIGNAMAT 2026 VERÐUR: 86.400.000 KR.


Nánari upplýsingar veitir Jóhanna Gustavsdóttir löggiltur fasteignasali í síma 698-9470, netfang: johanna@husaskjol.is

Nánari lýsing á eign:


Gólfefni á aðalhæðinni er ljóst vínylparket með fiskibeinamynstri og ljóst harðparket er á rislofti.
Inngangur er sameiginlegur með neðri hæð. Þaðan er snyrtilegur stigi upp á stigapall með fatahengi. Þegar komið er inn í íbúðina tekur við opið og rúmgott hol með fataskáp sem tengir saman aðrar vistaverur íbúðarinnar.Stofa/borðstofa er rúmgott og bjart rými með stórum gluggum á tvo vegu, til vesturs og norðurs má sjá út á sjó milli húsa í vesturátt. Eldhúsið er endurnýjað með hvítri eldhúsinnréttingu sem er með góðu borð og skápaplássi, rúmgott rými fyrir eldhúsborð og stóla. Endurnýjuð eldhústæki, tveir ofnar í vinnuhæð, keramikhelluborð, háfur, innbyggð uppþvottavél og ísskápur. Einnig eru vaskur og blöndunartæki endurnýjuð. Baðherbergið er með nýlegri ljósri innréttingu sem er með skúffum og innbyggðum vaski og speglaskáp sem er með innbyggðri lýsingu, baðkar með sturtu og gleri, tengi fyrir þvottavél og gólf er flotað og málað. Svefnherbergin eru tvö, hjónaherbergið er rúmgott með góðum upprunalegum fataskápum. Frá stofu er gengið upp á risloftið um nýlegan stiga sem nýtir vel plássið m.a. með innfeldum hirslum meðfram stigauppganginum. Risloftið er bjart og opið alrými með tveimur þakgluggum sem veita góða birtu inn í rýmið. Súðaskápar eru meðfram hliðum rýmisins með góðu geymsluplássi. Risloftið býður uppá á ýmsa möguleika hvort sem er sem sjónvarpsstofa, vinnuherbergi eða herbergi.
í sameign hússins er lagnainntaksrými og þvottahús. Lóðin er stór og gróin og í bakgarðinum er góður timburskúr með palli sem er notaður sem geymsla fyrir hjól og grill fyrir íbúa hússins.



Hér er um að ræða mikið endurnýjaða og bjarta 4ja herbergja íbúð á efri hæð með rúmgóðu rislofti í fjórbýlishúsi á barnvænum og rólegum stað á Seltjarnarnesinu þar sem stutt er í leik-og grunnskóla, tónlistarskóla, þróttaaðstöðu fyrir börn og fullorðna, sundlaug, golfvöll. fallegar göngu-og hjólaleiðir meðfram sjónum og fjöruna. Einnig er ýmis verslun og þjónusta í næsta nágrenni eins og matvöruverslun, kaffihús og ísbúð á Eiðistorgi og veitingastaðurinn Ráðagerði við Gróttu svo eitthvað sé nefnt. Spennandi eign sem býður upp á ýmsa möguleika.

Allar nánari upplýsingar veitir Jóhanna Gustavsdóttir löggiltur fasteignasali í síma 698-9470, netfang: johanna@husaskjol.is


Fylgdu Húsaskjóli á TikTok


Húsaskjól fasteignasala - af því að þín fasteign skiptir máli

Ertu í söluhugleiðingum? Smelltu hér til að fá frítt verðmat
Ertu að leita að sambærilegri íbúð? Smelltu hér til að skrá þig á kaupóskalistann okkar

Fylgdu okkur á Instagram
Skoðaðu hvað okkar viðskiptavinir hafa um Skoðaðu hvað okkar viðskiptavinir hafa um okkur að segja
Hvað er í gangi á fasteignamarkaðnum? Skráðu þig á Fréttaskot Húsaskjóls

Húsaskjól advices potential buyers who do not speak or read icelandic to have a translator present when they view and sign an offer, sales agreement and other documents relating to the purchase of the property.​


Um skoðunar- og aðgæsluskyldu:
Í lögum um fasteignakaup nr. 40/2002 er kveðið á um ríka skoðunarskyldu kaupenda á fasteignum. Vill Húsaskjól fasteignasala því skora á væntanlega kaupendur að kynna sér vel ástand fasteigna fyrir kauptilboðsgerð og leita til þar til bærra sérfræðinga um nánari skoðun.


Forsendur söluyfirlits:
Söluyfirlit er samið af fasteignasala í samræmi við ákvæði laga nr. 70/2015. Þær upplýsingar sem fram koma í söluyfirliti þessu eru sóttar í opinberar skrár, til seljanda sjálfs og eftir atvikum til húsfélags. Seljandi veitir upplýsingar um eign í samræmi við upplýsingaskyldu laga um fasteignakaup nr. 40/2002. Fasteignasali sannreynir að þær upplýsingar séu réttar með sjónskoðun á eigninni.
Fasteignasali getur ekki fullyrt um ástand og eiginleika þeirra hluta fasteigna sem ekki eru aðgengilegir og sjást ekki berum augum, t.d. lagnir, dren, skólp og þak.


Gjöld sem kaupandi þarf að standa straum af vegna kaupanna:
1. Stimpilgjald af kaupsamningi, fyrstu kaup (0,4%), almenn kaup (0,8%), lögaðilar (1,6%) af heildarfasteignamati.
2. Þinglýsingargjald af kaupsamningi, veðskuldabréfi, mögulegu veðleyfi o.fl. - kr. 2.700 af hverju skjali.
3. Lántökugjald lánastofnunar - fast gjald. Sjá vefsíðu viðkomandi lánastofnanna
4. Umsýslugjald til fasteignasölu skv. kauptilboði


Húsaskjól fasteignasala

Húsaskjól fasteignasala

Hlíðasmára 2, 201 Kópavogur
Ár
Fasteignamat
Kaupverð
Stærð
Fermetraverð
13. des. 2022
53.600.000 kr.
72.500.000 kr.
109.7 m²
660.893 kr.
20. apr. 2015
32.000.000 kr.
32.200.000 kr.
109.7 m²
293.528 kr.
Byggt á upplýsingum úr Þjóðskrá Íslands frá 2006-2025
Húsaskjól fasteignasala

Húsaskjól fasteignasala

Hlíðasmára 2, 201 Kópavogur