Löggiltir fasteignasalar innan Félags fasteignasala:
Sigurður Ragnar Kristinsson
Vista
svg

2931

svg

2524  Skoðendur

svg

Skráð  16. okt. 2025

einbýlishús

Lækjarvegur 3

680 Þórshöfn

43.600.000 kr.

244.944 þ.kr./m2
Fasteignanúmer

F2167901

Fasteignamat

23.700.000 kr.

Brunabótamat

90.500.000 kr.

Áhvílandi

0 kr.

Arion banki – Reikna lán
Upplýsingar
svg
Byggt 1966
svg
178 m²
svg
5 herb.
svg
2 baðherb.
svg
4 svefnh.
svg
Þvottahús
svg
Bílskúr

Lýsing

Fasteignasala Þórshafnar
Sigurður Ragnar Kristinsson  Lgfs.

 

Lækjarvegur 3, 680 Þórshöfn.
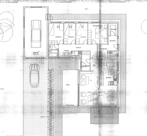
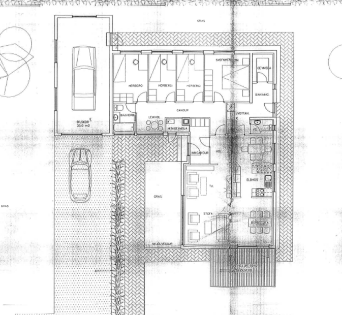
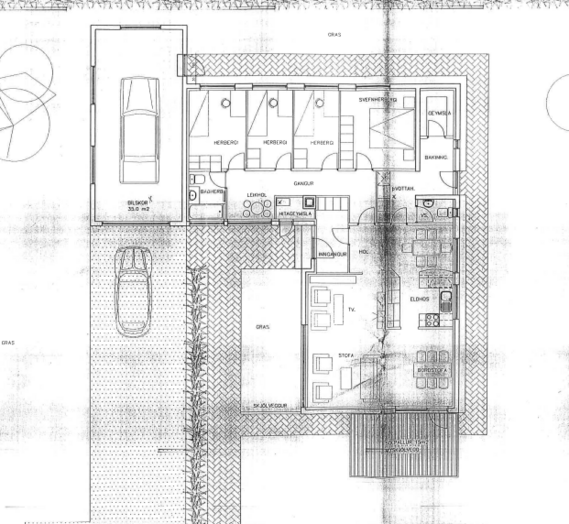
178 fm. 5 herbergja einbýlishús á einni hæð, þar af er sambyggður bílskúr 33,7 fm.
Húsið er byggt úr steinsteypu árið 1966 og hefur verið talsvert endurnýjað síðustu ár.
Húsið skiptist í : Anddyri með flísalögðu gólfi og innbyggðum fataskáp, samliggjandi hol,stofa og borðstofa eru með ljósu harðparketi, úr borðstofu er gengið út á nýlega timburverönd sem nær að aðalinngangi hússins. Úr holi og borðstofu er innangengt í eldhús, þar er harðparket á gólfi og c.a. 25 ára gömul innrétting. Inn af eldhúsi er þvottahús með innréttingu fyrir þvottavél og vask ásamt skápum og dyr að baklóð.  Inn af þvottahúsi er búr/geymsla, þar og í þvottahúsi eru máluð gólf. Lítil gestasnyrting með flísalögðu gólfi er einnig inn af eldhúsi.
Við svefnherbergisgang eru fjögur misstór herbergi, tvö stærri og tvö barnaherbergi, öll með innbyggðum fataskápum og harðparketi á gólfum.
Við enda gangsins er nýlega endurnýjað flísalagt baðherbergi með vegghengdu salerni og sturtuhorni. 
Gengið er inn í bílskúr af baklóð en að framan er hurð með sjálfvirkum opnara, þar er málað gólf og nokkrar hillur á veggjum.
Hitakerfi hússins er vatnsofnar tengdir við vatnshitatúbu.
Nýlegar endurbætur:
Fyrir 10-12 árum var skipt um þakjárn og rennur og húsið einangrað og klætt að utan með Canexel klæðningu.
Innihurðar (nema í geymslu og gestasnyrtingu) og gólfefni á herbergjum,gangi,holi,eldhúsi og stofum var endurnýjað fyrir þrem árum.
Fráveitulagnir undir og frá húsi hafa verið endurnýjaðar síðustu fimm ár, baðherbergi, hitakútur, hitatúba og neysluvatnslagnir voru endurnýjuð fyrir tveim árum .
Búið er að kaupa nýja ofna í húsið og verður skipt um þá á næstunni.
ATH: Sala hússins verður í opnu tilboðsferli, tilboðsfrestur er til hádegis 30.11.2025.  
Seljandi hefur sett sér lágmarksverð og verður hæsta fyrirvaralausa tilboði sem nær því, tekið að tilboðsfresti loknum (tilboð mega innihalda hefðbundinn fyrirvara um fjármögnun).
Seljandi áskilur sér rétt til að hafna öllum innkomnum tilboðum.
Líkt og við hefðbundna sölu þá verða nöfn tilboðsgjafa eingöngu kunn fasteignasala og umboðsmanni seljanda.


 

Nánari upplýsingar veitir Sigurður í síma 8592925 eða tölvupósti srk66@simnet.is
Um skoðunar- og aðgæsluskyldu:
Í lögum um fasteignakaup nr. 40/2002 er kveðið á um ríka skoðunarskyldu kaupenda á fasteignum. Fasteignasala Þórshafnar hvetur því
væntanlega kaupendur til að kynna sér gaumgæfilega ástand fasteigna fyrir kauptilboðsgerð og leita til þar til bærra fagmanna um nánari skoðun ef með þarf.

Forsendur söluyfirlits:
Söluyfirlit er samið af fasteignasala í samræmi við ákvæði laga nr. 70/2015. Þær upplýsingar sem fram koma í söluyfirliti þessu eru sóttar í opinberar skrár, til seljanda sjálfs og eftir atvikum til húsfélags. Seljandi veitir upplýsingar um eign í samræmi við upplýsingaskyldu laga um fasteignakaup nr. 40/2002. Fasteignasali sannreynir að þær upplýsingar séu réttar með sjónskoðun á eigninni. Fasteignasali getur ekki fullyrt um ástand og eiginleika þeirra hluta fasteigna sem ekki eru aðgengilegir og sjást ekki berum augum, t.d. lagnir, dren, skólp og þak.

img
Sigurður Ragnar Kristinsson
Lögg.fasteignasali innan félags fasteignasala
Fasteignasala Þórshafnar
Fjarðarvegi 45, 680 Þórshöfn
Fasteignasala Þórshafnar

Fasteignasala Þórshafnar

Fjarðarvegi 45, 680 Þórshöfn
phone
img

Sigurður Ragnar Kristinsson

Fjarðarvegi 45, 680 Þórshöfn
Fasteignasala Þórshafnar

Fasteignasala Þórshafnar

Fjarðarvegi 45, 680 Þórshöfn
phone

Sigurður Ragnar Kristinsson

Fjarðarvegi 45, 680 Þórshöfn