Löggiltir fasteignasalar innan Félags fasteignasala:
Sverrir Kristinsson
Kjartan Hallgeirsson
Guðlaugur Ingi Guðlaugsson
Daði Hafþórsson
Gunnar Helgi Einarsson
Gunnar Bergmann Jónsson
Lilja Guðmundsdóttir
Jenný Sandra Gunnarsdóttir
Kári Sighvatsson
Vista
svg

41

svg

38  Skoðendur

svg

Skráð  19. okt. 2025

fjölbýlishús

Bygggarðar 27, 309

170 Seltjarnarnes

124.900.000 kr.

1.182.765 þ.kr./m2
Fasteignanúmer

F2528716

Fasteignamat

89.350.000 kr.

Brunabótamat

69.610.000 kr.

Áhvílandi

0 kr.

Arion banki – Reikna lán
Upplýsingar
svg
Byggt 2024
svg
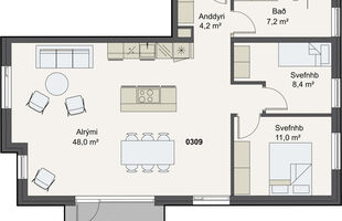
105,6 m²
svg
3 herb.
svg
1 baðherb.
svg
2 svefnh.
svg
Sameiginl. inngangur
svg
Bílastæði
svg
Lyfta
Opið hús: 26. október 2025 kl. 12:00 til 12:30

Gróttubyggð Seltjarnarnesi - Bygggarðar. Nýjar íbúðir til afhendingar við kaupsamning, 2ja, 3ja og 4ra herbergja, flestum íb fylgir stæði í bílageymslu og sumum tvö stæði. Sölumenn á staðnum sunnudaginn 26 okt kl. 12-12:30 verið velkomin

Lýsing

Eignamiðlun kynnir:

Gróttubyggð - B 27 íb 309 , 170 Seltjarnarnes er mjög vönduð 105.6 fm 3 herbergja endaíbúð. Gluggar á þrjá vegu. Eitt stæði í bílageymslu fylgir.
BÓKAÐU SKOÐUN HJÁ DAÐA Í SÍMA 824-9096, HILMARI Í SÍMA 824-9098, ÞÓRARNI Í SÍMA 899-1882 EÐA UNNARI Í SÍMA 867-0968  - SÝNUM ALLA DAGA

    Heimasíða verkefnisins                            Smelltu hér og fáðu söluyfirlit strax.
Eignamiðlun og JÁVERK ehf kynna nýjar eignir við Bygggarða á Seltjarnarnesi í glæsilegu lyftuhúsi í Gróttubyggð, sannkölluð náttúruparadís á Nesinu. Íbúðirnar eru afhentar fullbúnar án gólfefna með vönduðum innréttingum frá Selós, steinn á borðum. Flísalögð baðherbergi og þvottahús. Hver íbúð er útbúin loftræstikerfi með varmaendurvinnslu. Hiti er í gólfum og hljóðdúkur í hluta lofts. Ýmist fylgir eitt eða tvö bílastæði í kjallara hverri íbúð. Sjá nánar í skilalýsingu. 
                  
NÁNARI UPPLÝSINGAR GEFA
Daði Hafþórsson 824-9096 dadi@eignamidlun.is
Hilmar Hafsteinsson 824-9096 hilmar@eignamidlun.is
Þórarinn M.Friðgeirsson 899-1882 thorarinn@eignamidlun.is
Unnar Kjartansson   867-0968 unnar@eignamidlun.is

Afhending íbúðanna: VIÐ KAUPSAMNING

Nánar um Gróttubyggð: 
Bjartar og vel hannaðar íbúðir.
Fágun og gæði voru höfð að leiðarljósi við hönnun íbúðanna. Gluggar nema við gólf og eru hærri til lofts en gengur og gerist til að hámarka flæði birtu og útsýnis. Gólfhiti er í íbúðum og einnig er vélræn loftskipti sem tryggja aukin loftgæði.
Eldhúsinnréttingar eru sérsmíðaðar frá Selás. Skápar eru spónlagðir með eik og bæsaðir í bland við sprautulakkaðar einingar. Að innan eru skápar úr slitsterku melamin efni..Afar vönduð heimilistæki eru í íbúðum sem flest eru frá MIELE. Kæli-/frystiskápur og uppþvottavél eru innbyggð í innréttinguna og spanhelluborð með innbyggðum gufugleypi eru í flestum íbúðum. Dekton – Laos steinborðplötur eru í öllum eldhúsum, einnig er sama plata á milli borðplötu og efri skápa.
Bað-og þvottahúsinnréttingar eru sérsmíðaðar, vaskaskápar eru spónlagðir með eik og bæsaðir.
Jafnvægisstillt loftræsikerfi með varmaendurvinnslu er í hverri íbúð. Sérstakar hljóðísogsplötur bæta hljóðvist í íbúðunum , stent er að því að íbúðirnar hljóti svansvottun í verklok og miðast því allt efnisval og verkferlar við það. 
Húsið er staðsteypt einangrað og klætt að utan með svartri Dekton steinklæðningu, koparlitaðri álkasettuklæðningu og Bambusklæðingu.

***
Ábyrg þjónusta í áratugi. Eignamiðlun var stofnuð 1957 og er elsta starfandi fasteignasala á Íslandi. Reynsla, heiðarleiki og þekking á fasteignamarkaðnum eru grunnur að farsælum viðskiptum. 

Eignamiðlun Grensásvegi 11, 108 Reykjavík - Opið frá kl. 9-17 mánudaga til fimmtudaga og 9-16 á föstudögum.

Heimasíða Eignamiðlunar

Eignamiðlun á Facebook

Eignamiðlun

Eignamiðlun

Grensásvegi 11, 108 Reykjavík
Eignamiðlun

Eignamiðlun

Grensásvegi 11, 108 Reykjavík