Upplýsingar
Verðsaga
Byggt 2025
171,7 m²
4 herb.
2 baðherb.
3 svefnh.
Þvottahús
Bílskúr
Sérinngangur
Lýsing
ALLT fasteignasala kynnir í einkasölu eignina Huldudalur 9, birt stærð 171.7 fm. Aðeins 20 mínútna akstursfjarlægð frá Hafnarfirði
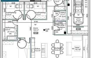
Huldudalur 5-9 er þriggja íbúða raðhús þar sem hver íbúð er með þremur svefnherbergjum og innangengum bílskúr.
Innimyndir eru af íbúð nr 7
Viðhaldslítið nýtískulegt og vel skipulögð raðhúsaíbúð.
Bókuð skoðun!
Skilalýsingu og frekari upplýsingar veita:
Páll Þorbjörnsson Löggiltur fasteignasali, í síma 560-5501, tölvupóstur pall@allt.is.
Sigurjón Rúnarsson Löggiltur fasteignasali, í síma 560-5524, tölvupóstur sigurjon@allt.is
*** Nýbygging afhending í Júní 2025
*** Baðherbergi og gestasalerni
*** Rúmgóð barnaherbergi
*** Stórt hjónaherbergi með fatarými
*** Afhendist full frá gengið að innan og utan.
Sjáið video hér af innra og ytra skipulagi
Skil eignar að utan
Útveggir eru klæddir að utan með stuðlaðri álklæðningu í sama lit og þakkantur (RAL7021)
Gluggar og hurði eru úr ál/timbri í svörtum lit að utan en frágangur í kringum glugga og hurðir er úr áli í sama lit og utanhússklæðningin.
Hellulögð innkeyrsla með snjóbræðslu og tilbúin til tenginga. Skýli fyrir þrjár flokkunartunnur
Lóð tyrfð með Hellulögð verönd sem í lyggja lagnir fyrir heitan/kaldan pott baka til. Skjólveggur á milli lóða.
Skil íbúðar að innan
Íbúðin skilast með fullbúnu loftræstikerfi með varmaendurvinnslu.
Eldhús skilast fullbúið með glæsilegum svörtum innréttingum frá Rehau. Tæki, helluborð, ískápur með frysti, innbyggður örbylgjuofn og bakarofn, uppþvottavél og steinn á borðum.
Stór baðherbergi skilast með svartri Rehau innréttingu með steinplötu. GROHE blöndunartæki. Sturta með gleri og hurð í möttum svörtum ramma. Innbyggð blöndunartæki í sturtu.
Þvottahús skilast með svartri Rehau innréttingu. Vaskur og blöndunatæki í steinborðplötu. Þvottavél og þurkari. Salerni með innbyggðum vatnskassa með glerfronti.
Svartar innihurðir með einföldum lömum. Fataskápar í stíl við aðrar innréttingar og hurðir
Allir milliveggir verða einangraðir, klæddir með OBS plötum, gipsi, spartlaðir, grunnaðir og full málaðir.
Ljósgrátt parket frá Quikstep, Í forstofu eru ljósgráar 60x60 flísar og einnig á salernum og þvottahúsi.
Bílskúr skilast með flotuðu steingólfi.
Öll gjöld sem tengjast gatnagerð, byggingarleyfi, skipulagi, lóðarkaupum og tengingu við veitustofnanir eru að fullu greidd.
Vertu tilbúin(n) þegar rétta eignin birtist – skráðu eignina þín í dag og tryggðu þér forskotið.
ALLT fasteignasala er staðsett á eftirfarandi stöðum:
Hafnargötu 91, 230 Reykjanesbæ - Þverholti 2, 270 Mosfellsbæ
Kostnaður kaupanda:
1. Af gjaldskyldum skjölum skal greiða 0,8% af fasteignamati ef kaupandi er einstaklingur, fyrstukaupendur 0,4% og 1,6% af fasteignamati ef kaupandi er lögaðili.
2. Þinglýsingargjald á hvert skjal er kr. 2.700.
3. Lántökugjald fer eftir verðskrá lánastofnunar hverju sinni.
4. Umsýslugjald til ALLT fasteignasölu er kr. 69.440 m/vsk.
5. Sé um nýbyggingu um að ræða greiðir kaupandi skipulagsgjald, 0,3% af brunabótamati, þegar það er lagt á.
Skoðunar- og aðgæsluskylda kaupanda:
Í lögum um fasteignakaup nr. 40/2002 er kveðið á um ríka skoðunarskyldu kaupenda á fasteignum. ALLT fasteignasala vill beina því til væntanlegs kaupanda að kynna sér ástand fasteignar vel við skoðun og fyrir tilboðsgerð. Ef þurfa þykir er ráðlagt að leita til sérfræðifróðra aðila. Forsendur söluyfirlits: Söluyfirlit þetta er samið af fasteignasala til samræmis við lög um sölu fasteigna og skipa nr. 70/2015. Upplýsingar þær sem koma fram í söluyfirliti þessu eru sóttar í opinberar skrár, frá seljanda og eftir atvikum til húsfélags. Seljandi veitir upplýsingar um eignina til samræmis við upplýsingaskyldu sína sbr. lög um fasteignakaup nr. 40/2002. Fasteignasali sannreynir að upplýsingar séu réttar með sjónskoðun á eigninni. Fasteignasali getur ekki fullyrt um ástand og eiginleika þeirra hluta fasteignar sem ekki eru aðgengilegir og sjást ekki með berum augum, eins og t.d. lagnir, dren, skólp og þak.
Huldudalur 5-9 er þriggja íbúða raðhús þar sem hver íbúð er með þremur svefnherbergjum og innangengum bílskúr.
Innimyndir eru af íbúð nr 7
Viðhaldslítið nýtískulegt og vel skipulögð raðhúsaíbúð.
Bókuð skoðun!
Skilalýsingu og frekari upplýsingar veita:
Páll Þorbjörnsson Löggiltur fasteignasali, í síma 560-5501, tölvupóstur pall@allt.is.
Sigurjón Rúnarsson Löggiltur fasteignasali, í síma 560-5524, tölvupóstur sigurjon@allt.is
*** Nýbygging afhending í Júní 2025
*** Baðherbergi og gestasalerni
*** Rúmgóð barnaherbergi
*** Stórt hjónaherbergi með fatarými
*** Afhendist full frá gengið að innan og utan.
Sjáið video hér af innra og ytra skipulagi
Skil eignar að utan
Útveggir eru klæddir að utan með stuðlaðri álklæðningu í sama lit og þakkantur (RAL7021)
Gluggar og hurði eru úr ál/timbri í svörtum lit að utan en frágangur í kringum glugga og hurðir er úr áli í sama lit og utanhússklæðningin.
Hellulögð innkeyrsla með snjóbræðslu og tilbúin til tenginga. Skýli fyrir þrjár flokkunartunnur
Lóð tyrfð með Hellulögð verönd sem í lyggja lagnir fyrir heitan/kaldan pott baka til. Skjólveggur á milli lóða.
Skil íbúðar að innan
Íbúðin skilast með fullbúnu loftræstikerfi með varmaendurvinnslu.
Eldhús skilast fullbúið með glæsilegum svörtum innréttingum frá Rehau. Tæki, helluborð, ískápur með frysti, innbyggður örbylgjuofn og bakarofn, uppþvottavél og steinn á borðum.
Stór baðherbergi skilast með svartri Rehau innréttingu með steinplötu. GROHE blöndunartæki. Sturta með gleri og hurð í möttum svörtum ramma. Innbyggð blöndunartæki í sturtu.
Þvottahús skilast með svartri Rehau innréttingu. Vaskur og blöndunatæki í steinborðplötu. Þvottavél og þurkari. Salerni með innbyggðum vatnskassa með glerfronti.
Svartar innihurðir með einföldum lömum. Fataskápar í stíl við aðrar innréttingar og hurðir
Allir milliveggir verða einangraðir, klæddir með OBS plötum, gipsi, spartlaðir, grunnaðir og full málaðir.
Ljósgrátt parket frá Quikstep, Í forstofu eru ljósgráar 60x60 flísar og einnig á salernum og þvottahúsi.
Bílskúr skilast með flotuðu steingólfi.
Öll gjöld sem tengjast gatnagerð, byggingarleyfi, skipulagi, lóðarkaupum og tengingu við veitustofnanir eru að fullu greidd.
Vertu tilbúin(n) þegar rétta eignin birtist – skráðu eignina þín í dag og tryggðu þér forskotið.
ALLT fasteignasala er staðsett á eftirfarandi stöðum:
Hafnargötu 91, 230 Reykjanesbæ - Þverholti 2, 270 Mosfellsbæ
Kostnaður kaupanda:
1. Af gjaldskyldum skjölum skal greiða 0,8% af fasteignamati ef kaupandi er einstaklingur, fyrstukaupendur 0,4% og 1,6% af fasteignamati ef kaupandi er lögaðili.
2. Þinglýsingargjald á hvert skjal er kr. 2.700.
3. Lántökugjald fer eftir verðskrá lánastofnunar hverju sinni.
4. Umsýslugjald til ALLT fasteignasölu er kr. 69.440 m/vsk.
5. Sé um nýbyggingu um að ræða greiðir kaupandi skipulagsgjald, 0,3% af brunabótamati, þegar það er lagt á.
Skoðunar- og aðgæsluskylda kaupanda:
Í lögum um fasteignakaup nr. 40/2002 er kveðið á um ríka skoðunarskyldu kaupenda á fasteignum. ALLT fasteignasala vill beina því til væntanlegs kaupanda að kynna sér ástand fasteignar vel við skoðun og fyrir tilboðsgerð. Ef þurfa þykir er ráðlagt að leita til sérfræðifróðra aðila. Forsendur söluyfirlits: Söluyfirlit þetta er samið af fasteignasala til samræmis við lög um sölu fasteigna og skipa nr. 70/2015. Upplýsingar þær sem koma fram í söluyfirliti þessu eru sóttar í opinberar skrár, frá seljanda og eftir atvikum til húsfélags. Seljandi veitir upplýsingar um eignina til samræmis við upplýsingaskyldu sína sbr. lög um fasteignakaup nr. 40/2002. Fasteignasali sannreynir að upplýsingar séu réttar með sjónskoðun á eigninni. Fasteignasali getur ekki fullyrt um ástand og eiginleika þeirra hluta fasteignar sem ekki eru aðgengilegir og sjást ekki með berum augum, eins og t.d. lagnir, dren, skólp og þak.
Ár
Fasteignamat
Kaupverð
Stærð
Fermetraverð
3. feb. 2025
24.250.000 kr.
200.000.000 kr.
10101 m²
19.800 kr.
Byggt á upplýsingum úr Þjóðskrá Íslands frá 2006-2025