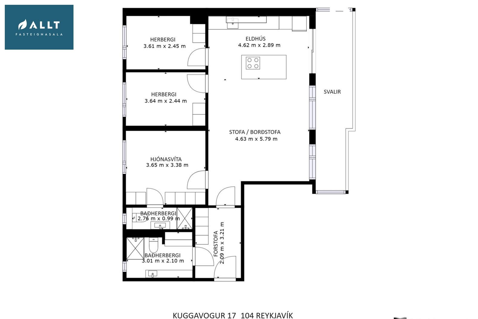
Kuggavogur, 104 Reykjavík