Upplýsingar
Byggt 1966
223,7 m²
6 herb.
2 baðherb.
4 svefnh.
Þvottahús
Bílskúr
Sérinngangur
Laus strax
Opið hús: 26. október 2025
kl. 13:00
til 13:30
Opið hús: Faxabraut 63, 230 Reykjanesbær. Eignin verður sýnd sunnudaginn 26. október 2025 milli kl. 13:00 og kl. 13:30.
Lýsing
Valný fasteignasala og Valgeir Leifur löggiltur fasteignasali kynna:
Faxabraut 63, 230 Reykjanesbær
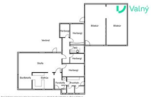
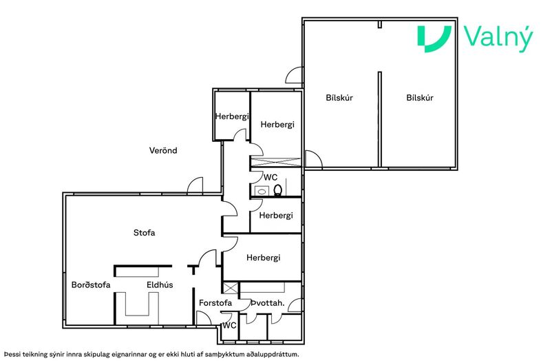
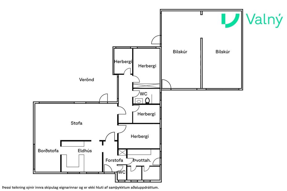
Sex herbergja einbýlishús með tvöföldum bílskúr á vinsælum stað í Keflavík. Eignin skiptist í fjögur svefnherbergi, eldhús, stofu og borðstofu með útgengi á verönd, baðherbergi og gestasalerni, þvottahús og geymslu. Laus við kaupsamning.
Smelltu hér til að fá söluyfirlit.
Samkvæmt fasteignaskrá HMS er eignin skráð samtals 223.7 m², þar af er íbúðarrými 147,60 m² og bílskúr 76,10 m².
Eign merkt 01-01, fastanúmer 208-7567 ásamt öllu því sem eigninni fylgir, þar með talið tilheyrandi lóðar og sameignarréttindi.
Lýsing og skipulag eignar:
Forstofa með flísalagt gólf og fatahengi. Panill á veggjum og lofti. Innaf forstofu er gestasalerni með flisalögðu gólfi, salernig og vaski.
Eldhús með upprunalegri U-laga innréttingu. Gott skápa- og skúffupláss. Korkur á golfi og panill í lofti. Uppvöskunarvél og ísskápur fylgja.
Stofa og borðstofa er með stórum gluggum. Útgengt á verönd frá stofu. Viðarparket á gólfi og panill í lofti.
Hjónaherbergi með fataskáp og harðparketi. Panill á veggjum og lofti.
Þrjú svefnherbergi með harðparketi á gólfum.
Baðherbergi flísalagt í hólf og gólf, með sturtu, salerni, handklæðaofni og innréttingu með skúffum. Baðherbergi var endurnýjað árið 2018.
Þvottahús er rúmgott með skolvaski og flísalögðu gólfi. Ásamt geymslu. Stígi upp á loft.
Bílskúr er tvöfaldur, 76,10 m² að stærð. LED lýsing í lofti.
Framkvæmdir að sögn seljenda:
2025 - Í bílskúr voru allar raflagnir fjarlægðar og nýjar lagðar og ný ljós að hluta. Smíðuð var lúga með stíga upp á loft.
2018 - Bárujárn endurnýjað á bílskúr. Vatnslagnir lagðar yfir í bílskúr. Allar vatnslagnir (heitt og kalt vatn) í húsinu endurnýjaðar, nýir ofnar að hluta, ekki ofnalagnir. Allt rafmagn var yfirfarið í húsinu og endurnýjað þar sem þurfti, ný rafmagnstafla var sett upp.
2018 - Baðherbergi endurnýjað. Flísar endurnýjaðar, öll baðtæki (blöndunartæki, sturta, klósett, vaskinnrétting, spegill, handklæðaofn) var endurnýjað og nýjar vatnslagnir lagðar að blöndunartækjum í sturtu.
2011 - Nýjir gluggar settir í stofu, borðstofu, herbergisgang og baðherbergi. Einnig nýjar hurðar í bakdyr í stofu út í garð og bakdyr í bílskúr.
Allar nánari upplýsingar veitir:
Valgeir Leifur / Löggiltur fasteignasali / 780-2575 / valgeir@valny.is
Ertu að leita að nýbyggingum? Skoðaðu úrvalið hjá Valný – smelltu hér.
Ertu að hugsa um að selja? Smelltu hér og fáðu frítt verðmat.
Ekki missa af draumaeigninni – fylgstu með okkur á Instagram og Facebook
Lestu reynslusögur frá ánægðum viðskiptavinum okkar.
- Fasteignasalan sem opnar dyrnar að þinni eign.
Valný fasteignasala | www.valny.is | Tjarnargötu 2, 230 Reykjanesbær | Opið alla virka daga frá 9:00-16:00
Faxabraut 63, 230 Reykjanesbær
Sex herbergja einbýlishús með tvöföldum bílskúr á vinsælum stað í Keflavík. Eignin skiptist í fjögur svefnherbergi, eldhús, stofu og borðstofu með útgengi á verönd, baðherbergi og gestasalerni, þvottahús og geymslu. Laus við kaupsamning.
Smelltu hér til að fá söluyfirlit.
Samkvæmt fasteignaskrá HMS er eignin skráð samtals 223.7 m², þar af er íbúðarrými 147,60 m² og bílskúr 76,10 m².
Eign merkt 01-01, fastanúmer 208-7567 ásamt öllu því sem eigninni fylgir, þar með talið tilheyrandi lóðar og sameignarréttindi.
Lýsing og skipulag eignar:
Forstofa með flísalagt gólf og fatahengi. Panill á veggjum og lofti. Innaf forstofu er gestasalerni með flisalögðu gólfi, salernig og vaski.
Eldhús með upprunalegri U-laga innréttingu. Gott skápa- og skúffupláss. Korkur á golfi og panill í lofti. Uppvöskunarvél og ísskápur fylgja.
Stofa og borðstofa er með stórum gluggum. Útgengt á verönd frá stofu. Viðarparket á gólfi og panill í lofti.
Hjónaherbergi með fataskáp og harðparketi. Panill á veggjum og lofti.
Þrjú svefnherbergi með harðparketi á gólfum.
Baðherbergi flísalagt í hólf og gólf, með sturtu, salerni, handklæðaofni og innréttingu með skúffum. Baðherbergi var endurnýjað árið 2018.
Þvottahús er rúmgott með skolvaski og flísalögðu gólfi. Ásamt geymslu. Stígi upp á loft.
Bílskúr er tvöfaldur, 76,10 m² að stærð. LED lýsing í lofti.
Framkvæmdir að sögn seljenda:
2025 - Í bílskúr voru allar raflagnir fjarlægðar og nýjar lagðar og ný ljós að hluta. Smíðuð var lúga með stíga upp á loft.
2018 - Bárujárn endurnýjað á bílskúr. Vatnslagnir lagðar yfir í bílskúr. Allar vatnslagnir (heitt og kalt vatn) í húsinu endurnýjaðar, nýir ofnar að hluta, ekki ofnalagnir. Allt rafmagn var yfirfarið í húsinu og endurnýjað þar sem þurfti, ný rafmagnstafla var sett upp.
2018 - Baðherbergi endurnýjað. Flísar endurnýjaðar, öll baðtæki (blöndunartæki, sturta, klósett, vaskinnrétting, spegill, handklæðaofn) var endurnýjað og nýjar vatnslagnir lagðar að blöndunartækjum í sturtu.
2011 - Nýjir gluggar settir í stofu, borðstofu, herbergisgang og baðherbergi. Einnig nýjar hurðar í bakdyr í stofu út í garð og bakdyr í bílskúr.
Allar nánari upplýsingar veitir:
Valgeir Leifur / Löggiltur fasteignasali / 780-2575 / valgeir@valny.is
Ertu að leita að nýbyggingum? Skoðaðu úrvalið hjá Valný – smelltu hér.
Ertu að hugsa um að selja? Smelltu hér og fáðu frítt verðmat.
Ekki missa af draumaeigninni – fylgstu með okkur á Instagram og Facebook
Lestu reynslusögur frá ánægðum viðskiptavinum okkar.
- Fasteignasalan sem opnar dyrnar að þinni eign.
Valný fasteignasala | www.valny.is | Tjarnargötu 2, 230 Reykjanesbær | Opið alla virka daga frá 9:00-16:00