Upplýsingar
Byggt 2024
140,8 m²
4 herb.
2 baðherb.
3 svefnh.
Þvottahús
Útsýni
Sameiginl. inngangur
Bílastæði
Lyfta
Lýsing
Kasa fasteignir - 461-2010
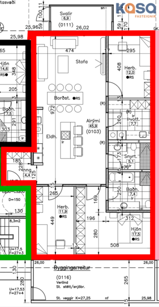
Hulduholt 2 íbúð 103 - Virklega glæsileg og vönduð 140,8 fm 4 herbergja íbúð á fyrstu hæð í nýju fjölbýli í Holtahverfi. Bílastæði í bílakjallara fylgir eigninni.
** Ljósmyndir eru úr sambærilegri íbúð í húsinu og eru einungis til að sýna efnisval og frágang **
Íbúðin er 128 fm, fjögurra herbergja og samanstendur af inngangi, baðherbergi, þvottaherbergi, eldhúsi, stofu, tveimur barnaherbergjum og hjónaherbergi með auka baðherbergi inn af því.
- Íbúðinni fylgir 12,8 fm geymsla í kjallara (0003), svalir til suðurs (0111 – 6,9 m2) og verönd til norðurs (0116 – 21,1 m2), ásamt sérafnotahluta á lóð við suður hlið íbúðar.
- Eigninni fylgir hluti í sameign, samkvæmt kaflanum um sameign.
- Í bílakjallara fylgir eigninni eitt bifreiðastæði merkt B09.
- Birt flatarmál séreignar er 140,8 m2.
Það helsta:
- Span helluborð, bakaraofn, combiofn, ísskápur með frysti og uppþvottavél fylgir.
- Sérsmíðaðar innréttingar og fataskápar.
- Steinn verður á bekkjum í eldhúsi og á baðherbergi.
- Hljóðdempandi dúkur og innfelld lýsing í öllum loftum.
- Vínyl parket með fiskibeinamunstri.
- Einstök hljóðvist.
- Loftskiptikerfi.
- KNX Ljósastýring.
- Bílastæði í bílakjallara.
** ATH Tölvuteiknaðar myndir eru einungis til viðmiðunar **
** Allar nánari upplýsingar og teikningar má fá á skrifstofu okkar **
Skilalýsing fjölbýlishúss við Hulduholt 2
FRÁGANGUR INNANHÚSS
Gólfefni
Íbúðirnar eru afhentar fullbúnar með gólfefnum og innréttingum, allar innréttingar eru sérsmíðarar á verkstæði Húsheildar/Hyrnu á Akureyri. Gólf á baðherbergi og þvottahúsi eru flísalögð með MV shine cal prestigio 75x150 mm flísum frá Vídd. Gólfefni í sameign, andyri fyrstu hæðar eru 60x120 mm flísum MV X fior di bosco matt frá Vídd. Gólfefni á stiga og stigapöllum, Classic Structure 3943-031 teppi frá Parket og gólf. Gólfefni á sameign í kjallara, er epoxi málað. Gólf í bílakjallara er stálað steingólf.
Veggir
Útveggir kjallara eru steinsteyptir, ásamt veggjum lyftuhúsa. Aðrir útveggir eru úr krosslímdum timbureiningum, eingangraðir að utan með 100mm steinull klæddir með álkerfi. Veggir milli íbúða eru 28sm úr 2x 12 sm krosslímdum timbureiningum með 25 mm einangrun á milli eininga. Allir veggir eru með hljóðdúk og farmacell klæddir. Allir veggir innanhúss eru annarsvegar úr krosslímdu timbri eða léttir grindarveggir, allir veggir eru klæddir með farmacell, sandsparslaðir og málaðir með tveimur umferðum.
Loft
Loftið er hljóðdúkur frá Pons.
Gluggar og gler
Gluggar eru ál-trégluggar, framleiddir af Húsheild/Hyrnu. Gler í öllum gluggum er tvöfalt K-gler frá Íspan Akureyri. Við kaup íbúðar yfirtekur kaupandi/kaupendur ábyrgð framleiðanda.
Hurðar
Inngangshurð bílakjallara og svalahurðir eru framleiddar í verkstæði Húsheildar/Hyrnu á Akureyri. Svala rennihurðir koma frá AMG. Innihurðar í íbúðum eru framleiddar á verkstæði Húsheildar Hyrnu.
Innihurðar í sameign eru frá Birgisson.
Fataskápar og geymsluskápar
Allir skápar eru framleiddir á verkstæði Húsheildar/Hyrnu. Push to open er á öllum opnanlegum forstykkjum
Eldhús
Innrétting eru sérsmíðaðar frá Húsheild/Hyrnu úr harðspón ýmist úr dökkri eða ljósri eik. Þrýstiopnun er á innréttingu. Bekkplatan er úr steini frá Grantítsteinum og heitir Dector 20 mm. Skúffubrautir og hengsli eru af viðurkenndri og vandaðri gerð. Þrýstiopnun er á innréttingu. Öll tæki eru Smith tæki frá Smith og Norland, svart keramik helluborð með innbyggðri viftu, bakarafon, sambyggður bakara/örbylgjuofn, innbyggður ísskápur með frystihólfi, innbyggð uppþvottavél. Stálvaskur og Grohe blöndunartæki frá BYKO. Hljóðdúkur í lofti og innfeld lýsing. Handlaugar og blöndunartæki eru frá Byko.
Baðherbergi
Innrétting eru sérsmíðaðar frá Húsheild/Hyrnu úr harðspón ýmist úr dökkri eða ljósri eik. Þrýstiopnun er á innréttingu. Bekkplatan er úr steini frá Grantítsteinum og heitir Dector 20 mm. Spegill við innréttingu frá Íspan og innféld lýsing. Flísar á veggjum og gólfi frá Vídd. Vegghengt klósett frá BYKO, glerveggir í sturtu, innfelld Grohe blöndunartæki af vandaðri gerð frá BYKO. Hljóðdúkur í lofti og innfeld lýsing.
Þvottahús
Í þvottahúsi er þvottatækjainnrétting. Allar innréttingar eru sérsmíðaðar af Húsheild/Hyrnu úr harðspón, ýmist úr ljósri eða dökkri eik. Þrýstiopnun er á innréttingu. Í þvottahúsi er skolvaskur úr stáli. Flísar á gólfi. Hljóðdúkur í lofti og innfelld lýsing. Grohe blöndunartæki frá Byko. Niðurfall er í gólfi og tengingar fyrir þvottavél og þurrkara. Gert er ráð fyrir barkalausum þurrkara.
Sérgeymsla
Sérgeymslur í kjallara fyrir hverja íbúð.
Hitakerfi
Íbúðirnar eru upphitaðar með gólfhita. stýring í hverju rými fyrir sig ásamt tengikistu.
Loftræsti- , vatns- og þrifalagnir
Loftræsti-, vatns-, og þrifalagnir fylgja frágengnar skv. teikningum. Forhitari er á heitu neysluvatni.
Rafmagns- og sjónvarpslagnir
Rafmagns- og sjónvarpslögn fylgja frágengnir og hefðbundin dyrabjalla er í hverri íbúð. Loftnets- og tölvutengill verður í alrými. Tölvutenglar verða í herbergjum. Ljósleiðari verður í húsinu, íbúðareigandi verður að setja sig í samband við fjarskiptafyrirtæki varðandi virkjun ljósleiðara. Innfelld lýsing í öllm rýmum með birtustýringu.
FRÁGANGUR UTANHÚSS
Hjóla- og vagnageymslur
Hjóla geymsla er úti, aðrar geyslur eru innanhús ásamt tækni rýmum. Útveggir eru steyptir, geymsluveggir eru úr gifsi og epoxy gólf.
Sorp
Sameiginleg sorpgeymsla úti í djúpgámum, snjóbræðsla er utanum gámsvæði. Djúpgámar eru frá Molok
Lyftur
Lyftur frá Héðinn/ Schindler er í báðum stigahúsum.
Bílastæði.
Eitt stæði fylgir hverri íbúð í bílakjallara og sameiginleg stæði er á malbikuðu bílastæði fyrir framan hús. Gert er ráð fyrir að hægt verði að koma fyrir rafmagnshleðslu í bílastæði.
Þak
Þakið á 3 hæð er úr krosslímdu timbri, einangrað með steinull og varið með PVC dúk. Þak yfir innfeldum svölum er steipt með steinull og PVC svaladúk.
Svalir
Stærri svalir á 3 hæð eru með snjóbræðslu og flísalagðar með 60x120 mm flísum frá Vídd. Sólpallar á jarðhæð eru steyptir eða flísalagðir. Sérafnotareitur íbúða á jarðhæð er
hellulagður. Minni svalir eru flísalagðar með 60x120 flísum hjá Vídd. Svalahandrið eru ýmist steypt eða úr álklæddu krosslímdu timbri.
Svalalokun
Gert ráð fyrir möguleika á svalalokun.
Lóð
Stétt yfir bílakjallara er með snjóbræðslu ásamt bílastæði fyrir fatlaða.
Húsið er úr korsslímdum timbureiningum, einangrað að utan og klætt með alubond álklæðningu. Lóð verður fullfrágenginn samkvæmt leiðbeinandi teikningu.
Íbúðir verða tilbúnar til afhendingar Vetur 2024/2025
Byggingaraðili er Húsheild/Hyrna
Nánari upplýsingar veita:
Helgi Steinar á helgi@kasafasteignir.is eða í síma 666-0999.
Sigurpáll á sigurpall@kasafasteignir.is eða í síma 696-1006.
Sibba á sibba@kasafasteignir.is eða í síma 864-0054.
Hulduholt 2 íbúð 103 - Virklega glæsileg og vönduð 140,8 fm 4 herbergja íbúð á fyrstu hæð í nýju fjölbýli í Holtahverfi. Bílastæði í bílakjallara fylgir eigninni.
** Ljósmyndir eru úr sambærilegri íbúð í húsinu og eru einungis til að sýna efnisval og frágang **
Íbúðin er 128 fm, fjögurra herbergja og samanstendur af inngangi, baðherbergi, þvottaherbergi, eldhúsi, stofu, tveimur barnaherbergjum og hjónaherbergi með auka baðherbergi inn af því.
- Íbúðinni fylgir 12,8 fm geymsla í kjallara (0003), svalir til suðurs (0111 – 6,9 m2) og verönd til norðurs (0116 – 21,1 m2), ásamt sérafnotahluta á lóð við suður hlið íbúðar.
- Eigninni fylgir hluti í sameign, samkvæmt kaflanum um sameign.
- Í bílakjallara fylgir eigninni eitt bifreiðastæði merkt B09.
- Birt flatarmál séreignar er 140,8 m2.
Það helsta:
- Span helluborð, bakaraofn, combiofn, ísskápur með frysti og uppþvottavél fylgir.
- Sérsmíðaðar innréttingar og fataskápar.
- Steinn verður á bekkjum í eldhúsi og á baðherbergi.
- Hljóðdempandi dúkur og innfelld lýsing í öllum loftum.
- Vínyl parket með fiskibeinamunstri.
- Einstök hljóðvist.
- Loftskiptikerfi.
- KNX Ljósastýring.
- Bílastæði í bílakjallara.
** ATH Tölvuteiknaðar myndir eru einungis til viðmiðunar **
** Allar nánari upplýsingar og teikningar má fá á skrifstofu okkar **
Skilalýsing fjölbýlishúss við Hulduholt 2
FRÁGANGUR INNANHÚSS
Gólfefni
Íbúðirnar eru afhentar fullbúnar með gólfefnum og innréttingum, allar innréttingar eru sérsmíðarar á verkstæði Húsheildar/Hyrnu á Akureyri. Gólf á baðherbergi og þvottahúsi eru flísalögð með MV shine cal prestigio 75x150 mm flísum frá Vídd. Gólfefni í sameign, andyri fyrstu hæðar eru 60x120 mm flísum MV X fior di bosco matt frá Vídd. Gólfefni á stiga og stigapöllum, Classic Structure 3943-031 teppi frá Parket og gólf. Gólfefni á sameign í kjallara, er epoxi málað. Gólf í bílakjallara er stálað steingólf.
Veggir
Útveggir kjallara eru steinsteyptir, ásamt veggjum lyftuhúsa. Aðrir útveggir eru úr krosslímdum timbureiningum, eingangraðir að utan með 100mm steinull klæddir með álkerfi. Veggir milli íbúða eru 28sm úr 2x 12 sm krosslímdum timbureiningum með 25 mm einangrun á milli eininga. Allir veggir eru með hljóðdúk og farmacell klæddir. Allir veggir innanhúss eru annarsvegar úr krosslímdu timbri eða léttir grindarveggir, allir veggir eru klæddir með farmacell, sandsparslaðir og málaðir með tveimur umferðum.
Loft
Loftið er hljóðdúkur frá Pons.
Gluggar og gler
Gluggar eru ál-trégluggar, framleiddir af Húsheild/Hyrnu. Gler í öllum gluggum er tvöfalt K-gler frá Íspan Akureyri. Við kaup íbúðar yfirtekur kaupandi/kaupendur ábyrgð framleiðanda.
Hurðar
Inngangshurð bílakjallara og svalahurðir eru framleiddar í verkstæði Húsheildar/Hyrnu á Akureyri. Svala rennihurðir koma frá AMG. Innihurðar í íbúðum eru framleiddar á verkstæði Húsheildar Hyrnu.
Innihurðar í sameign eru frá Birgisson.
Fataskápar og geymsluskápar
Allir skápar eru framleiddir á verkstæði Húsheildar/Hyrnu. Push to open er á öllum opnanlegum forstykkjum
Eldhús
Innrétting eru sérsmíðaðar frá Húsheild/Hyrnu úr harðspón ýmist úr dökkri eða ljósri eik. Þrýstiopnun er á innréttingu. Bekkplatan er úr steini frá Grantítsteinum og heitir Dector 20 mm. Skúffubrautir og hengsli eru af viðurkenndri og vandaðri gerð. Þrýstiopnun er á innréttingu. Öll tæki eru Smith tæki frá Smith og Norland, svart keramik helluborð með innbyggðri viftu, bakarafon, sambyggður bakara/örbylgjuofn, innbyggður ísskápur með frystihólfi, innbyggð uppþvottavél. Stálvaskur og Grohe blöndunartæki frá BYKO. Hljóðdúkur í lofti og innfeld lýsing. Handlaugar og blöndunartæki eru frá Byko.
Baðherbergi
Innrétting eru sérsmíðaðar frá Húsheild/Hyrnu úr harðspón ýmist úr dökkri eða ljósri eik. Þrýstiopnun er á innréttingu. Bekkplatan er úr steini frá Grantítsteinum og heitir Dector 20 mm. Spegill við innréttingu frá Íspan og innféld lýsing. Flísar á veggjum og gólfi frá Vídd. Vegghengt klósett frá BYKO, glerveggir í sturtu, innfelld Grohe blöndunartæki af vandaðri gerð frá BYKO. Hljóðdúkur í lofti og innfeld lýsing.
Þvottahús
Í þvottahúsi er þvottatækjainnrétting. Allar innréttingar eru sérsmíðaðar af Húsheild/Hyrnu úr harðspón, ýmist úr ljósri eða dökkri eik. Þrýstiopnun er á innréttingu. Í þvottahúsi er skolvaskur úr stáli. Flísar á gólfi. Hljóðdúkur í lofti og innfelld lýsing. Grohe blöndunartæki frá Byko. Niðurfall er í gólfi og tengingar fyrir þvottavél og þurrkara. Gert er ráð fyrir barkalausum þurrkara.
Sérgeymsla
Sérgeymslur í kjallara fyrir hverja íbúð.
Hitakerfi
Íbúðirnar eru upphitaðar með gólfhita. stýring í hverju rými fyrir sig ásamt tengikistu.
Loftræsti- , vatns- og þrifalagnir
Loftræsti-, vatns-, og þrifalagnir fylgja frágengnar skv. teikningum. Forhitari er á heitu neysluvatni.
Rafmagns- og sjónvarpslagnir
Rafmagns- og sjónvarpslögn fylgja frágengnir og hefðbundin dyrabjalla er í hverri íbúð. Loftnets- og tölvutengill verður í alrými. Tölvutenglar verða í herbergjum. Ljósleiðari verður í húsinu, íbúðareigandi verður að setja sig í samband við fjarskiptafyrirtæki varðandi virkjun ljósleiðara. Innfelld lýsing í öllm rýmum með birtustýringu.
FRÁGANGUR UTANHÚSS
Hjóla- og vagnageymslur
Hjóla geymsla er úti, aðrar geyslur eru innanhús ásamt tækni rýmum. Útveggir eru steyptir, geymsluveggir eru úr gifsi og epoxy gólf.
Sorp
Sameiginleg sorpgeymsla úti í djúpgámum, snjóbræðsla er utanum gámsvæði. Djúpgámar eru frá Molok
Lyftur
Lyftur frá Héðinn/ Schindler er í báðum stigahúsum.
Bílastæði.
Eitt stæði fylgir hverri íbúð í bílakjallara og sameiginleg stæði er á malbikuðu bílastæði fyrir framan hús. Gert er ráð fyrir að hægt verði að koma fyrir rafmagnshleðslu í bílastæði.
Þak
Þakið á 3 hæð er úr krosslímdu timbri, einangrað með steinull og varið með PVC dúk. Þak yfir innfeldum svölum er steipt með steinull og PVC svaladúk.
Svalir
Stærri svalir á 3 hæð eru með snjóbræðslu og flísalagðar með 60x120 mm flísum frá Vídd. Sólpallar á jarðhæð eru steyptir eða flísalagðir. Sérafnotareitur íbúða á jarðhæð er
hellulagður. Minni svalir eru flísalagðar með 60x120 flísum hjá Vídd. Svalahandrið eru ýmist steypt eða úr álklæddu krosslímdu timbri.
Svalalokun
Gert ráð fyrir möguleika á svalalokun.
Lóð
Stétt yfir bílakjallara er með snjóbræðslu ásamt bílastæði fyrir fatlaða.
Húsið er úr korsslímdum timbureiningum, einangrað að utan og klætt með alubond álklæðningu. Lóð verður fullfrágenginn samkvæmt leiðbeinandi teikningu.
Íbúðir verða tilbúnar til afhendingar Vetur 2024/2025
Byggingaraðili er Húsheild/Hyrna
Nánari upplýsingar veita:
Helgi Steinar á helgi@kasafasteignir.is eða í síma 666-0999.
Sigurpáll á sigurpall@kasafasteignir.is eða í síma 696-1006.
Sibba á sibba@kasafasteignir.is eða í síma 864-0054.