Upplýsingar
Byggt 2025
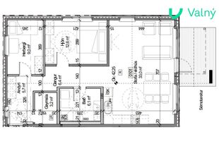
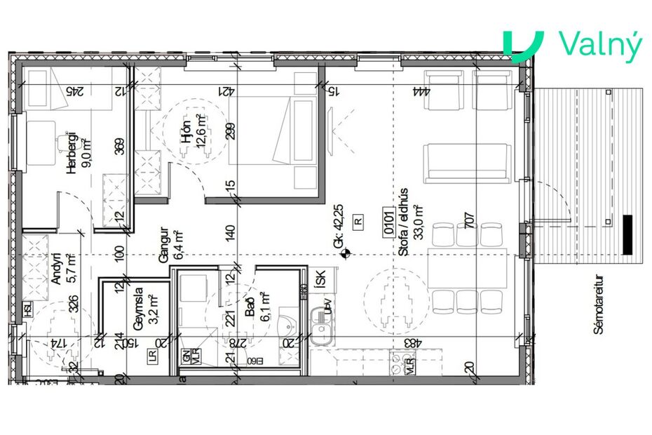
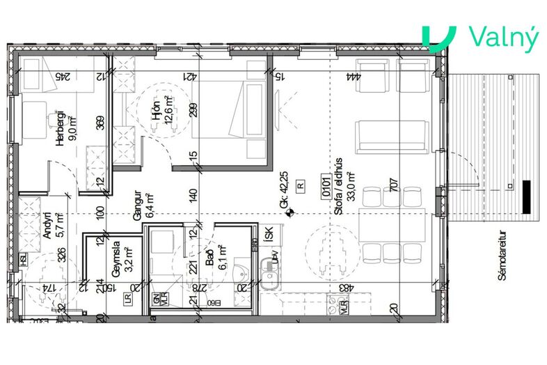
90,3 m²
3 herb.
1 baðherb.
2 svefnh.
Sérinngangur
Laus strax
Opið hús: 26. október 2025
kl. 14:00
til 14:30
Opið hús: Dísardalur 9, 260 Reykjanesbær, Íbúð merkt: 101. Eignin verður sýnd sunnudaginn 26. október 2025 milli kl. 14:00 og kl. 14:30. ***Valgeir Leifur - s. 780-2575***
Lýsing
Valný fasteignasala og Valgeir Leifur löggiltur fasteignasali kynna:
Dísardalur 9, íbúð 101, 260 Reykjanesbær
Ný og fullbúin þriggja herbergja íbúð á jarðhæð í Dalshverfi III. Sérinngangur, sérnotareitur til suðvesturs og geymsla innan íbúðar. Afhending við kaupsamning.
Smelltu hér til að fá sent söluyfirlit.
Samkvæmt fasteignaskrá HMS er eignin skráð samtals 90.3 m².
Eign merkt 01-01, fastanúmer 253-0444 ásamt öllu því sem eigninni fylgir, þar með talið tilheyrandi lóðar og sameignarréttindi.
Eignin skilast fullbúin skv. skilalýsingu:
Frágangur innanhúss:
Innréttingar frá HTH eða sambærilegum gæðum.
Eldhús samkvæmt teikningu, skúffur með mjúklokun. Tæki: bakaraofn, helluborð og háfur með kolasíu frá AEG eða sambærilegu. Borðplata úr plastefni. Seljandi áskilur sér rétt til efnis- og litabreytinga á framkvæmdatíma.
Baðherbergi flísalagt (30×60 cm eða 60×60 cm þar sem við á) á gólfi og veggjum að hluta. Upphengt salerni, handklæðaofn og flísalögð walk-in sturta. Speglar fylgja ekki.
Hreinlætistæki eru frá Grohe eða sambærilegt.
Gólfefni parket (eða vinylparket að vali seljanda) í alrými og herbergjum, flísar í votrýmum. Flísar og parket frá Álfaborg eða sambærilegu.
Innihurðir yfirfelldar, áferð hvíttuð eik eða hvítt sprautulakk. Ringo eða sambærileg.
Frágangur utanhúss:
Húsið er byggt úr forsteyptum einingum. Þakplata með tveimur lögum heilbrædds þakpappa, XPS einangrun, jarðvegsdúk og harpaðri þakmöl. Gluggar ál/timbur (BYKO). Hurðir og opnanleg fög úr áli (BYKO). Innveggir og loft spartlað, grunnað og málað í ljósum lit. Svalir eru forsteyptar og svalahandrið eru úr málmrimlum. Sérnotareitur íbúða(pallar) á jarðhæð eru ýmist hellulögð (með t.d. 30x30 hellum) og eða timburpallar.
Lóð, aðkoma og sameign:
Bílastæði eru samkvæmt skipulagsskilmálum og hönnunargögnum. Stæði eru áætluð fyrir hreyfihamlaða. Bílastæði eru malbikuð, afmörkuð með kantsteini að utanverðu en merkt með málningu. Gönguleiðir eru ýmist hellulagðar, steyptar og eða malbikaðar. Lóð er að öðru leyti tyrft. Sorptunnuskýli og eða djúpgámar eru samkvæmt lóðarblaði á sameiginlegu svæði Á jarðhæð er hjóla- og vagnageymsla í sameign. Gólf í inntaksrými og hjóla- og vagnageymslur verða máluð. Inntaksrými og hjóla- og vagnageymslur eru innan sama rýmis.
Fyrir nánari lýsingu vísast til skilalýsingar byggingaraðila.
Um verkefnið – Dalshverfi III
Dalshverfi III í Innri-Njarðvík er nýtt og ört vaxandi hverfi. Heildarfjöldi íbúða í verkefninu er 146 í 20 húsum, tveggja hæða fjölbýli með sérinngöngum. Íbúðastærðir eru u.þ.b. 55–120 m², ýmist 2ja, 3ja og 4ra herbergja. Allar íbúðir afhendast fullbúnar að innan sem utan með gólfefnum. Svalir og sólpallar snúa að suðvestri.
Smelltu hér til að sjá nánar um allar eignirnar.
Myndir eru til viðmiðunar og geta verið úr sambærilegri íbúð, en endurspegla ekki endilega þessa tilteknu íbúð.
Allar nánari upplýsingar veitir:
Valgeir Leifur / Löggiltur fasteignasali / 780-2575 / valgeir@valny.is
Ertu að leita að nýbyggingum? Skoðaðu úrvalið hjá Valný – smelltu hér.
Ertu að hugsa um að selja? Smelltu hér og fáðu frítt verðmat.
Ekki missa af draumaeigninni – fylgstu með okkur á Instagram og Facebook
Lestu reynslusögur frá ánægðum viðskiptavinum okkar.
- Fasteignasalan sem opnar dyrnar að þinni eign.
Valný fasteignasala | www.valny.is | Tjarnargötu 2, 230 Reykjanesbær | Opið alla virka daga frá 9:00-16:00
Dísardalur 9, íbúð 101, 260 Reykjanesbær
Ný og fullbúin þriggja herbergja íbúð á jarðhæð í Dalshverfi III. Sérinngangur, sérnotareitur til suðvesturs og geymsla innan íbúðar. Afhending við kaupsamning.
Smelltu hér til að fá sent söluyfirlit.
Samkvæmt fasteignaskrá HMS er eignin skráð samtals 90.3 m².
Eign merkt 01-01, fastanúmer 253-0444 ásamt öllu því sem eigninni fylgir, þar með talið tilheyrandi lóðar og sameignarréttindi.
Eignin skilast fullbúin skv. skilalýsingu:
Frágangur innanhúss:
Innréttingar frá HTH eða sambærilegum gæðum.
Eldhús samkvæmt teikningu, skúffur með mjúklokun. Tæki: bakaraofn, helluborð og háfur með kolasíu frá AEG eða sambærilegu. Borðplata úr plastefni. Seljandi áskilur sér rétt til efnis- og litabreytinga á framkvæmdatíma.
Baðherbergi flísalagt (30×60 cm eða 60×60 cm þar sem við á) á gólfi og veggjum að hluta. Upphengt salerni, handklæðaofn og flísalögð walk-in sturta. Speglar fylgja ekki.
Hreinlætistæki eru frá Grohe eða sambærilegt.
Gólfefni parket (eða vinylparket að vali seljanda) í alrými og herbergjum, flísar í votrýmum. Flísar og parket frá Álfaborg eða sambærilegu.
Innihurðir yfirfelldar, áferð hvíttuð eik eða hvítt sprautulakk. Ringo eða sambærileg.
Frágangur utanhúss:
Húsið er byggt úr forsteyptum einingum. Þakplata með tveimur lögum heilbrædds þakpappa, XPS einangrun, jarðvegsdúk og harpaðri þakmöl. Gluggar ál/timbur (BYKO). Hurðir og opnanleg fög úr áli (BYKO). Innveggir og loft spartlað, grunnað og málað í ljósum lit. Svalir eru forsteyptar og svalahandrið eru úr málmrimlum. Sérnotareitur íbúða(pallar) á jarðhæð eru ýmist hellulögð (með t.d. 30x30 hellum) og eða timburpallar.
Lóð, aðkoma og sameign:
Bílastæði eru samkvæmt skipulagsskilmálum og hönnunargögnum. Stæði eru áætluð fyrir hreyfihamlaða. Bílastæði eru malbikuð, afmörkuð með kantsteini að utanverðu en merkt með málningu. Gönguleiðir eru ýmist hellulagðar, steyptar og eða malbikaðar. Lóð er að öðru leyti tyrft. Sorptunnuskýli og eða djúpgámar eru samkvæmt lóðarblaði á sameiginlegu svæði Á jarðhæð er hjóla- og vagnageymsla í sameign. Gólf í inntaksrými og hjóla- og vagnageymslur verða máluð. Inntaksrými og hjóla- og vagnageymslur eru innan sama rýmis.
Fyrir nánari lýsingu vísast til skilalýsingar byggingaraðila.
Um verkefnið – Dalshverfi III
Dalshverfi III í Innri-Njarðvík er nýtt og ört vaxandi hverfi. Heildarfjöldi íbúða í verkefninu er 146 í 20 húsum, tveggja hæða fjölbýli með sérinngöngum. Íbúðastærðir eru u.þ.b. 55–120 m², ýmist 2ja, 3ja og 4ra herbergja. Allar íbúðir afhendast fullbúnar að innan sem utan með gólfefnum. Svalir og sólpallar snúa að suðvestri.
Smelltu hér til að sjá nánar um allar eignirnar.
Myndir eru til viðmiðunar og geta verið úr sambærilegri íbúð, en endurspegla ekki endilega þessa tilteknu íbúð.
Allar nánari upplýsingar veitir:
Valgeir Leifur / Löggiltur fasteignasali / 780-2575 / valgeir@valny.is
Ertu að leita að nýbyggingum? Skoðaðu úrvalið hjá Valný – smelltu hér.
Ertu að hugsa um að selja? Smelltu hér og fáðu frítt verðmat.
Ekki missa af draumaeigninni – fylgstu með okkur á Instagram og Facebook
Lestu reynslusögur frá ánægðum viðskiptavinum okkar.
- Fasteignasalan sem opnar dyrnar að þinni eign.
Valný fasteignasala | www.valny.is | Tjarnargötu 2, 230 Reykjanesbær | Opið alla virka daga frá 9:00-16:00