Upplýsingar
Verðsaga
Byggt 2006
105,8 m²
4 herb.
1 baðherb.
3 svefnh.
Þvottahús
Sameiginl. inngangur
Bílastæði
Lyfta
Lýsing
Prima fasteignasala og Björgvin Þór Rúnarsson lgf kynna eignina Flatahraun 1 íbúð merkt 101, 220 Hafnarfjörður.
Til sölu bjarta og fallega þriggja herbergja íbúð með suðurpalli og sérmerktu bílastæði í bílageymslu í snyrtilegu lyftuhúsi við Flatahraun í Hafnarfirði.
Íbúðin er í góðu fjölbýlishúsi þar sem stutt er í alla helstu þjónustu, svo sem skóla, leikskóla, íþóttastarf, matvöruverslanir og veitingastaði.
Hér er um að ræða rúmgóða og vel skipulagða íbúð með 2/3 svefnherbergjum, suðursvölum og bílastæði á góðum stað í lokaðri bílageymslu.
Geymsla innan íbúðar er með glugga og þar er góður möguleiki á að bæta við aukaherbegi.
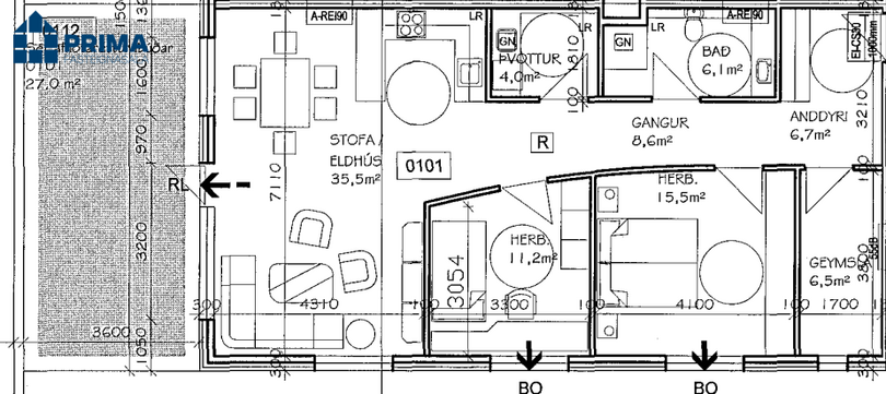
Fallegar innréttingar og gólfefni. Íbúðin er á fyrstu hæð og er alls skráð 105,8 fm að stærð.
Nánari lýsing:
Komið er inn í forstofu með parket á gólfi og fataskápum.
Eldhús, borðstofa og stofa eru í einu opnu og björtu rými og þar er gengið út á verönd. Eldhús er með fallegri innréttingu, ofni í vinnuhæð og helluborði. Parket á gólfum.
Herbergi I er parketlagt með mjög góðu skápaplássi.
Herbergi II er með fataskáp og gólf er parketlagt.
Geymsla með glugga/Herbergi 3.
Baðherbergi er með góðu skápaplássi, stór sturta, upphengt salerni, handklæðaofn og flísar á gólfi.
Þvottahús er innan íbúðar. Þar eru skolvaskur, hillur og flísar á gólfi.
Íbúðin var öll tekin í gegn árið 2020 utan baðherbergi.
Sameign hússins er snyrtileg. Lyfta er í húsinu og í kjallara er sameiginleg hjóla- og vagnageymsla. Vel staðsett og sérmerkt bílastæði í lokuðum bílakjallara. Í bílakjallara er einnig sameiginleg bílaþvottaaðstaða.
Nánari upplýsingar veita:
Björgvin Þór Rúnarsson löggiltur fasteignasali
s.8551544 / bjorgvin@primafasteignir.is
Gjöld sem kaupandi þarf að standa straum af vegna kaupanna:
Stimpilgjald af kaupsamningi sem er hlutfall af fasteignamati. Stimpilgjald er 0,8% fyrir einstaklinga (0,4% við fyrstu kaup) og 1,6% fyrir lögaðila.
Þinglýsingargjald af kaupsamningi, veðskuldabréfum, veðleyfum o.fl. Þinglýsingargjald er kr. 2.700,- fyrir hvert skjal.
Lántökugjald lánastofnunar. Um lántökugjald vísast í gjaldskrá viðkomandi lánveitanda.
Umsýsluþóknun fasteignasölu skv. gjaldskrá.
Ef um nýbyggingu er að ræða greiðir kaupandi skipulagsgjald, 0,3% af brunabótamáti, þegar það er lagt á.
Til sölu bjarta og fallega þriggja herbergja íbúð með suðurpalli og sérmerktu bílastæði í bílageymslu í snyrtilegu lyftuhúsi við Flatahraun í Hafnarfirði.
Íbúðin er í góðu fjölbýlishúsi þar sem stutt er í alla helstu þjónustu, svo sem skóla, leikskóla, íþóttastarf, matvöruverslanir og veitingastaði.
Hér er um að ræða rúmgóða og vel skipulagða íbúð með 2/3 svefnherbergjum, suðursvölum og bílastæði á góðum stað í lokaðri bílageymslu.
Geymsla innan íbúðar er með glugga og þar er góður möguleiki á að bæta við aukaherbegi.
Fallegar innréttingar og gólfefni. Íbúðin er á fyrstu hæð og er alls skráð 105,8 fm að stærð.
Nánari lýsing:
Komið er inn í forstofu með parket á gólfi og fataskápum.
Eldhús, borðstofa og stofa eru í einu opnu og björtu rými og þar er gengið út á verönd. Eldhús er með fallegri innréttingu, ofni í vinnuhæð og helluborði. Parket á gólfum.
Herbergi I er parketlagt með mjög góðu skápaplássi.
Herbergi II er með fataskáp og gólf er parketlagt.
Geymsla með glugga/Herbergi 3.
Baðherbergi er með góðu skápaplássi, stór sturta, upphengt salerni, handklæðaofn og flísar á gólfi.
Þvottahús er innan íbúðar. Þar eru skolvaskur, hillur og flísar á gólfi.
Íbúðin var öll tekin í gegn árið 2020 utan baðherbergi.
Sameign hússins er snyrtileg. Lyfta er í húsinu og í kjallara er sameiginleg hjóla- og vagnageymsla. Vel staðsett og sérmerkt bílastæði í lokuðum bílakjallara. Í bílakjallara er einnig sameiginleg bílaþvottaaðstaða.
Nánari upplýsingar veita:
Björgvin Þór Rúnarsson löggiltur fasteignasali
s.8551544 / bjorgvin@primafasteignir.is
Gjöld sem kaupandi þarf að standa straum af vegna kaupanna:
Stimpilgjald af kaupsamningi sem er hlutfall af fasteignamati. Stimpilgjald er 0,8% fyrir einstaklinga (0,4% við fyrstu kaup) og 1,6% fyrir lögaðila.
Þinglýsingargjald af kaupsamningi, veðskuldabréfum, veðleyfum o.fl. Þinglýsingargjald er kr. 2.700,- fyrir hvert skjal.
Lántökugjald lánastofnunar. Um lántökugjald vísast í gjaldskrá viðkomandi lánveitanda.
Umsýsluþóknun fasteignasölu skv. gjaldskrá.
Ef um nýbyggingu er að ræða greiðir kaupandi skipulagsgjald, 0,3% af brunabótamáti, þegar það er lagt á.
Ár
Fasteignamat
Kaupverð
Stærð
Fermetraverð
31. jan. 2020
45.500.000 kr.
41.500.000 kr.
105.8 m²
392.250 kr.
Byggt á upplýsingum úr Þjóðskrá Íslands frá 2006-2025