Upplýsingar
Byggt 1960
102,3 m²
3 herb.
2 svefnh.
Lýsing
Háborg kynnir: Skipholt 1 - Nýlega endurbyggt hús. Íbúð 406.
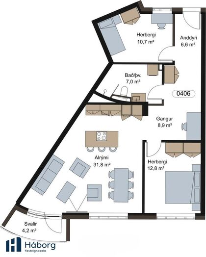
Íbúð 406 er rúmgóð 3ja herbergja íbúð í fallegu enduruppgerðu lyftuhúsi í útjaðri miðborgarinnar. Inngangur frá sameign. Forstofa með góðum skápum, tvö svefnherbergi. Stórt bjart alrými með útgengi á 3,8 fm suðursvalir. Baðherbergi með sturtu og þvottaaðstöðu. Harðparket á gólfum og innbyggður ísskápur og uppþvottavél. Sjálf íbúðin er 89,5 fm og geymsla í kjallara 12,8 fm. Einstakar sameiginlegar þaksvalir á 5. hæð. Örstutt göngufæri í matvöruverslun og niður á Hlemm, sem er að umbreytast í grænt og vænt almenningsrými.
Ath. að myndir eru úr íbúð 306, sem er eins að skipulagi.
Sjá á heimasíðu verkefnisins.
Allar nánari upplýsingar veita Þórir Helgi Sigvaldason lögm. og lgf. í síma 823-7170, eða á thorir@haborg.is, Þórunn Pálsdóttir lgf, s. 773-6000, thorunn@haborg.is, Jórunn Skúladóttir lgf., s. 845-8958, jorunn@haborg.is, og Katla Hanna Steed lgf., s. 822-1661 eða katla@haborg.is.
Húsið: Skipholt 1 er glæsileg endurbygging á frábærum stað í hjarta Reykjavíkur á horni Stórholts og Skipholts mót hásuðri. Í reisulegu húsi þar sem Listaháskóli Íslands var starfræktur í áratugi hafa nú verið innréttaðar 34 heillandi íbúðir og tvö atvinnurými. Einstakar sameiginlegar þaksvalir á 5.hæð hússins auka lífsgæði allra íbúa, en þar er sólríkt og magnað útsýni til sjávar og fjalla.
Hönnun: HAF studio kom að hönnun og efnisvali í íbúðirnar. Allar íbúðir afhendast fullbúnar með 8mm harðparketi frá Agli Árnasyni, svo og innbyggðum ísskáp og uppþvottavél frá AEG. Innréttingar koma frá GKS, flísar frá Harðviðarvali, hurðar frá Agli Árnasyni, blöndunartæki í eldhúsi og baðherbergi eru frá Grohe, sturtutæki eru einnig frá Grohe, salerni eru með hæglokandi setum, heimilistæki eru frá AEG (ofn, helluborð, innbyggður ísskápur, vifta með kolafilter og uppþvottavél) Hefðbundið ofnakerfi er á íbúðum með hitastýribúnaði frá Danfoss.
Garðurinn: Á bak við húsið er heillandi og skjólgóður inngarður hannaður af Hermanni Ólafssyni landslagsarkitekt.
Þar kallast fjölbreyttur gróður á við hellur og útskorið malbik sem myndar göngustíg sem liðast eins og lækur eftir garðinum. Pollaljós og garðljós gefa fallega birtu. Innst til hægri er upplyft hellulagt dvalarsvæði.
Staðsetning: Hér er allt sem þarf fyrir nútímalegan miðborgarlífsstíl. Fjöldi veitingastaða og fjölbreytt þjónusta í stuttu göngufæri að ógleymdri útivistarperlunni Klambratúni. Íbúar í Skipholti eiga rétt á íbúakorti og mega þá leggja í gjaldskyldum stæðum á svæði H, auk þess sem ógjaldskyld stæði eru í nágrenninu, þ.á.m. í Skipholti. Íbúakortið kostar kr. 1.400- á mánuði fyrir rafmagns og vetnis bifreiðar, en kr. 2.800 fyrir aðrar tegundir bifreiða.
Kaupandi greiðir skipulagsgjald þegar það verður lagt á.
Íbúð 406 er rúmgóð 3ja herbergja íbúð í fallegu enduruppgerðu lyftuhúsi í útjaðri miðborgarinnar. Inngangur frá sameign. Forstofa með góðum skápum, tvö svefnherbergi. Stórt bjart alrými með útgengi á 3,8 fm suðursvalir. Baðherbergi með sturtu og þvottaaðstöðu. Harðparket á gólfum og innbyggður ísskápur og uppþvottavél. Sjálf íbúðin er 89,5 fm og geymsla í kjallara 12,8 fm. Einstakar sameiginlegar þaksvalir á 5. hæð. Örstutt göngufæri í matvöruverslun og niður á Hlemm, sem er að umbreytast í grænt og vænt almenningsrými.
Ath. að myndir eru úr íbúð 306, sem er eins að skipulagi.
Sjá á heimasíðu verkefnisins.
Allar nánari upplýsingar veita Þórir Helgi Sigvaldason lögm. og lgf. í síma 823-7170, eða á thorir@haborg.is, Þórunn Pálsdóttir lgf, s. 773-6000, thorunn@haborg.is, Jórunn Skúladóttir lgf., s. 845-8958, jorunn@haborg.is, og Katla Hanna Steed lgf., s. 822-1661 eða katla@haborg.is.
Húsið: Skipholt 1 er glæsileg endurbygging á frábærum stað í hjarta Reykjavíkur á horni Stórholts og Skipholts mót hásuðri. Í reisulegu húsi þar sem Listaháskóli Íslands var starfræktur í áratugi hafa nú verið innréttaðar 34 heillandi íbúðir og tvö atvinnurými. Einstakar sameiginlegar þaksvalir á 5.hæð hússins auka lífsgæði allra íbúa, en þar er sólríkt og magnað útsýni til sjávar og fjalla.
Hönnun: HAF studio kom að hönnun og efnisvali í íbúðirnar. Allar íbúðir afhendast fullbúnar með 8mm harðparketi frá Agli Árnasyni, svo og innbyggðum ísskáp og uppþvottavél frá AEG. Innréttingar koma frá GKS, flísar frá Harðviðarvali, hurðar frá Agli Árnasyni, blöndunartæki í eldhúsi og baðherbergi eru frá Grohe, sturtutæki eru einnig frá Grohe, salerni eru með hæglokandi setum, heimilistæki eru frá AEG (ofn, helluborð, innbyggður ísskápur, vifta með kolafilter og uppþvottavél) Hefðbundið ofnakerfi er á íbúðum með hitastýribúnaði frá Danfoss.
Garðurinn: Á bak við húsið er heillandi og skjólgóður inngarður hannaður af Hermanni Ólafssyni landslagsarkitekt.
Þar kallast fjölbreyttur gróður á við hellur og útskorið malbik sem myndar göngustíg sem liðast eins og lækur eftir garðinum. Pollaljós og garðljós gefa fallega birtu. Innst til hægri er upplyft hellulagt dvalarsvæði.
Staðsetning: Hér er allt sem þarf fyrir nútímalegan miðborgarlífsstíl. Fjöldi veitingastaða og fjölbreytt þjónusta í stuttu göngufæri að ógleymdri útivistarperlunni Klambratúni. Íbúar í Skipholti eiga rétt á íbúakorti og mega þá leggja í gjaldskyldum stæðum á svæði H, auk þess sem ógjaldskyld stæði eru í nágrenninu, þ.á.m. í Skipholti. Íbúakortið kostar kr. 1.400- á mánuði fyrir rafmagns og vetnis bifreiðar, en kr. 2.800 fyrir aðrar tegundir bifreiða.
Kaupandi greiðir skipulagsgjald þegar það verður lagt á.