Upplýsingar
Byggt 2025
101,9 m²
4 herb.
1 baðherb.
3 svefnh.
Útsýni
Sérinngangur
Laus strax
Opið hús: 25. október 2025
kl. 13:00
til 13:30
Opið hús: Háteigur 48, 250 Garður. Eignin verður sýnd laugardaginn 25. október 2025 milli kl. 13:00 og kl. 13:30.
Lýsing
Valný fasteignasala og Valgeir Leifur löggiltur fasteignasali kynna:
Háteigur 48, 250 Garður
Nýtt raðhús á vinsælum stað í Garði. Um er að ræða þriggja svefnherbergja eign á einni hæð með rúmgóðri stofu, opnu eldhúsi og timburverönd. Frágengin lóð og steypt bílastæði. Eignin er tilbúin til afhendingar.
Smelltu hér til að fá söluyfirlit.
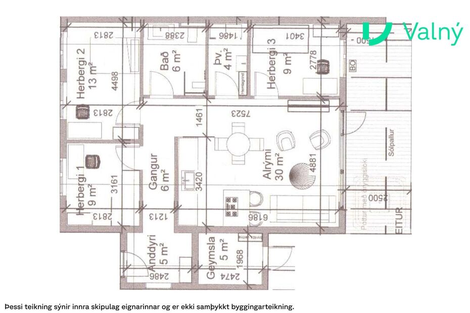
Samkvæmt fasteignaskrá HMS er eignin skráð samtals 101.9 m². Eign merkt 01-04, fastanúmer 253-7131 ásamt öllu því sem eigninni fylgir, þar með talið tilheyrandi lóðar og sameignarréttindi.
Lýsing og skipulag eignar:
Forstofa með flísalögðu gólfi.
Eldhús með fallegri hvítri innréttingu og eyju með innbyggðu spanhelluborði, blástursofni og svörtum blöndunartækjum. Innrétting býður upp á gott skápa- og skúffupláss.
Stofa er rúmgóð, björt og í opinni tengingu við eldhús, harðparket á gólfi og útgengt á rúmgóðan sólpall.
Hjónaherbergi er rúmgott með harðparketi.
Tvö svefnherbergi, bæði með harðparketi á gólfum.
Baðherbergi með flísum í hólf og gólf, hvít/ljósgrá innrétting með melamin-áferð og fallegum svörtum blöndunartækjum, vaskur ofan á borðplötu. Walk-in sturta með þili úr hertu gleri, upphengt salerni.
Þvottahús er flísalagt með tengi fyrir þvottavél.
Geymsla er um 5 m² að stærð með sérinngangi utanfrá.
Verönd er timburpallur um 20 m² með fullfrágengnum skjólveggjum milli íbúða.
Byggingarlýsing:
Húsið er byggt úr vönduðum timbureiningum sem innfluttar eru frá Eistlandi, festar á staðsteyptar undirstöður. Þak er klætt með tvöföldum þakpappa. Gluggar eru úr PVC og hurðir úr timbri. Gólfhiti er innsteyptur í gólfplötu og stýrt með Danfoss hitanemum og stýringum. Öll gluggalaus rými hússins eru með fullfrágengnu loftræstikerfi.
Lóð og aðkoma:
Lóðin er 1320 m² og tyrfð. Innkeyrsla er steypt. Garðurinn er snyrtilegur með fullbúnum timburpalli og skjólveggjum milli íbúða.
Nánari upplýsingar veitir Valgeir Leifur / Löggiltur fasteignasali / 780-2575 / valgeir@valny.is
Valný fasteignasala er staðsett í Reykjanesbæ:
Tjarnargata 2, 230 Keflavík.
Ertu að leita að nýbyggingum? Skoðaðu úrvalið hjá Valný – smelltu hér.
Ertu að hugsa um að selja? Smelltu hér og fáðu frítt verðmat.
Ekki missa af draumaeigninni – fylgstu með okkur á Instagram og Facebook
Lestu reynslusögur frá ánægðum viðskiptavinum okkar.
- Fasteignasalan sem opnar dyrnar að þinni eign.
Valný fasteignasala | www.valny.is | Tjarnargötu 2, 230 Reykjanesbær | Opið alla virka daga frá 9:00-16:00
Háteigur 48, 250 Garður
Nýtt raðhús á vinsælum stað í Garði. Um er að ræða þriggja svefnherbergja eign á einni hæð með rúmgóðri stofu, opnu eldhúsi og timburverönd. Frágengin lóð og steypt bílastæði. Eignin er tilbúin til afhendingar.
Smelltu hér til að fá söluyfirlit.
Samkvæmt fasteignaskrá HMS er eignin skráð samtals 101.9 m². Eign merkt 01-04, fastanúmer 253-7131 ásamt öllu því sem eigninni fylgir, þar með talið tilheyrandi lóðar og sameignarréttindi.
Lýsing og skipulag eignar:
Forstofa með flísalögðu gólfi.
Eldhús með fallegri hvítri innréttingu og eyju með innbyggðu spanhelluborði, blástursofni og svörtum blöndunartækjum. Innrétting býður upp á gott skápa- og skúffupláss.
Stofa er rúmgóð, björt og í opinni tengingu við eldhús, harðparket á gólfi og útgengt á rúmgóðan sólpall.
Hjónaherbergi er rúmgott með harðparketi.
Tvö svefnherbergi, bæði með harðparketi á gólfum.
Baðherbergi með flísum í hólf og gólf, hvít/ljósgrá innrétting með melamin-áferð og fallegum svörtum blöndunartækjum, vaskur ofan á borðplötu. Walk-in sturta með þili úr hertu gleri, upphengt salerni.
Þvottahús er flísalagt með tengi fyrir þvottavél.
Geymsla er um 5 m² að stærð með sérinngangi utanfrá.
Verönd er timburpallur um 20 m² með fullfrágengnum skjólveggjum milli íbúða.
Byggingarlýsing:
Húsið er byggt úr vönduðum timbureiningum sem innfluttar eru frá Eistlandi, festar á staðsteyptar undirstöður. Þak er klætt með tvöföldum þakpappa. Gluggar eru úr PVC og hurðir úr timbri. Gólfhiti er innsteyptur í gólfplötu og stýrt með Danfoss hitanemum og stýringum. Öll gluggalaus rými hússins eru með fullfrágengnu loftræstikerfi.
Lóð og aðkoma:
Lóðin er 1320 m² og tyrfð. Innkeyrsla er steypt. Garðurinn er snyrtilegur með fullbúnum timburpalli og skjólveggjum milli íbúða.
Nánari upplýsingar veitir Valgeir Leifur / Löggiltur fasteignasali / 780-2575 / valgeir@valny.is
Valný fasteignasala er staðsett í Reykjanesbæ:
Tjarnargata 2, 230 Keflavík.
Ertu að leita að nýbyggingum? Skoðaðu úrvalið hjá Valný – smelltu hér.
Ertu að hugsa um að selja? Smelltu hér og fáðu frítt verðmat.
Ekki missa af draumaeigninni – fylgstu með okkur á Instagram og Facebook
Lestu reynslusögur frá ánægðum viðskiptavinum okkar.
- Fasteignasalan sem opnar dyrnar að þinni eign.
Valný fasteignasala | www.valny.is | Tjarnargötu 2, 230 Reykjanesbær | Opið alla virka daga frá 9:00-16:00