Upplýsingar
Byggt 2025
102,5 m²
3 herb.
1 baðherb.
2 svefnh.
Sérinngangur
Lýsing
Borg fasteignasala ehf. og Einar Pálsson löggiltur fasteignasali kynna nýbyggingu að Reynihlíð 13 B, 102,5 fermetra íbúð á jarðhæð. Íbúðin er í 8 íbúða fjölbýli. Allar íbúðir eru með sér inngang. Íbúðir á jarðhæð hafa verandir og sérafnotafleti á lóð. Fallegt útsýni úr íbúðum efri hæðar. Alls eru 16 bílastæði við húsið og þar af er 1 fyrir hreyfihamlaða. Sorpskýli og útigeymsla eru á lóð í sameign allra.
Nánari lýsing á eign:
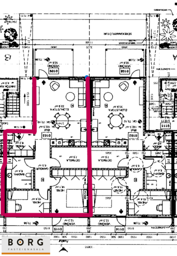
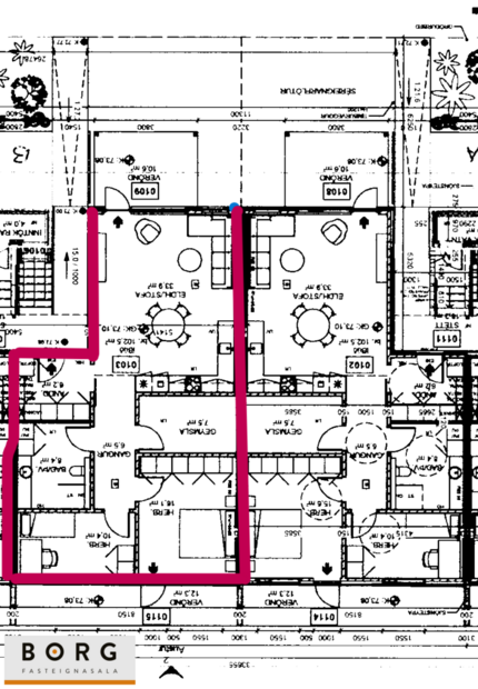
Forstofa er með föstum fataskápum og flísum á gólfi.
Gengið er úr forstofu inn í miðrými eignar, stofu og eldhús þar sem parket er á gólfi og innréttingar með efri- og neðri skápum, rýmið er alls 33,9 fermetrar.
Tvö rúmgóð svefnherbergi (16,1 & 10,4 fm) með parket á gólfi og föstum fataskápum eru í íbúðinni ásamt geymslu (7,5 fm) sem hægt væri að nýta sem 3 svefnherbergið.
Baðherbergi er með flísum á gólfi og vegg að hluta, sturtu, upphengdu klósetti, innréttingu með aðstöðu fyrir þvottavél og þurkkara og handklæðaofn.
Útgengt er úr stofu á verönd vestan við íbúð skráð (10,6 fm) samkvæmt eignaskiptayfirlýsingu og úr hjónaherbergi á aðra verönd til austurs (12,3 fm).
Kaupandi greiðir skipulagsgjald 0,3% af brunabótamati samkvæmt reglugerð 737/1997 þegar það verður innheimt af sýslumanni.
Íbúðin er með föstum fataskápum frá TAK í forstofu og öllum svefnherbergjum. Eldhús og baðherbergi eru einnig með innréttingum frá TAK, Span helluborði, ofni með blæstri (Epoq) og gufugleypir (Airforce). Handklæðaofn er á baðherbergi. Parket er á gólfum en forstofa og baðherbergi eru flísalögð.
Nánari lýsing á eign:
Íbúð 01 0103, fastanúmer 253-3507, Reynhlíð 13 B.
Eignin er þriggja herbergja íbúð á 1. hæð, birt stærð 102,5 fermetrar.
Eigninni fylgir verönd (0109), 10,6 fermetrar og verönd (0115), 12,3 fermetrar sem og sérafnotaflötur, (sjá kafla um lóð og á fylgiskjali, grunnmynd 1. hæðar á eignaskiptayfirlýsingu).
Eigninni tilheyrir hlutdeild í sameign allra samkvæmt kafla eignaskiptayfirlýsingar um sameign.
Birt flatarmál séreignar er 102,5 fermetrar
Hlutfallstala í húsi og lóð er 12,20%
Hlutfallstala í hita er 12,39%
Hlutfall íbúðar í sameiginlegu rafmagni er 1/8
Nánari upplýsingar um eignina er hægt að nálgast hjá Einari Pálssyni, löggiltum fasteignasala á netfangið einar@fastborg.is og í síma 857-8392.
-Eignin er í einkasölu.
-Leiksvæði við lóð hússins.
Skoðunarskylda:
Í lögum um fasteignakaup nr. 40/2002 er kveðið á um ríka skoðunarskyldu kaupenda á fasteignum. Vill Borg fasteignasala því benda væntanlegum kaupendum á að kynna sér vel ástand fasteigna fyrir kauptilboðsgerð og leita til þar til bærra sérfræðinga um nánari skoðun ef þurfa þykir.
Gjöld sem kaupandi þarf að standa straum af vegna kaupanna:
1. Stimpilgjald af kaupsamningi, fyrstu kaup (0,4%), almenn kaup (0,8%), lögaðilar (1,6%) af heildarfasteignamati.
2. Þinglýsingargjald af kaupsamningi, veðskuldabréfi, mögulegu veðleyfi o.fl. - kr. 2.700 af hverju skjali.
3. Lántökugjald lánastofnun.ar - almennt 0,5 - 1,0% af höfuðstól skuldabréfs. Nánari upplýsingar á t.d. heimasíðu lánastofnana.
4. Umsýslugjald til fasteignasölu skv. kauptilboði.
Nánari lýsing á eign:
Forstofa er með föstum fataskápum og flísum á gólfi.
Gengið er úr forstofu inn í miðrými eignar, stofu og eldhús þar sem parket er á gólfi og innréttingar með efri- og neðri skápum, rýmið er alls 33,9 fermetrar.
Tvö rúmgóð svefnherbergi (16,1 & 10,4 fm) með parket á gólfi og föstum fataskápum eru í íbúðinni ásamt geymslu (7,5 fm) sem hægt væri að nýta sem 3 svefnherbergið.
Baðherbergi er með flísum á gólfi og vegg að hluta, sturtu, upphengdu klósetti, innréttingu með aðstöðu fyrir þvottavél og þurkkara og handklæðaofn.
Útgengt er úr stofu á verönd vestan við íbúð skráð (10,6 fm) samkvæmt eignaskiptayfirlýsingu og úr hjónaherbergi á aðra verönd til austurs (12,3 fm).
Kaupandi greiðir skipulagsgjald 0,3% af brunabótamati samkvæmt reglugerð 737/1997 þegar það verður innheimt af sýslumanni.
Íbúðin er með föstum fataskápum frá TAK í forstofu og öllum svefnherbergjum. Eldhús og baðherbergi eru einnig með innréttingum frá TAK, Span helluborði, ofni með blæstri (Epoq) og gufugleypir (Airforce). Handklæðaofn er á baðherbergi. Parket er á gólfum en forstofa og baðherbergi eru flísalögð.
Nánari lýsing á eign:
Íbúð 01 0103, fastanúmer 253-3507, Reynhlíð 13 B.
Eignin er þriggja herbergja íbúð á 1. hæð, birt stærð 102,5 fermetrar.
Eigninni fylgir verönd (0109), 10,6 fermetrar og verönd (0115), 12,3 fermetrar sem og sérafnotaflötur, (sjá kafla um lóð og á fylgiskjali, grunnmynd 1. hæðar á eignaskiptayfirlýsingu).
Eigninni tilheyrir hlutdeild í sameign allra samkvæmt kafla eignaskiptayfirlýsingar um sameign.
Birt flatarmál séreignar er 102,5 fermetrar
Hlutfallstala í húsi og lóð er 12,20%
Hlutfallstala í hita er 12,39%
Hlutfall íbúðar í sameiginlegu rafmagni er 1/8
Nánari upplýsingar um eignina er hægt að nálgast hjá Einari Pálssyni, löggiltum fasteignasala á netfangið einar@fastborg.is og í síma 857-8392.
-Eignin er í einkasölu.
-Leiksvæði við lóð hússins.
Skoðunarskylda:
Í lögum um fasteignakaup nr. 40/2002 er kveðið á um ríka skoðunarskyldu kaupenda á fasteignum. Vill Borg fasteignasala því benda væntanlegum kaupendum á að kynna sér vel ástand fasteigna fyrir kauptilboðsgerð og leita til þar til bærra sérfræðinga um nánari skoðun ef þurfa þykir.
Gjöld sem kaupandi þarf að standa straum af vegna kaupanna:
1. Stimpilgjald af kaupsamningi, fyrstu kaup (0,4%), almenn kaup (0,8%), lögaðilar (1,6%) af heildarfasteignamati.
2. Þinglýsingargjald af kaupsamningi, veðskuldabréfi, mögulegu veðleyfi o.fl. - kr. 2.700 af hverju skjali.
3. Lántökugjald lánastofnun.ar - almennt 0,5 - 1,0% af höfuðstól skuldabréfs. Nánari upplýsingar á t.d. heimasíðu lánastofnana.
4. Umsýslugjald til fasteignasölu skv. kauptilboði.