Löggiltir fasteignasalar innan Félags fasteignasala:
Hannes Steindórsson
Bogi Molby Pétursson
Guðrún Antonsdóttir
Heimir Hallgrímsson
Hrafnkell P. H. Pálmason
Viðar Marinósson
Elías Haraldsson
Kristján Þórir Hauksson
Albert Bjarni Úlfarsson
Ragnar Þorsteinsson
Þórey Ólafsdóttir
Andri Freyr Halldórsson
Upplýsingar
Verðsaga
Byggt 2006
142,5 m²
4 herb.
1 baðherb.
2 svefnh.
Þvottahús
Útsýni
Sameiginl. inngangur
Bílastæði
Lyfta
Laus strax
Opið hús: 25. október 2025
kl. 12:30
til 13:00
Opið hús: Hofakur 5, 210 Garðabær, Íbúð merkt: 03 01 03. Eignin verður sýnd laugardaginn 25. október 2025 milli kl. 12:30 og kl. 13:00.
Lýsing
Hrafn Valdísarson löggiltur fasteignasali kynnir rúmgóða 3-4ra herbergja íbúð á fyrstu hæð með sérafnotareit við Hofakur 5 í Garðabæ.
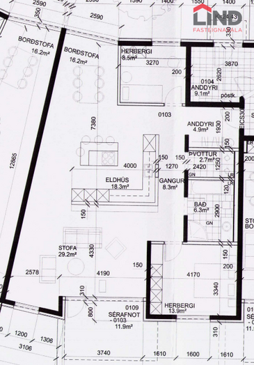
Stærð eignarinnar er alls 142.5 fm og skiptist samkæmt Þjóðskrá Íslands í 122 fm íbúð og 20,5 fm geymslu. Sér bílastæði í upphitaðri bílageymslu fylgir eigninni, ásamt hlut í sameiginlegum rýmum og reiðhjólageymslum.
Eignin skiptist í anddyri, baðherbergi, þvottahús, tvö svefnherbergi, eldhús, borðstofa og rúmgóð stofa.
Allar upplýsingar veitir Hrafn Valdísarson Löggiltur fasteignasali í síma 845-9888 eða hrafn@fastlind.is.
Nánari lýsing
Anddyri: Rúmgóður fataskápur
Baðherbergi: Rúmgott og flísalegt í hólf og gólf. Viðar innrétting með fínu skápaplássi. Baðkar og sturtuklefi.
Eldhús: Viðarinnrétting með góðu borð og skápaplássi. Bökunarofn í vinnuhæð.
Stofa: Björt með stórum gluggum og útgangi á sérofnareit til suðurs.
Hjónaherbergi: Rúmgott með parketi á gólfi og góðum skápum.
Svefnherbergi:: Rúmgot með parketi á gólfi og góðum skápum.
þvottahús: Með tengi fyrir þvottavél og þurrkara.
Geymsla: 20.5 fermetra geymsla á jarðhæð hússins.
Sér bílastæði í upphitaðri bílageymslu fylgir eigninni.
Eignin er 3ja herbergja í dag en gert er ráð fyrir auka herbergi.
Fasteignamat á næsta ári: 107.850.000
Í lögum um fasteignakaup nr. 40/2002 er kveðið á um ríka skoðunarskyldu kaupenda á fasteignum. Vill Lind fasteignasala því skora á væntanlega kaupendur að kynna sér vel ástand fasteigna fyrir kauptilboðsgerð og leita til þar til bærra sérfræðinga um nánari skoðun.
Gjöld sem kaupandi þarf að standa straum af vegna kaupanna:
1. Stimpilgjald af kaupsamningi - 0,8% af heildarfasteignamati, lögaðili greiðir 1,6%
2. Þinglýsingargjald af kaupsamningi, veðskuldabréfi, mögulegu veðleyfi o.fl. - kr. 2.700 af hverju skjali.
3. Lántökugjald lánastofnunar. Nánari upplýsingar á t.d. heimasíðu lánastofnana.
4. Umsýslugjald til fasteignasölu skv. gjaldskrá.
Stærð eignarinnar er alls 142.5 fm og skiptist samkæmt Þjóðskrá Íslands í 122 fm íbúð og 20,5 fm geymslu. Sér bílastæði í upphitaðri bílageymslu fylgir eigninni, ásamt hlut í sameiginlegum rýmum og reiðhjólageymslum.
Eignin skiptist í anddyri, baðherbergi, þvottahús, tvö svefnherbergi, eldhús, borðstofa og rúmgóð stofa.
Allar upplýsingar veitir Hrafn Valdísarson Löggiltur fasteignasali í síma 845-9888 eða hrafn@fastlind.is.
Nánari lýsing
Anddyri: Rúmgóður fataskápur
Baðherbergi: Rúmgott og flísalegt í hólf og gólf. Viðar innrétting með fínu skápaplássi. Baðkar og sturtuklefi.
Eldhús: Viðarinnrétting með góðu borð og skápaplássi. Bökunarofn í vinnuhæð.
Stofa: Björt með stórum gluggum og útgangi á sérofnareit til suðurs.
Hjónaherbergi: Rúmgott með parketi á gólfi og góðum skápum.
Svefnherbergi:: Rúmgot með parketi á gólfi og góðum skápum.
þvottahús: Með tengi fyrir þvottavél og þurrkara.
Geymsla: 20.5 fermetra geymsla á jarðhæð hússins.
Sér bílastæði í upphitaðri bílageymslu fylgir eigninni.
Eignin er 3ja herbergja í dag en gert er ráð fyrir auka herbergi.
Fasteignamat á næsta ári: 107.850.000
Í lögum um fasteignakaup nr. 40/2002 er kveðið á um ríka skoðunarskyldu kaupenda á fasteignum. Vill Lind fasteignasala því skora á væntanlega kaupendur að kynna sér vel ástand fasteigna fyrir kauptilboðsgerð og leita til þar til bærra sérfræðinga um nánari skoðun.
Gjöld sem kaupandi þarf að standa straum af vegna kaupanna:
1. Stimpilgjald af kaupsamningi - 0,8% af heildarfasteignamati, lögaðili greiðir 1,6%
2. Þinglýsingargjald af kaupsamningi, veðskuldabréfi, mögulegu veðleyfi o.fl. - kr. 2.700 af hverju skjali.
3. Lántökugjald lánastofnunar. Nánari upplýsingar á t.d. heimasíðu lánastofnana.
4. Umsýslugjald til fasteignasölu skv. gjaldskrá.
Ár
Fasteignamat
Kaupverð
Stærð
Fermetraverð
7. des. 2011
29.100.000 kr.
29.028.000 kr.
142.5 m²
203.705 kr.
Byggt á upplýsingum úr Þjóðskrá Íslands frá 2006-2025