Upplýsingar
Byggt 2025
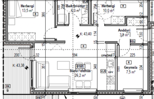
81,7 m²
3 herb.
1 baðherb.
2 svefnh.
Sérinngangur
Lýsing
SÆKJA SÖLUYFIRLIT HÉR
TORG FASTEIGNASALA KYNNIR Í SÖLU: Nýbygging í Dalshverfi III, Reykjanesbæ. Eignin er á jarðhæð og er fullbúin, þriggja til fjögurra herbergja og 81,7 fm. Sér inngangur og sérafnotaflötur til suðvesturs. Geymsla með glugga (7,5 fm) innan íbúðar. Afhending er við kaupsamning. Allar nánari upplýsingar veita Matthildur Sunna Þorláksdóttir löggiltur fasteignasali, í síma 690-4966 eða matthildur@fstorg.is
ATH! myndir eru úr sýningaríbúð og er ætlað að sýna útlit innréttinga.
Um verkefnið:
Um er að ræða fjölbýlishús á tveim hæðum með 8 íbúðum
Húsin eru 20 talsins og liggja á lóðum Dalshverfi III í Innri-Njarðvík sem er í nýju, fjölskylduvænu íbúðahverfi.
Fjölbreyttar og vel skipulagðar, tveggja til fjögurra herbergja íbúðir.
Íbúðirnar afhendast allar fullbúnar að innan sem utan, með gólfefnum og eru allar með sér inngangi.
Svalir og sólpallar eru á móti suðvestri.
Eignin skilast fullbúin skv. skilalýsingu:
Íbúðin skilast fullbúin með gólfefnum, parket á stofu, eldhúsi og herbergjum og flísar á baðherbergi.
Innréttingar í eldhúsi frá HTH eða sambærilegum gæðum
Tæki í eldhúsi, helluborð, bakaraofn og háfur frá AEG eða sambærilegt
Gólf baðherbergis og hluti veggja á baðherbergi eru flísalagðir á 2 eða 3 veggi, upp að 2,1m. Öll salerni eru upphengd og innbyggð í vegg. Á baði er handklæðaofn. Sturta er í öllum íbúðum og sturtubotn flísalagður.
Húsið er byggt úr forsteyptum einingum.
Þakplata er varin með tveim lögum af viðurkenndum heilbræddum þakpappa, einangrað með XPS einangrun , jarðvegsdúk og lagi af harpaðri þakmöl með kornastærð 60-80mm.
Gluggar eru ál/trégluggar.
Veggir að innan eru spartlaðir, grunnaðir og málaðir í ljósum lit.
Fyrir nánari lýsingu, sjá skilalýsingu byggingaraðila.
Kaupandi greiðir skipulagsgjald af eigninni sem nemur 0,3% af brunabótamati og leggst á eftir að endanlegt brunabótamat hefur fengist á eignina.
Forsendur söluyfirlits:
Söluyfirlit er samið af fasteignasala í samræmi við ákvæði laga nr. 70/2015. Þær upplýsingar sem fram koma í söluyfirliti þessu eru sóttar í opinberar skrár, til seljanda sjálfs og eftir atvikum til húsfélags. Seljandi veitir upplýsingar um eign í samræmi við upplýsingaskyldu laga um fasteignakaup nr. 40/2002. Fasteignasali sannreynir að þær upplýsingar séu réttar með sjónskoðun á eigninni. Fasteignasali getur ekki fullyrt um ástand og eiginleika þeirra hluta fasteigna sem ekki eru aðgengilegir og sjást ekki berum augum, t.d. lagnir, dren, skólp og þak.
Gjöld sem kaupandi þarf að standa straum af vegna kaupanna:
Stimpilgjald af kaupsamningi sem er hlutfall af fasteignamati. Stimpilgjald er 0,8% fyrir einstaklinga (0,4% við fyrstu kaup m.v. að lágmarki 50% eignarhlut) og 1,6% fyrir lögaðila.Þinglýsingargjald hvers skjals er kr. 2.700,- .Lántökugjald lánastofnunar skv. gjaldskrá viðkomandi lánveitanda. Umsýsluþóknun fasteignasölu skv. gjaldskrá. Ef um nýbyggingu er að ræða greiðir kaupandi skipulagsgjald, 0,3% af brunabótamati, þegar það er lagt á.
TORG fasteignasala bendir fasteignakaupendum á ríka skoðunarskyldu kaupenda sem kveðið er á í lögum um fasteignakaup nr.40/2002. Skorað er á kaupendur að kynna sér vandlega ástand fasteigna og nýta til þess aðstoð sérfræðinga. Sömuleiðis er bent á upplýsingaskyldu seljanda samanber 26.gr. Laga nr.40/2002 um fasteignakaup og 25.gr. laga nr.26/1994 um fjöleignarhús. Seljanda er bent á að kynna sér tilvitnaðar lagagreinar.
TORG FASTEIGNASALA KYNNIR Í SÖLU: Nýbygging í Dalshverfi III, Reykjanesbæ. Eignin er á jarðhæð og er fullbúin, þriggja til fjögurra herbergja og 81,7 fm. Sér inngangur og sérafnotaflötur til suðvesturs. Geymsla með glugga (7,5 fm) innan íbúðar. Afhending er við kaupsamning. Allar nánari upplýsingar veita Matthildur Sunna Þorláksdóttir löggiltur fasteignasali, í síma 690-4966 eða matthildur@fstorg.is
ATH! myndir eru úr sýningaríbúð og er ætlað að sýna útlit innréttinga.
Um verkefnið:
Um er að ræða fjölbýlishús á tveim hæðum með 8 íbúðum
Húsin eru 20 talsins og liggja á lóðum Dalshverfi III í Innri-Njarðvík sem er í nýju, fjölskylduvænu íbúðahverfi.
Fjölbreyttar og vel skipulagðar, tveggja til fjögurra herbergja íbúðir.
Íbúðirnar afhendast allar fullbúnar að innan sem utan, með gólfefnum og eru allar með sér inngangi.
Svalir og sólpallar eru á móti suðvestri.
Eignin skilast fullbúin skv. skilalýsingu:
Íbúðin skilast fullbúin með gólfefnum, parket á stofu, eldhúsi og herbergjum og flísar á baðherbergi.
Innréttingar í eldhúsi frá HTH eða sambærilegum gæðum
Tæki í eldhúsi, helluborð, bakaraofn og háfur frá AEG eða sambærilegt
Gólf baðherbergis og hluti veggja á baðherbergi eru flísalagðir á 2 eða 3 veggi, upp að 2,1m. Öll salerni eru upphengd og innbyggð í vegg. Á baði er handklæðaofn. Sturta er í öllum íbúðum og sturtubotn flísalagður.
Húsið er byggt úr forsteyptum einingum.
Þakplata er varin með tveim lögum af viðurkenndum heilbræddum þakpappa, einangrað með XPS einangrun , jarðvegsdúk og lagi af harpaðri þakmöl með kornastærð 60-80mm.
Gluggar eru ál/trégluggar.
Veggir að innan eru spartlaðir, grunnaðir og málaðir í ljósum lit.
Fyrir nánari lýsingu, sjá skilalýsingu byggingaraðila.
Kaupandi greiðir skipulagsgjald af eigninni sem nemur 0,3% af brunabótamati og leggst á eftir að endanlegt brunabótamat hefur fengist á eignina.
Forsendur söluyfirlits:
Söluyfirlit er samið af fasteignasala í samræmi við ákvæði laga nr. 70/2015. Þær upplýsingar sem fram koma í söluyfirliti þessu eru sóttar í opinberar skrár, til seljanda sjálfs og eftir atvikum til húsfélags. Seljandi veitir upplýsingar um eign í samræmi við upplýsingaskyldu laga um fasteignakaup nr. 40/2002. Fasteignasali sannreynir að þær upplýsingar séu réttar með sjónskoðun á eigninni. Fasteignasali getur ekki fullyrt um ástand og eiginleika þeirra hluta fasteigna sem ekki eru aðgengilegir og sjást ekki berum augum, t.d. lagnir, dren, skólp og þak.
Gjöld sem kaupandi þarf að standa straum af vegna kaupanna:
Stimpilgjald af kaupsamningi sem er hlutfall af fasteignamati. Stimpilgjald er 0,8% fyrir einstaklinga (0,4% við fyrstu kaup m.v. að lágmarki 50% eignarhlut) og 1,6% fyrir lögaðila.Þinglýsingargjald hvers skjals er kr. 2.700,- .Lántökugjald lánastofnunar skv. gjaldskrá viðkomandi lánveitanda. Umsýsluþóknun fasteignasölu skv. gjaldskrá. Ef um nýbyggingu er að ræða greiðir kaupandi skipulagsgjald, 0,3% af brunabótamati, þegar það er lagt á.
TORG fasteignasala bendir fasteignakaupendum á ríka skoðunarskyldu kaupenda sem kveðið er á í lögum um fasteignakaup nr.40/2002. Skorað er á kaupendur að kynna sér vandlega ástand fasteigna og nýta til þess aðstoð sérfræðinga. Sömuleiðis er bent á upplýsingaskyldu seljanda samanber 26.gr. Laga nr.40/2002 um fasteignakaup og 25.gr. laga nr.26/1994 um fjöleignarhús. Seljanda er bent á að kynna sér tilvitnaðar lagagreinar.