Löggiltir fasteignasalar innan Félags fasteignasala:
Aðalheiður Karlsdóttir
Upplýsingar
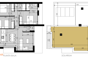
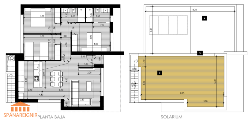
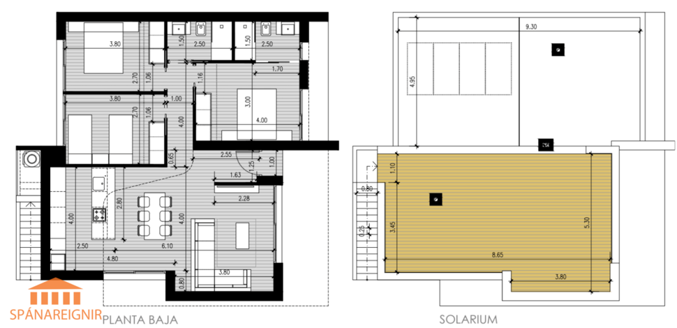
167 m²
4 herb.
2 baðherb.
3 svefnh.
Sérinngangur
Lýsing
SPÁNAREIGNIR KYNNIR:
*GLÆSILEG EINBÝLISHÚS Á EINNI HÆÐ Á FRÁBÆRUM STAÐ* -*STUTT Í VERSLANIR OG ÞJÓNUSTU*
ÞÍN DRAUMAEIGN Á SPÁNI, ÞAR SEM SÓLIN SKÍN Á ALLA
Falleg, björt og vel hönnuð einbýlishús á einni hæð með lokuðum einkagarði og einkasundlaug í DONA PEPA , um 30 mín akstur suður af Alicante. Þrjú svefnherbergi, tvö baðherbergi, góð stofa, eldhús opið við borðstofu. Flott hönnun. Góð verönd framan við húsið. Lokaður einkagarður með einkasundlaug. Góðar þaksvalir með glæsilegu rými.
Frábær staðsetning í göngufæri við verslanir og veitingastaði og hinn vinsæla "Laugaveg" í Ciudad Quesada.
Allar upplýsingar gefa Aðalheiður Karlsdóttir, löggiltur fasteignasali. GSM 00354 893 2495. adalheidur@spanareignir.is,
Berta Hawkins, löggiltur fasteignasali, berta@spanareignir.is GSM 0034 615 112 869.
Nánari lýsing:
Komið er inn í hol sem tengir saman rými hússins. Stofa, borðstofa og opið eldhús við borðstofu. Gott útgengi út á verönd og garðinn. Eldhúsið er fallega innréttað og tengist borðstofunni á skemmtilegan máta. Þvottahús.
Þrjú svefnherbergi og tvö baðherbergi.
Þakverönd yfir öllu húsinu.
Frábær sér garður með einkasundlaug, góðri grillaðstöðu og sólarverönd.
Bílastæði inni á lokaðri lóð.
Góðir golfvellir eru í næsta nágrenni, t.d. La Marquesa, La Finca, glæsilegan PGA golfvöll. Einnig eru fleiri góðir golfvellir í næsta nágrenni, t.d. Las Ramblas, Campoamor, Villamartin og Las Colinas.
Ca. 10 mín akstur er niður á ströndina í Guardamar og ca. 15 mín. akstur í nýju verslunarmiðstöðina La Zenia Boulevard.
Hér er um að ræða glæsilega hannaðar lúxuseignir á frábæru verði og vel staðsettar á hinu vinsæla Dona Pepa/Ciudad Quesada svæði. Einstakt tækifæri fyrir fólk sem vill njóta lífsins.
Verð miðað við gengi 1Evra=143ISK
496.000 evrur (ISK. 70.900.000) + 10% skattur og ca. 3% kostn. við kaupin.
Húsin eru til afhendingar í mars/apríl 2026.
Húsin eru afhent fullbúin fallegum húsgögnum og heimilistækjum sem eru innifalin í verðinu þannig að ekkert er annað en að flytja inn og byrja að njóta frá fyrsta degi.
Húsið er 107 fm
Verönd 10 fm
Þakverönd 50 fm
Samtals 167 fm.
SKOÐUNARFERÐIR:
Við aðstoðum kaupendur við að skipuleggja skoðunarferðir og tökum þátt í kostnaði vegna þeirra, ef af viðskiptum verður.
Bein kaup frá traustum og öruggum byggingaraðila með áratuga reynslu. Hafið samband og bókið einkaviðtal.
Mögulegt er að fjármagna hluta kaupverðs með láni frá spænskum banka.
Við höfum selt fasteignir á Spáni frá 2001. Tryggir þekkingu, öryggi og reynslu.
Sjá nánar um fasteignakaup á Spáni á heimasíðunni okkar: www.spanareignir.is
Kostnaður við kaupin:
10% IVA (spænskur söluskattur) af kaupverði eignarinnar. Auk þess má gera ráð fyrir ca. 3% kostnaði vegna stimpilgjalda og annars kostnaðar við kaupin, þ.e. samtals getur kostnaður vegna kaupa á fasteign á Spáni því farið upp í ca. 13%.
Eiginleikar: sér garður, einkasundlaug, bílastæði, air con, ný eign,
Svæði: Costa Blanca, Ciudad Quesada, Dona Pepa,
*GLÆSILEG EINBÝLISHÚS Á EINNI HÆÐ Á FRÁBÆRUM STAÐ* -*STUTT Í VERSLANIR OG ÞJÓNUSTU*
ÞÍN DRAUMAEIGN Á SPÁNI, ÞAR SEM SÓLIN SKÍN Á ALLA
Falleg, björt og vel hönnuð einbýlishús á einni hæð með lokuðum einkagarði og einkasundlaug í DONA PEPA , um 30 mín akstur suður af Alicante. Þrjú svefnherbergi, tvö baðherbergi, góð stofa, eldhús opið við borðstofu. Flott hönnun. Góð verönd framan við húsið. Lokaður einkagarður með einkasundlaug. Góðar þaksvalir með glæsilegu rými.
Frábær staðsetning í göngufæri við verslanir og veitingastaði og hinn vinsæla "Laugaveg" í Ciudad Quesada.
Allar upplýsingar gefa Aðalheiður Karlsdóttir, löggiltur fasteignasali. GSM 00354 893 2495. adalheidur@spanareignir.is,
Berta Hawkins, löggiltur fasteignasali, berta@spanareignir.is GSM 0034 615 112 869.
Nánari lýsing:
Komið er inn í hol sem tengir saman rými hússins. Stofa, borðstofa og opið eldhús við borðstofu. Gott útgengi út á verönd og garðinn. Eldhúsið er fallega innréttað og tengist borðstofunni á skemmtilegan máta. Þvottahús.
Þrjú svefnherbergi og tvö baðherbergi.
Þakverönd yfir öllu húsinu.
Frábær sér garður með einkasundlaug, góðri grillaðstöðu og sólarverönd.
Bílastæði inni á lokaðri lóð.
Góðir golfvellir eru í næsta nágrenni, t.d. La Marquesa, La Finca, glæsilegan PGA golfvöll. Einnig eru fleiri góðir golfvellir í næsta nágrenni, t.d. Las Ramblas, Campoamor, Villamartin og Las Colinas.
Ca. 10 mín akstur er niður á ströndina í Guardamar og ca. 15 mín. akstur í nýju verslunarmiðstöðina La Zenia Boulevard.
Hér er um að ræða glæsilega hannaðar lúxuseignir á frábæru verði og vel staðsettar á hinu vinsæla Dona Pepa/Ciudad Quesada svæði. Einstakt tækifæri fyrir fólk sem vill njóta lífsins.
Verð miðað við gengi 1Evra=143ISK
496.000 evrur (ISK. 70.900.000) + 10% skattur og ca. 3% kostn. við kaupin.
Húsin eru til afhendingar í mars/apríl 2026.
Húsin eru afhent fullbúin fallegum húsgögnum og heimilistækjum sem eru innifalin í verðinu þannig að ekkert er annað en að flytja inn og byrja að njóta frá fyrsta degi.
Húsið er 107 fm
Verönd 10 fm
Þakverönd 50 fm
Samtals 167 fm.
SKOÐUNARFERÐIR:
Við aðstoðum kaupendur við að skipuleggja skoðunarferðir og tökum þátt í kostnaði vegna þeirra, ef af viðskiptum verður.
Bein kaup frá traustum og öruggum byggingaraðila með áratuga reynslu. Hafið samband og bókið einkaviðtal.
Mögulegt er að fjármagna hluta kaupverðs með láni frá spænskum banka.
Við höfum selt fasteignir á Spáni frá 2001. Tryggir þekkingu, öryggi og reynslu.
Sjá nánar um fasteignakaup á Spáni á heimasíðunni okkar: www.spanareignir.is
Kostnaður við kaupin:
10% IVA (spænskur söluskattur) af kaupverði eignarinnar. Auk þess má gera ráð fyrir ca. 3% kostnaði vegna stimpilgjalda og annars kostnaðar við kaupin, þ.e. samtals getur kostnaður vegna kaupa á fasteign á Spáni því farið upp í ca. 13%.
Eiginleikar: sér garður, einkasundlaug, bílastæði, air con, ný eign,
Svæði: Costa Blanca, Ciudad Quesada, Dona Pepa,