Upplýsingar
Byggt 2025
114,7 m²
4 herb.
2 baðherb.
3 svefnh.
Sameiginl. inngangur
Bílastæði
Lyfta
Lýsing
ÁRBORGIR FASTEIGNASALA S 482 4800 kynnir í sölu:
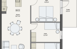
Glæsileg 114.7 m2 íbúð merkt 413 á efstu hæð í nýju fjölbýli miðsvæðis á Selfossi.
Íbúðin skiptist í forstofu, baðherbergi/þvottahús, stofu og eldhús í opnu rými, 3 svefnherbergi og baðherbergi inn af hjónaherbergi. Tvennar svalir eru í íbúðinni og er útgengt á aðrar þeirra úr stofu og hinar úr hjónaherbergi. Íbúðinni fylgir 18.8 m2 geymsla og sérmerkt bílastæði í kjallara.
Tryggvagata 10-12 samastendur af fjórum svans-vottuðum fjöleignarhúsum með 78 íbúðum ásamt samtengdum bílakjallara.
Húsið er staðsteypt, einangrað og klætt að utan með swisspearl steinklæðningu í bland við standandi bambusklæðningu. Þök eru klædd með soðnum tjörupappa og eru gluggar og hurðir ál-tré.
Íbúðirnar eru í stærðum frá 66.8 m2 og upp í 165.9 m2. Verð eru frá 59.900.000,-
Íbúðunum verður skilað fullbúnum án gólfefna. Vandaðar og sérsmíðaðar innréttingar frá Selós eru í öllum íbúðum og eru heimilstæki flest frá AEG. Loftskiptikerfi er í öllum íbúðum.
Í bílakjallara eru samtals 79 bílastæði ásamt vagna- og hjólageymslu. Geymslur fyrir allar íbúir eru staðsettar í kjallara.
Heildarstærð lóðar er 4798,5 m2 og er sameginleg og mjög snyrtileg. Lóðin verður hellulögð og þökulögð. Við íbúðir fyrstu hæðar verða helulagðar sérafnotareitir.
Íbúðirnar eru á góðum stað fyrir fólk sem vill vera í nánd við miðbæ Selfoss þar sem örstutt er í sundlaug, líkamsrækt, verslanir og aðra þjónustu.
Skilalýsingu vegna íbúðarinnar er hægt að nálgast á Tryggvagata10.is
Nánari upplýsingar og bókið skoðun á skrifstofu Árborga.
arborgir@arborgir.is eða í síma 482-4800.
Sýnum samdægurs!
Gjöld sem kaupandi þarf að standa straum af vegna kaupanna:
1. Stimpilgjald af kaupsamningi sem er: 0,8% af fasteignamati fyrir einstaklinga. 0,4% fyrir fyrstu kaupendur og 1,6% fyrir lögaðila.
2. Þinglýsingargjald af kaupsamningi, veðskuldabréfum, veðleyfum o.fl. kr. 2.700,- hvert skjal.
3. Lántökugjald lánastofnunar. Skv. gjaldskrá viðkomandi lánveitanda.
4. Umsýslugjald kaupanda skv. gjaldskrá.
5. Þegar um nýbyggingu er að ræða greiðir kaupandi skipulagsgjald, 0,3% af brunabótamáti, þegar það er lagt á.
Glæsileg 114.7 m2 íbúð merkt 413 á efstu hæð í nýju fjölbýli miðsvæðis á Selfossi.
Íbúðin skiptist í forstofu, baðherbergi/þvottahús, stofu og eldhús í opnu rými, 3 svefnherbergi og baðherbergi inn af hjónaherbergi. Tvennar svalir eru í íbúðinni og er útgengt á aðrar þeirra úr stofu og hinar úr hjónaherbergi. Íbúðinni fylgir 18.8 m2 geymsla og sérmerkt bílastæði í kjallara.
Tryggvagata 10-12 samastendur af fjórum svans-vottuðum fjöleignarhúsum með 78 íbúðum ásamt samtengdum bílakjallara.
Húsið er staðsteypt, einangrað og klætt að utan með swisspearl steinklæðningu í bland við standandi bambusklæðningu. Þök eru klædd með soðnum tjörupappa og eru gluggar og hurðir ál-tré.
Íbúðirnar eru í stærðum frá 66.8 m2 og upp í 165.9 m2. Verð eru frá 59.900.000,-
Íbúðunum verður skilað fullbúnum án gólfefna. Vandaðar og sérsmíðaðar innréttingar frá Selós eru í öllum íbúðum og eru heimilstæki flest frá AEG. Loftskiptikerfi er í öllum íbúðum.
Í bílakjallara eru samtals 79 bílastæði ásamt vagna- og hjólageymslu. Geymslur fyrir allar íbúir eru staðsettar í kjallara.
Heildarstærð lóðar er 4798,5 m2 og er sameginleg og mjög snyrtileg. Lóðin verður hellulögð og þökulögð. Við íbúðir fyrstu hæðar verða helulagðar sérafnotareitir.
Íbúðirnar eru á góðum stað fyrir fólk sem vill vera í nánd við miðbæ Selfoss þar sem örstutt er í sundlaug, líkamsrækt, verslanir og aðra þjónustu.
Skilalýsingu vegna íbúðarinnar er hægt að nálgast á Tryggvagata10.is
Nánari upplýsingar og bókið skoðun á skrifstofu Árborga.
arborgir@arborgir.is eða í síma 482-4800.
Sýnum samdægurs!
Gjöld sem kaupandi þarf að standa straum af vegna kaupanna:
1. Stimpilgjald af kaupsamningi sem er: 0,8% af fasteignamati fyrir einstaklinga. 0,4% fyrir fyrstu kaupendur og 1,6% fyrir lögaðila.
2. Þinglýsingargjald af kaupsamningi, veðskuldabréfum, veðleyfum o.fl. kr. 2.700,- hvert skjal.
3. Lántökugjald lánastofnunar. Skv. gjaldskrá viðkomandi lánveitanda.
4. Umsýslugjald kaupanda skv. gjaldskrá.
5. Þegar um nýbyggingu er að ræða greiðir kaupandi skipulagsgjald, 0,3% af brunabótamáti, þegar það er lagt á.