Upplýsingar
Byggt 2023
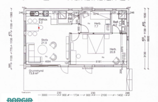
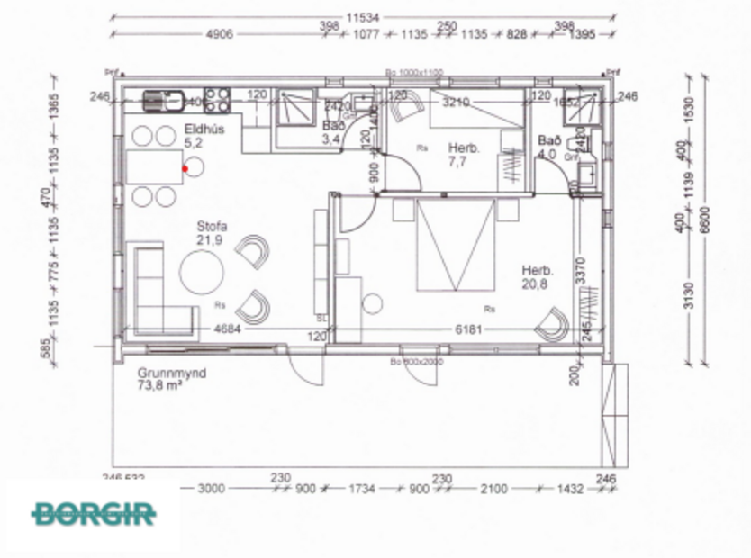
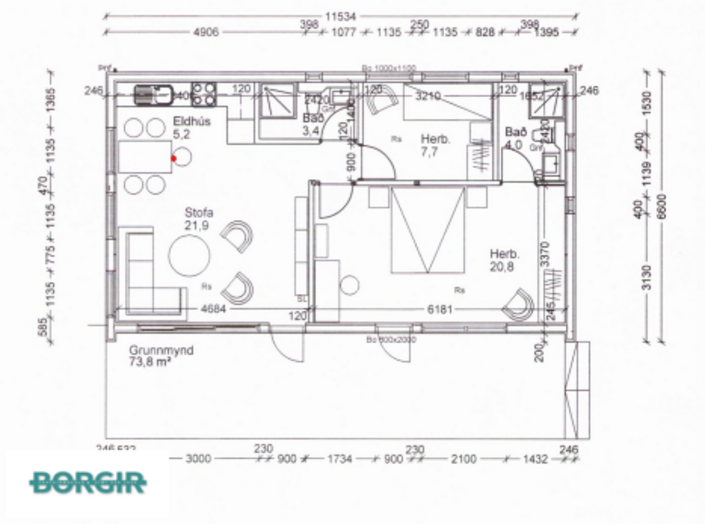
73,8 m²
3 herb.
2 baðherb.
2 svefnh.
Lýsing
Borgir fasteignasala kynnir eignina Hofsvík 2, 805 Selfoss, nánar tiltekið eign merkt 01-01, fastanúmer 234-4315 ásamt öllu því sem eigninni fylgir, þar með talið tilheyrandi lóðar og sameignarréttindi.
Um er að ræða hús sem er framleidd af Citic Construction sem er einn af stæðstu framleiðendum á húsum í heimi og er stálgrindar einingahús með tveimur svefnherbergjum, tveimur baðherbergjum, eldhúsi/borðstofu/stofu, mikilli lofthæð og gólfsíðum gluggum og fallegu útsýni. Hiti í gólfi frá Danfoss. Halogen ljós í loftinu. Pallur með skjólvegg. Öryggisgler er í öllu húsinu. Húsið er sett saman af Gunnarsfell Verktakar. Rafmagns heitur pottur og sauna.
Eignin Hofsvík 2 er skráð sem sumarhús í Grímsnesi nánar tiltekið í Hraunborgum í landi Sjómannadagsráðs um 45 mín akstur frá Reykjavík. Birt stærð 73.8 fm.
Nánari upplýsingar veita:
Jóhanna M Jóhannsdóttir Löggiltur fasteignasali, johanna@borgir.is sími 8200788
Bjarklind Þór Löggiltur fasteignasali, bjarklind@borgir.is sími 6905123
Nánari lýsing:
Inngangur: Gengið beint inní stofu/borðstofu með plast parketi á gólfi með gólfsíðum gluggum sem snúa til suðurs, mikilli lofthæð og fallegu útsýni.
Eldhús/borðstofa: Innrétting með bakarofni og helluborð af gerðinni Vatti, örbylgjuofn, vifta og vaskur. Plastparket á gólfi.
Hjónaherbergi: Með plastparketi, fataskáp, gólfsíðum gluggum og hurð út á pall, innaf herbergi er baðherbergi með sturtuklefa, baðinnréttingu með vask og upphengt salerni. Físar á gólfi og veggjum.
Herbergi: með plastparketi.
Baðherbergi: Baðinnrétting, Salernið er upphengt. Gólfið er flísalagt og veggir upp í loft, sturtuklefi.
Skriðkjallari: Undir öllu húsinu
Annað:
Lóðin er fallega staðsett með fallegu útsýni.
Lóðarleigusamningur í gildi til 31.ágúst 2067.
Öryggishlið inn á svæði og öflugt sumarhúsafélag.
Hitaveita
Rotþró í jörðu. Vegur og bílastæði.
Lóðarleiga er um 134.000.kr á ári
Sumarhúsafélag er um 20.000.kr á ári
Stutt er í allskyns afþreyingu, útivstarsvæði og þjónustu. Á svæðinu eru t.d. sundlaug með heitum potti og eimbaði, hjólhýsastæði, æfingagolfvöllur, minigolf, sparkvöllur, leiksvæði fyrir börn og verslun sem starfrækt er að sumarlagi. Stærri golfvöllur, verslanir og margt fleira er svo í nokkura mínútna akstursfjarlægð
Um er að ræða hús sem er framleidd af Citic Construction sem er einn af stæðstu framleiðendum á húsum í heimi og er stálgrindar einingahús með tveimur svefnherbergjum, tveimur baðherbergjum, eldhúsi/borðstofu/stofu, mikilli lofthæð og gólfsíðum gluggum og fallegu útsýni. Hiti í gólfi frá Danfoss. Halogen ljós í loftinu. Pallur með skjólvegg. Öryggisgler er í öllu húsinu. Húsið er sett saman af Gunnarsfell Verktakar. Rafmagns heitur pottur og sauna.
Eignin Hofsvík 2 er skráð sem sumarhús í Grímsnesi nánar tiltekið í Hraunborgum í landi Sjómannadagsráðs um 45 mín akstur frá Reykjavík. Birt stærð 73.8 fm.
Nánari upplýsingar veita:
Jóhanna M Jóhannsdóttir Löggiltur fasteignasali, johanna@borgir.is sími 8200788
Bjarklind Þór Löggiltur fasteignasali, bjarklind@borgir.is sími 6905123
Nánari lýsing:
Inngangur: Gengið beint inní stofu/borðstofu með plast parketi á gólfi með gólfsíðum gluggum sem snúa til suðurs, mikilli lofthæð og fallegu útsýni.
Eldhús/borðstofa: Innrétting með bakarofni og helluborð af gerðinni Vatti, örbylgjuofn, vifta og vaskur. Plastparket á gólfi.
Hjónaherbergi: Með plastparketi, fataskáp, gólfsíðum gluggum og hurð út á pall, innaf herbergi er baðherbergi með sturtuklefa, baðinnréttingu með vask og upphengt salerni. Físar á gólfi og veggjum.
Herbergi: með plastparketi.
Baðherbergi: Baðinnrétting, Salernið er upphengt. Gólfið er flísalagt og veggir upp í loft, sturtuklefi.
Skriðkjallari: Undir öllu húsinu
Annað:
Lóðin er fallega staðsett með fallegu útsýni.
Lóðarleigusamningur í gildi til 31.ágúst 2067.
Öryggishlið inn á svæði og öflugt sumarhúsafélag.
Hitaveita
Rotþró í jörðu. Vegur og bílastæði.
Lóðarleiga er um 134.000.kr á ári
Sumarhúsafélag er um 20.000.kr á ári
Stutt er í allskyns afþreyingu, útivstarsvæði og þjónustu. Á svæðinu eru t.d. sundlaug með heitum potti og eimbaði, hjólhýsastæði, æfingagolfvöllur, minigolf, sparkvöllur, leiksvæði fyrir börn og verslun sem starfrækt er að sumarlagi. Stærri golfvöllur, verslanir og margt fleira er svo í nokkura mínútna akstursfjarlægð
Í lögum um fasteignakaup nr. 40/2002 er kveðið á um ríka skoðunarskyldu kaupenda á fasteignum.
Vill Borgir því skora væntanlega kaupendur á að kynna sér vel ástand fasteigna fyrir kauptilboðsgerð og leita til þar til bæra sérfræðinga um nánari skoðun.
Gjöld sem kaupandi þarf að standa straum af vegna kaupanna:
1. Stimpilgjald af kaupsamningi - 0,8%(einstaklingar) 1.6% (lögaðilar) af heildarfasteignamati.
2. Þinglýsingargjald af kaupsamningi, veðskuldabréfi, mögulegu veðleyfi o.fl. - kr. 2.700 af hverju skjali.
3. Lántökugjald lánastofnunar - almennt 45-75 þús.kr. Nánari upplýsingar á heimasíðu lánastofnana.
4. Umsýslugjald til fasteignasölu kr. 70.000 mvsk.