Upplýsingar
Verðsaga
122,4 m²
4 herb.
1 baðherb.
3 svefnh.
Þvottahús
Lyfta
Lýsing
BÓKIÐ SKOÐUN - SÝNUM SAMDÆGURS - Einar s 888-7979, Hlynur s. 698-2603, Glódís s. 659-0510, Helgi s. 893-2233, Vala s. 791-7500
Hraunhamar kynnir: Glæsilega nýbyggingu á frábærum stað í Vallarhverfinu í Hafnarfirði, einstakt útsýni yfir hraunbreiðuna og til fjalla.
Íbúðirnar afhendast fullbúnar með gólfefnum.
______________________
2ja, 3ja og 4ra herbergja
Stærðir frá 67,9 fm til 123,1 fm.
Verð er frá 58 millj.
______________________
ATH: Myndir eru af sýningaríbúð og getur skipulag íbúðar verið annað. Efnisval á innréttingum og gólfefnum er eins í öllum íbúðum.
Tilbúnar til afhendingar. Sjá skilalýsingu hér.
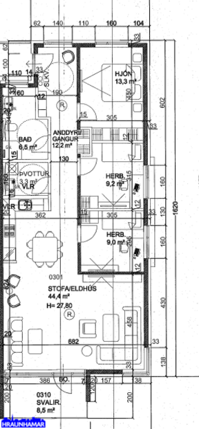
Íbúð 301 er endaíbúð, 122,4 fm og þar af er 7,8 fm geymsla merkt 0109 ásamt 8,5 fm svölum. Sérinngangur af svölum.
Nánari lýsing skv. teikningu:
Forstofa með fataskápum.
Gott opið rými þar sem eldhús og stofa eru í björtu og fallegu alrými.
Eldhús með smekklegri innréttingu frá Axis og vönduðum eldunartækjum AEG.
Stofa/borðstofa er björt, þaðan er útgengt á svalir.
Hjónaherbergi er með fataskápum.
Tvö svefnherbergi með fataskápum.
Flísalagt baðherbergi með innréttingu, upphengdu salerni og sturtu.
Sér þvottahús innan íbúðar.
Geymsla í sameign er 7,8 fm.
Kaupandi borgar skipulagsgjald þegar þess verður krafist sem er 0,3 % af væntu brunabótamati eignarinnar.
Suðurhella 12 er hluti af klasabyggingu þar sem skemmtilegur garður mun tengja húsin saman. Í stigaganginum eru 27 íbúðir.
Byggingaraðili hússins er ÞBF ehf. sem er reynslumikið og traust byggingarfélag.
Bókið skoðun hjá sölumönnum Hraunhamars:
Einar Örn Ágústsson, löggiltur fasteignasali, s. 888-7979, einar@hraunhamar.is
Hlynur Halldórsson, löggiltur fasteignasali, s. 698-2603, hlynur@hraunhamar.is
Valgerður Gissurardóttir löggiltur fasteignasali s.791-7500, vala@hraunhamar.is
Glódís Helgadóttir, löggiltur fasteignasali, s. 659-0510, glodis@hraunhamar.is
Helgi Jón Harðarson, sölust. s. 893-2233, helgi@hraunhamar.is
Skoðunarskylda:
Í lögum um fasteignakaup nr. 40/2002 er kveðið á um ríka skoðunarskyldu kaupenda á fasteignum. Hraunhamar fasteignasala vill benda væntanlegum kaupendum á að kynna sér vel ástand fasteigna fyrir kauptilboðsgerð og ef þurfa þykir að leita til sérfræðinga fyrir nánari ástandsskoðun.
Gjöld sem kaupandi þarf að standa straum af vegna kaupanna:
1. Stimpilgjald af kaupsamningi, fyrstu kaup (0,4%), almenn kaup (0,8%), lögaðilar (1,6%) af heildarfasteignamati.
2. Þinglýsingargjald af kaupsamningi, veðskuldabréfi, mögulegu veðleyfi o.fl. – kr. 2.700 kr. af hverju skjali.
3. Lántökugjald lánastofnunar er skv. verðskrá viðkomandi lánastofnunar.
4. Umsýslugjald til fasteignasölu skv. þjónustusamningi
Hraunhamar er elsta fasteignasala Hafnarfjarðar, stofnuð 1983.
Hraunhamar, í farabroddi í rúm 40 ár ! – Hraunhamar.is
Hraunhamar kynnir: Glæsilega nýbyggingu á frábærum stað í Vallarhverfinu í Hafnarfirði, einstakt útsýni yfir hraunbreiðuna og til fjalla.
Íbúðirnar afhendast fullbúnar með gólfefnum.
______________________
2ja, 3ja og 4ra herbergja
Stærðir frá 67,9 fm til 123,1 fm.
Verð er frá 58 millj.
______________________
ATH: Myndir eru af sýningaríbúð og getur skipulag íbúðar verið annað. Efnisval á innréttingum og gólfefnum er eins í öllum íbúðum.
Tilbúnar til afhendingar. Sjá skilalýsingu hér.
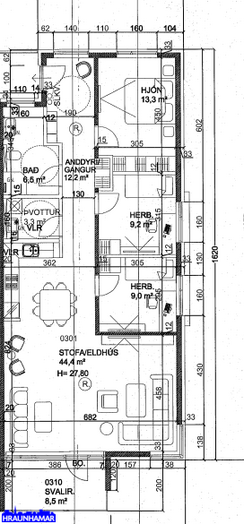
Íbúð 301 er endaíbúð, 122,4 fm og þar af er 7,8 fm geymsla merkt 0109 ásamt 8,5 fm svölum. Sérinngangur af svölum.
Nánari lýsing skv. teikningu:
Forstofa með fataskápum.
Gott opið rými þar sem eldhús og stofa eru í björtu og fallegu alrými.
Eldhús með smekklegri innréttingu frá Axis og vönduðum eldunartækjum AEG.
Stofa/borðstofa er björt, þaðan er útgengt á svalir.
Hjónaherbergi er með fataskápum.
Tvö svefnherbergi með fataskápum.
Flísalagt baðherbergi með innréttingu, upphengdu salerni og sturtu.
Sér þvottahús innan íbúðar.
Geymsla í sameign er 7,8 fm.
Kaupandi borgar skipulagsgjald þegar þess verður krafist sem er 0,3 % af væntu brunabótamati eignarinnar.
Suðurhella 12 er hluti af klasabyggingu þar sem skemmtilegur garður mun tengja húsin saman. Í stigaganginum eru 27 íbúðir.
Byggingaraðili hússins er ÞBF ehf. sem er reynslumikið og traust byggingarfélag.
Bókið skoðun hjá sölumönnum Hraunhamars:
Einar Örn Ágústsson, löggiltur fasteignasali, s. 888-7979, einar@hraunhamar.is
Hlynur Halldórsson, löggiltur fasteignasali, s. 698-2603, hlynur@hraunhamar.is
Valgerður Gissurardóttir löggiltur fasteignasali s.791-7500, vala@hraunhamar.is
Glódís Helgadóttir, löggiltur fasteignasali, s. 659-0510, glodis@hraunhamar.is
Helgi Jón Harðarson, sölust. s. 893-2233, helgi@hraunhamar.is
Skoðunarskylda:
Í lögum um fasteignakaup nr. 40/2002 er kveðið á um ríka skoðunarskyldu kaupenda á fasteignum. Hraunhamar fasteignasala vill benda væntanlegum kaupendum á að kynna sér vel ástand fasteigna fyrir kauptilboðsgerð og ef þurfa þykir að leita til sérfræðinga fyrir nánari ástandsskoðun.
Gjöld sem kaupandi þarf að standa straum af vegna kaupanna:
1. Stimpilgjald af kaupsamningi, fyrstu kaup (0,4%), almenn kaup (0,8%), lögaðilar (1,6%) af heildarfasteignamati.
2. Þinglýsingargjald af kaupsamningi, veðskuldabréfi, mögulegu veðleyfi o.fl. – kr. 2.700 kr. af hverju skjali.
3. Lántökugjald lánastofnunar er skv. verðskrá viðkomandi lánastofnunar.
4. Umsýslugjald til fasteignasölu skv. þjónustusamningi
Hraunhamar er elsta fasteignasala Hafnarfjarðar, stofnuð 1983.
Hraunhamar, í farabroddi í rúm 40 ár ! – Hraunhamar.is
Ár
Fasteignamat
Kaupverð
Stærð
Fermetraverð
19. júl. 2024
5.710.000 kr.
40.000.000 kr.
10301 m²
3.883 kr.
Byggt á upplýsingum úr Þjóðskrá Íslands frá 2006-2025