Löggiltir fasteignasalar innan Félags fasteignasala:
Freyja Sigurðardóttir
Ágústa Hauksdóttir
Andrea Guðrún Gunnlaugsdóttir
Glódís Helgadóttir
Hlynur Halldórsson
Valgerður Ása Gissurardóttir
Vista
svg

11

svg

10  Skoðendur

svg

Skráð  24. okt. 2025

fjölbýlishús

Apalskarð 2 íb. 107

221 Hafnarfjörður

72.900.000 kr.

806.416 þ.kr./m2
Fasteignanúmer

F2533853

Fasteignamat

47.000.000 kr.

Brunabótamat

0 kr.

Áhvílandi

0 kr.

Arion banki – Reikna lán
Upplýsingar
svg
Byggt 2024
svg
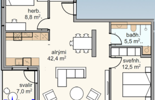
90,4 m²
svg
3 herb.
svg
2 svefnh.
svg
Bílastæði
svg
Lyfta
svg
Laus strax

Lýsing

BÓKIÐ SKOÐUN - SÝNUM SAMDÆGURS - Einar s 888-7979, Hlynur s. 698-2603, Glódís s. 659-0510, Helgi s. 893-2233,  Vala s. 791-7500

Hraunhamar fasteignasala kynnir: Apalskarð 2, glæsilegar nýjar 3ja-4ra herbergja íbúðir í góðu lyftufjölbýli vel staðsett í göngufjarlægð frá leik- og grunnskóla í Skarðshlíðarhverfinu í Hafnarfirði. 
Íbúðirnar skilast allar fullbúnar án gólfefna en votrými verða flísalögð. Öllum íbúðunum fylgir stæði í lokaðri bílageymslu.


Íbúð 107 er skráð 90,4 fm, þriggja herbergja með sérafnotafleti.

ÍBÚÐIN ER LAUS STRAX.

Ath. myndir geta verið af annarri íbúð. 


Nánari lýsing skv. teikningu:
Forstofa
með fataskápum.
Eldhús með smekklegri innréttingu og vönduðum eldunartækjum.
Björt stofa og þaðan er útgengt á sérafnotaflöt.
Hjónaherbergi með fataskápum.
Svefnherbergi með fataskáp.
Flísalagt baðherbergi með innréttingu, upphengdu salerni, ,,walk in" sturtu, tengi fyrir þvottavél og þurrkara.
Rúmgóð sérgeymsla í sameign. 
Bílastæði í bílageymslu. 

Þetta er falleg og vel skipulögð íbúð með vönduðum innréttingum frá Parka og eldunartækjum frá Electrolux.
Húsið er einstaklega vel staðsett í Skarðshlíðarhverfinu þar sem stutt er í skóla og leikskóla. 

Heimasíða verkefnisins, smelltu hér.

Kaupendur greiða skipulagsgjald sem er 0,3% af brunabótamati þegar það verður lagt á.

Bókið skoðun hjá sölumönnum Hraunhamars: 
​​​​​Einar Örn Ágústsson, löggiltur fasteignasali, s. 888-7979, einar@hraunhamar.is
Glódís Helgadóttir, löggiltur fasteignasali, s. 659-0510, glodis@hraunhamar.is
Valgerður Gissurardóttir löggiltur fasteignasali, s. 791-7500, vala@hraunhamar.is
Hlynur Halldórsson, löggiltur fasteignasali, s. 698-2603, hlynur@hraunhamar.is
Helgi Jón Harðarson, sölust. s. 893-2233, helgi@hraunhamar.is


Gjöld sem kaupandi þarf að standa straum af vegna kaupanna:
1.    Stimpilgjald af kaupsamningi, fyrstu kaup (0,4%), almenn kaup (0,8%), lögaðilar (1,6%) af heildarfasteignamati.
2.    Þinglýsingargjald af kaupsamningi, veðskuldabréfi, mögulegu veðleyfi o.fl. – 2.700 kr. af hverju skjali.
3.    Lántökugjald lánastofnunar er skv. verðskrá viðkomandi lánastofnunar.
4.    Umsýslugjald til fasteignasölu skv. þjónustusamningi

Skoðunarskylda: 
Í lögum um fasteignakaup nr. 40/2002 er kveðið á um ríka skoðunarskyldu kaupenda á fasteignum. Hraunhamar fasteignasala vill benda væntanlegum kaupendum á að kynna sér vel ástand fasteigna fyrir kauptilboðsgerð og ef þurfa þykir að leita til sérfræðinga fyrir nánari ástandsskoðun.

Hraunhamar er elsta fasteignasala Hafnarfjarðar, stofnuð 1983.
Hraunhamar, í fararbroddi í rúm 40 ár – Hraunhamar.is 
Smelltu hér til að fá frítt söluverðmat.

img
Glódís Helgadóttir
Lögg.fasteignasali innan félags fasteignasala
Hraunhamar fasteignasala
Bæjarhraun 10, 220 Hafnarfjörður
Hraunhamar fasteignasala

Hraunhamar fasteignasala

Bæjarhraun 10, 220 Hafnarfjörður
img

Glódís Helgadóttir

Bæjarhraun 10, 220 Hafnarfjörður
Hraunhamar fasteignasala

Hraunhamar fasteignasala

Bæjarhraun 10, 220 Hafnarfjörður

Glódís Helgadóttir

Bæjarhraun 10, 220 Hafnarfjörður