Löggiltir fasteignasalar innan Félags fasteignasala:
Sigurður Maack Gunnarsson
Svanþór Einarsson
Theodór Emil Karlsson
Steingrímur Benediktsson
Vista
fjölbýlishús

Goðaborgir 1

112 Reykjavík

82.900.000 kr.

792.543 þ.kr./m2
Fasteignanúmer

F2230638

Fasteignamat

70.750.000 kr.

Brunabótamat

52.800.000 kr.

Áhvílandi

0 kr.

Arion banki – Reikna lán
Upplýsingar
Verðsaga
svg
Byggt 1996
svg
104,6 m²
svg
4 herb.
svg
1 baðherb.
svg
3 svefnh.
svg
Sérinngangur
Opið hús: 28. október 2025 kl. 16:30 til 17:00

Lýsing

** Opið hús þriðjudaginn 28. október frá kl. 16:30 til 17:00 - Goðaborgir 1, íbúð 101 - Svanþór Einarsson, löggiltur fasteignasali - svanthor@fastmos.is eða 698-8555 - Theodór Emil Karlsson, aðstoðarmaður fasteignasala - teddi@fastmos.is eða 690-8040 - Steingrímur Benediktsson, löggiltur fasteignasali - steingrimur@fastmos.is eða 862-9416 ** 

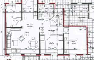
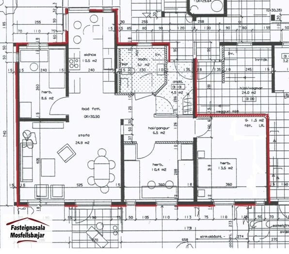
Fasteignasala Mosfellsbæjar kynnir: Falleg og rúmgóð 104,6 m2, 4ra herbergja endaíbúð með sérinngangi á jarðhæð við Goðaborgir 1 í Grafarvogi. Stór timburverönd og afgirtur garður í suðvesturátt. Mjög fallegt útsýni er frá íbúðinni. Eignin skiptist í þrjú svefnherbergi, forstofu, hol/gang, baðherbergi, eldhús, stofu og borðstofu. Sérgeymsla er í sameign. Eignin er skráð 104,6 m2, þar af íbúð 100,6 m2 og geymsla 4 m2.


Framkvæmdir/endurbætur sem farið hefur verið í samkvæmt seljanda: Baðherbergið var gert upp árið 2017. Pallur og skjólgirðin var sett upp árið 2018. Parket og innihurðar árið 2024, innihurðar eru allar 90 cm að breydd. Flestir fataskápar endurnýjaðir árið 2025. 
Árið 2019 voru múrviðgerðir gerðar á húsinu að utan. Árið 2020 var framhlið hússins máluð, ásamt gluggum. Árið 2020 voru rennur og niðurfallsrör endurnýjuð. Árið 2025 var bakhlið hússins máluð, ásamt gluggum. Árið 2025 voru útidyrahurðir pússaðar og bæsaðar.

Goðaborgir 1 er vel staðsett eign þar sem stutt er í alla helstu þjónustu, eins og t.d. skóla, leikskóla, verslanir, sund, líkamsrækt, heilsugæslu.

Nánari lýsing:
Forstofa er með fataskáp og flísum á gólfi. 
Hol/gangur er með parketi á gólfi.
Stofa og borðstofa eru í björtu opnu rými með parketi á gólfi. Úr stofu er gengið út á stóra timburverönd og afgirtan garð í suðvesturátt. 
Eldhús er með hvítri innréttingu og borðkrók. Í innréttingu er helluborð, vifta og blástursofn. Gert er ráð fyrir ísskáp og uppþvottavél í innréttingu. Gluggar með fallegu útsýni eru við borðkrókinn sem gera rýmið bjart og skemmtilegt.
Baðherbergi er flísalagt með innréttingu, vegghengdu salerni og baðkari með sturtuaðstöðu. Gert er ráð fyrir þvottavél og þurrkara á baðherbergi. Gluggi er á baðherbergi.
Svefnherbergi nr. 1 (Hjónaherbergi) er með fataskápum og parketi á gólfi.
Svefnherbergi nr. 2 er með fataskáp og parketi á gólfi.
Svefnherbergi nr. 3 er með fataskáp og parketi á gólfi.

Sérgeymsla skráð 4 m2 er í sameign hússins.

Íbúðinni fylgir hlutdeild í sameiginlegri vagna- og hjólageymslu. 

Fyrirhugað fasteignamat fyrir árið 2026 er 76.800.000 kr.

Verð kr. 82.900.000



Um skoðunar- og aðgæsluskyldu:
Í lögum um fasteignakaup nr. 40/2002 er kveðið á um ríka skoðunarskyldu kaupenda á fasteignum. Fasteignasala Mosfellsbæjar skorar því á væntanlega kaupendur að kynna sér vel ástand fasteigna fyrir kauptilboðsgerð og leita til þar til bærra sérfræðinga um nánari skoðun ef með þarf.

Forsendur söluyfirlits:
Söluyfirlit er samið af fasteignasala í samræmi við ákvæði laga nr. 70/2015. Þær upplýsingar sem fram koma í söluyfirliti þessu eru sóttar í opinberar skrár, til seljanda sjálfs og eftir atvikum til húsfélags. Seljandi veitir upplýsingar um eign í samræmi við upplýsingaskyldu laga um fasteignakaup nr. 40/2002. Fasteignasali sannreynir að þær upplýsingar séu réttar með sjónskoðun á eigninni.
Fasteignasali getur ekki fullyrt um ástand og eiginleika þeirra hluta fasteigna sem ekki eru aðgengilegir og sjást ekki berum augum, t.d. lagnir, dren, skólp og þak.

Gjöld sem kaupandi þarf að greiða vegna kaupa:
1. Stimpilgjald af kaupsamningi sem er hlutfall af fasteignamati. Stimpilgjald er 0,8% fyrir einstaklinga (0,4% við fyrstu kaup) og 1,6% fyrir lögaðila.
2. Þinglýsingargjald af kaupsamningi, veðskuldabréfum, veðleyfum o.fl. Þinglýsingargjald er kr. 2.700,- fyrir hvert skjal.
3. Lántökugjald lánastofnunar - er skv. gjaldskrá viðkomandi lánastofnunar.
4. Umsýslugjald til fasteignasölu skv. kauptilboði.
5. Þegar um nýbyggingu er að ræða greiðir kaupandi skipulagsgjald, 0,3% af endanlegu brunabótamáti, þegar það er lagt á af viðkomandi sveitarfélagi.

img
Svanþór Einarsson
Lögg.fasteignasali innan félags fasteignasala
Fasteignasala Mosfellsbæjar
Þverholti 2, 270 Mosfellsbæ
Fasteignasala Mosfellsbæjar

Fasteignasala Mosfellsbæjar

Þverholti 2, 270 Mosfellsbæ
phone
img

Svanþór Einarsson

Þverholti 2, 270 Mosfellsbæ
Ár
Fasteignamat
Kaupverð
Stærð
Fermetraverð
6. okt. 2015
25.600.000 kr.
30.600.000 kr.
104.6 m²
292.543 kr.
12. apr. 2007
19.590.000 kr.
24.100.000 kr.
104.6 m²
230.402 kr.
Byggt á upplýsingum úr Þjóðskrá Íslands frá 2006-2025
Fasteignasala Mosfellsbæjar

Fasteignasala Mosfellsbæjar

Þverholti 2, 270 Mosfellsbæ
phone

Svanþór Einarsson

Þverholti 2, 270 Mosfellsbæ