Löggiltir fasteignasalar innan Félags fasteignasala:
Ástþór Reynir Guðmundsson
Vigdís R. S. Helgadóttir
Guðbjörg Helga Jóhannesdóttir
Gylfi Jens Gylfason
Sigrún Matthea Sigvaldadóttir
Sveinn Gíslason
Páll Guðmundsson
Þórarinn Arnar Sævarsson
Berglind Hólm Birgisdóttir
Þorsteinn Gíslason
Guðrún Lilja Tryggvadóttir
Brynjar Ingólfsson
Guðný Þorsteinsdóttir
Bjarni Blöndal
Þorsteinn Ólafs
Þórdís Björk Davíðsdóttir
Jóhann Kristinn Jóhannesson
Bjarný Björg Arnórsdóttir
Salvör Þóra Davíðsdóttir
Magga Sigríður Gísladóttir
Upplýsingar
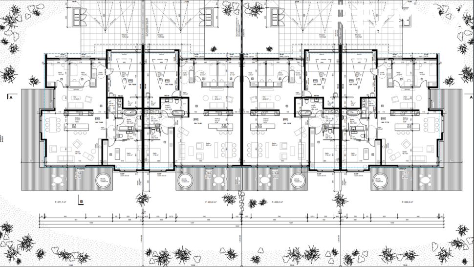
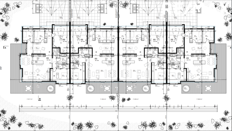
194,6 m²
4 herb.
2 baðherb.
3 svefnh.
Þvottahús
Bílskúr
Sérinngangur
Lýsing
Pétur Ásgeirsson löggiltur fasteignasali hjá RE/MAX fasteignasölu kynnir: Glæsilegt 194,6,fm staðsteypt raðhús á einni hæð með bílskúr við Axlarás 70 í Áslandi Hafnarfirði. Frábær staðsetning í suður hlíðum Ásfjalls sem er vinsælt og fjölskylduvænt svæði með fjölbreyttum möguleikum til útivistar (Hvaleyrarvatn og Helgafell í bakgarðinum. Eignin er skráð íbúð 194,6 fm og bílskúr 32,9 fm með stóran sérafnotareit.
Eignin skiptist í anddyri/forstofu, gang, sjónvarpshol, 3 svefnherbergi, 2 baðherbergi, þvottahús, geymslu, bílskúr, rúmgott alrými sem er opið við eldhús, stofu og borðstofu.
Verktaki verkefnisins er traustur verktaki til margra ára, KB verk ehf.
Sýni samdægurs
Húsið er einstaklega vandað þar sem gert er ráð fyrir free@home hússtjórnunarkerfi, loftræstikerfi, gas arinn, vönduðu álgluggakerfi, bluetooth aðgengi á útidyrahurð, rafmagnsgardínum og margt fleira. Raflagna- og ljósahönnun hjá LUMEX. Húsið er einangrað og klætt að utan með viðhaldslausri álklæðningu. Húsið skilast fullbúið að utan og tilbúið til innréttinga að innan (áður byggingarstig 5), sjá skilalýsingu.
* 3 svefnherbergi.
* 2 Baðherbergi.
* Gólfhiti.
* Stór sérafnotareitur.
* Stórt alrými.
* Mjög stór bílskúr.
* 2 Bílastæði.
Kaupandi greiðir skipulagsgjald þegar. Það verður innheimt (0,3% af væntanlegu brunabótamati).
Nánari upplýsingar gefur Pétur Ásgeirsson löggiltur fasteignasali í síma 893-6513 / petur@remax.is
Vegna mikillar eftirspurnar vantar mig allar tegundir eigna á skrá. Hafðu samband og ég mun verðmeta eign þína þér að kostnaðarlausu.
Gjöld sem kaupandi þarf að standa straum af vegna kaupanna:
1. Stimpilgjald af kaupsamningi - 0,8%(einstaklingar) 1.6% (lögaðilar) af heildarfasteignamati.
2. Þinglýsingargjald af kaupsamningi, veðskuldabréfi, mögulegu veðleyfi o.fl. - kr. 2.700 af hverju skjali.
3. Lántökugjald lánastofnunar - almennt 45-75 þús.kr. Nánari upplýsingar á heimasíðu lánastofnana.
4. Umsýslugjald til fasteignasölu kr. 69.900 mvsk.
Eignin skiptist í anddyri/forstofu, gang, sjónvarpshol, 3 svefnherbergi, 2 baðherbergi, þvottahús, geymslu, bílskúr, rúmgott alrými sem er opið við eldhús, stofu og borðstofu.
Verktaki verkefnisins er traustur verktaki til margra ára, KB verk ehf.
Sýni samdægurs
Húsið er einstaklega vandað þar sem gert er ráð fyrir free@home hússtjórnunarkerfi, loftræstikerfi, gas arinn, vönduðu álgluggakerfi, bluetooth aðgengi á útidyrahurð, rafmagnsgardínum og margt fleira. Raflagna- og ljósahönnun hjá LUMEX. Húsið er einangrað og klætt að utan með viðhaldslausri álklæðningu. Húsið skilast fullbúið að utan og tilbúið til innréttinga að innan (áður byggingarstig 5), sjá skilalýsingu.
* 3 svefnherbergi.
* 2 Baðherbergi.
* Gólfhiti.
* Stór sérafnotareitur.
* Stórt alrými.
* Mjög stór bílskúr.
* 2 Bílastæði.
Kaupandi greiðir skipulagsgjald þegar. Það verður innheimt (0,3% af væntanlegu brunabótamati).
Nánari upplýsingar gefur Pétur Ásgeirsson löggiltur fasteignasali í síma 893-6513 / petur@remax.is
Vegna mikillar eftirspurnar vantar mig allar tegundir eigna á skrá. Hafðu samband og ég mun verðmeta eign þína þér að kostnaðarlausu.
Gjöld sem kaupandi þarf að standa straum af vegna kaupanna:
1. Stimpilgjald af kaupsamningi - 0,8%(einstaklingar) 1.6% (lögaðilar) af heildarfasteignamati.
2. Þinglýsingargjald af kaupsamningi, veðskuldabréfi, mögulegu veðleyfi o.fl. - kr. 2.700 af hverju skjali.
3. Lántökugjald lánastofnunar - almennt 45-75 þús.kr. Nánari upplýsingar á heimasíðu lánastofnana.
4. Umsýslugjald til fasteignasölu kr. 69.900 mvsk.