Upplýsingar
Byggt 2024
119,2 m²
3 herb.
1 baðherb.
2 svefnh.
Þvottahús
Útsýni
Sameiginl. inngangur
Hjólastólaaðgengi
Bílastæði
Lyfta
Laus strax
Opið hús: 25. október 2025
kl. 12:00
til 12:30
Opið hús laugardaginn 25 október milli kl 12:00 - 12:30. Sýnum allar óseldar íbúðir. Aðkoma frá Dugguvogi eða inngarði.
Lýsing
Eignamiðlun kynnir:
Glæsileg íbúð á stjöttu og efstu hæð að Dugguvogi 1, 104 Reykjavík. Stórar þaksvalir með stórkostlegu útsýni. Afhending íbúðarinnar verður við kaupsamning. Bókið skoðun hjá sölumanni í síma 839-1600.Fá sent söluyfirlit - smelltu hér
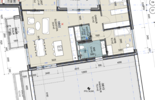
Íbúð merkt 602 - 3ja herbergja 119,2 fm íbúð á stjöttu og efstu hæð með tveim svefnherbergjum, rúmgóðum svölum og tvennum stórum þaksvölum. Rúmgott svefnherbergi með fataherbergi og minna barnaherbergi, baðherbergi, sér þvottahús, eldhús afgirt að hluta inn í borðstofu og stofu með vinnueyju. Bílastæði í bílakjallara. Virkilega fallegt útsýni.
Allar íbúðir eru með sér loftræstikerfi sem stuðlar að heilbrigði húss og íbúa, auk orkusparnaðar sem skilar allt að 80% endurnýtingu á varma. Vönduð innrétting á baðherbergi og þvottahúsi fyrir þvottavél og þurrkara. Rennihurð út á svalir íbúðarinnar og út á tvennar þaksvalir.
Nánari upplýsingar veitir: Gunnar Bergmann löggiltur fasteignasali í síma 839-1600 eða gunnarbergmann@eignamidlun.is
Smellið hér fyrir heimasíðu verkefnisins og skilalýsingu
Nánari lýsing:
Komið er inn forstofu með fataskápum.
Baðherbergi: Baðherbergi með sturtuklefa. Handlaug, handklæðaofn og upphengt salerni. Flísar á gólfum og veggjum. Aðstaða fyrir þvottavél og þurrkara inn á baðherbergi.
Eldhús: Eldhúsinnrétting með góðu skápaplássi frá Axis. Ofn í vinnuhæð, góð vinnuaðstaða. Stór vinnueyja með eldavél og stein á borðum að vali kaupanda.
Svefnherbergi: Rúmgott með góðu skápaplássi. Barnaherbergi með skápum.
Stofa/ borðstofa: Rúmgóð setustofa og borðstofa opið að hluta inn í eldhús með vinnueyju. Gengið er út á svalir út frá stofu, stór rennihurð. Einnig út á þaksavlir út frá eldhúsi.
Bílakjallari og geymsla: Bílastæði í lokuðum bílakjallara fylgir íbúðinni ásamt 12,2 fm geymslu.
Íbúðirnar verða afhentar án gólfefna, nema votrými verða flísalögð og fullkláruð. Eldhúsinnréttingar eru sérsmíðuð af vandaðri gerð frá Axis.
Gjöld sem kaupandi þarf að standa straum af vegna kaupanna:
1. Stimpilgjald af kaupsamningi - 0,8% af heildarfasteignamati. (0,4% ef um er að ræða fyrstu eign)
2. Þinglýsingargjald af kaupsamningi, veðskuldabréfi, mögulegu veðleyfi o.fl. - kr. 2.700 af hverju skjali.
3. Lántökugjald lánastofnunar. Nánari upplýsingar á t.d. heimasíðu lánastofnana.
4. Umsýslugjald til fasteignasölu sbr kauptilboði.
Eignamiðlun ehf. - Grensásvegur 11, 108 Reykjavík - gunnarbergmann@eignamidlun.is - Gunnar Bergmann Jónsson löggiltur fasteignasali.
***
Ábyrg þjónusta í áratugi. Eignamiðlun var stofnuð 1957 og er elsta starfandi fasteignasala á Íslandi. Reynsla, heiðarleiki og þekking á fasteignamarkaðnum eru grunnur að farsælum viðskiptum.
Eignamiðlun Grensásvegi 11, 108 Reykjavík - Opið frá kl. 9-17 mánudaga til fimmtudaga og 9-16 á föstudögum.
Heimasíða Eignamiðlunar
Eignamiðlun á Facebook