Upplýsingar
Byggt 2024
166,4 m²
4 herb.
1 baðherb.
3 svefnh.
Þvottahús
Útsýni
Sérinngangur
Lýsing
Fasteignasalan Hvammur 466 1600
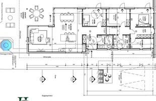
Kotra 13 - Skemmtilegt 4ra herbergja einbýlishús á einni hæð á 2.319 m² útsýnislóð í Vaðlaheiðinni - stærð 166,4 m²
Húsið er timburhús, byggt árið 2024 með Clt einingum ofan á steypta plötu og klætt með Lunawood klæðningu og dökk grárri álklæðningu.
Húsið er teiknað að Valbirni Vilhjálmssyni, m2hús ehf.
Eignin skiptist í forstofu, eldhús, stofu og borðstofu í opnu rými, gang, baðherbergi, þvottahús, tvö barnaherbergi (annað skráð sem geymsla á teikningum) og hjónaherbergi með fataherbergi og geymslu sem hægt væri að breyta í baðherbergi.
Forstofa og gangur eru með sjónfloti á gólfi og innfelldri lýsingu í loftum.
Eldhús, dökk viðarlituð innrétting og eyja með mjög góðu skápa- og bekkjarplássi. Ísskápur og uppþvottavél eru innfelld í innréttingu og fylgja með við sölu eignar.
Stofa, borðstofa og eldhús eru í opnu rými þar sem gólfi eru með sjónfloti og innfelld lýsing er í loftum. Í stofu og borðstofu eru gólfsíðir gluggar og rennihurð til suðurs út á steypta verönd.
Baðherbergi er með ljósum flísum á gólfi og hluta veggja, dökkri viðarlitaðri innréttingu, upphengdu wc, rúmgóðri walk-in sturtu með innfelldum tækjum og opnanlegum glugga.
Svefnherbergin eru þrjú, þar af er eitt skráð sem geymsla á teikningum. Stærð herbergja er skv. teikningum 12,7 m². Þar eru opnir fataskápar, innfelld lýsing í loftum, gólfsíðir gluggar og hurð út á verönd. Hjónaherbergið er innst á ganginum, skráð 13,0 m² að stærð auk fataherbergis 7,9 m² að stærð. Gólfsíðir gluggar eru í hjónaherberginu og hurð út á verönd. Í fataherberginu eru hvítir opnir skápa. Til hliðar úr fataherberginu er óinnréttað rými en þar er gert ráð fyrir baðherbergi.
Þvottahús er við hliðina á forstofunni, þar er lakkað gólf og opnanlegur gluggi.
Annað
- Gólfhiti er í húsinu.
- Sjónflot er á helstu rýmum í húsinu
- Innfelld led lýsing er í loftum og í þakskyggni.
- Útgengt er úr öllum svefnherbergjum og borðstofu út á verönd.
- Um 90 m² steypta verönd er með suður og vesturhlið hússins. Hitalagnir eru í allri veröndinni, lokað kerfi og heitur pottur.
- Veglegt þakskyggni nær yfir stóran hluta af veröndinni og setur skemmtilega svip á húsið.
- Eignarlóð, skráð 2.319 m² að stærð.
- Eignin er í einkasölu.
Um skoðunar- og aðgæsluskyldu:
Í lögum um fasteignakaup nr. 40/2002 er kveðið á um ríka skoðunarskyldu kaupenda á fasteignum. Fasteignasalan Hvammur skorar því á væntanlega kaupendur að kynna sér vel ástand fasteigna fyrir kauptilboðsgerð og leita til þar til bærra sérfræðinga um nánari skoðun ef með þarf.
Forsendur söluyfirlits:
Söluyfirlit er samið af fasteignasala í samræmi við ákvæði laga nr. 70/2015. Þær upplýsingar sem fram koma í söluyfirliti þessu eru sóttar í opinberar skrár, til seljanda sjálfs og eftir atvikum til húsfélags. Seljandi veitir upplýsingar um eign í samræmi við upplýsingaskyldu laga um fasteignakaup nr. 40/2002. Fasteignasali sannreynir að þær upplýsingar séu réttar með sjónskoðun á eigninni.
Fasteignasali getur ekki fullyrt um ástand og eiginleika þeirra hluta fasteigna sem ekki eru aðgengilegir og sjást ekki berum augum, t.d. lagnir, dren, skólp og þak.
Kotra 13 - Skemmtilegt 4ra herbergja einbýlishús á einni hæð á 2.319 m² útsýnislóð í Vaðlaheiðinni - stærð 166,4 m²
Húsið er timburhús, byggt árið 2024 með Clt einingum ofan á steypta plötu og klætt með Lunawood klæðningu og dökk grárri álklæðningu.
Húsið er teiknað að Valbirni Vilhjálmssyni, m2hús ehf.
Eignin skiptist í forstofu, eldhús, stofu og borðstofu í opnu rými, gang, baðherbergi, þvottahús, tvö barnaherbergi (annað skráð sem geymsla á teikningum) og hjónaherbergi með fataherbergi og geymslu sem hægt væri að breyta í baðherbergi.
Forstofa og gangur eru með sjónfloti á gólfi og innfelldri lýsingu í loftum.
Eldhús, dökk viðarlituð innrétting og eyja með mjög góðu skápa- og bekkjarplássi. Ísskápur og uppþvottavél eru innfelld í innréttingu og fylgja með við sölu eignar.
Stofa, borðstofa og eldhús eru í opnu rými þar sem gólfi eru með sjónfloti og innfelld lýsing er í loftum. Í stofu og borðstofu eru gólfsíðir gluggar og rennihurð til suðurs út á steypta verönd.
Baðherbergi er með ljósum flísum á gólfi og hluta veggja, dökkri viðarlitaðri innréttingu, upphengdu wc, rúmgóðri walk-in sturtu með innfelldum tækjum og opnanlegum glugga.
Svefnherbergin eru þrjú, þar af er eitt skráð sem geymsla á teikningum. Stærð herbergja er skv. teikningum 12,7 m². Þar eru opnir fataskápar, innfelld lýsing í loftum, gólfsíðir gluggar og hurð út á verönd. Hjónaherbergið er innst á ganginum, skráð 13,0 m² að stærð auk fataherbergis 7,9 m² að stærð. Gólfsíðir gluggar eru í hjónaherberginu og hurð út á verönd. Í fataherberginu eru hvítir opnir skápa. Til hliðar úr fataherberginu er óinnréttað rými en þar er gert ráð fyrir baðherbergi.
Þvottahús er við hliðina á forstofunni, þar er lakkað gólf og opnanlegur gluggi.
Annað
- Gólfhiti er í húsinu.
- Sjónflot er á helstu rýmum í húsinu
- Innfelld led lýsing er í loftum og í þakskyggni.
- Útgengt er úr öllum svefnherbergjum og borðstofu út á verönd.
- Um 90 m² steypta verönd er með suður og vesturhlið hússins. Hitalagnir eru í allri veröndinni, lokað kerfi og heitur pottur.
- Veglegt þakskyggni nær yfir stóran hluta af veröndinni og setur skemmtilega svip á húsið.
- Eignarlóð, skráð 2.319 m² að stærð.
- Eignin er í einkasölu.
Um skoðunar- og aðgæsluskyldu:
Í lögum um fasteignakaup nr. 40/2002 er kveðið á um ríka skoðunarskyldu kaupenda á fasteignum. Fasteignasalan Hvammur skorar því á væntanlega kaupendur að kynna sér vel ástand fasteigna fyrir kauptilboðsgerð og leita til þar til bærra sérfræðinga um nánari skoðun ef með þarf.
Forsendur söluyfirlits:
Söluyfirlit er samið af fasteignasala í samræmi við ákvæði laga nr. 70/2015. Þær upplýsingar sem fram koma í söluyfirliti þessu eru sóttar í opinberar skrár, til seljanda sjálfs og eftir atvikum til húsfélags. Seljandi veitir upplýsingar um eign í samræmi við upplýsingaskyldu laga um fasteignakaup nr. 40/2002. Fasteignasali sannreynir að þær upplýsingar séu réttar með sjónskoðun á eigninni.
Fasteignasali getur ekki fullyrt um ástand og eiginleika þeirra hluta fasteigna sem ekki eru aðgengilegir og sjást ekki berum augum, t.d. lagnir, dren, skólp og þak.