Löggiltir fasteignasalar innan Félags fasteignasala:
Ástþór Reynir Guðmundsson
Vigdís R. S. Helgadóttir
Guðbjörg Helga Jóhannesdóttir
Gylfi Jens Gylfason
Sigrún Matthea Sigvaldadóttir
Sveinn Gíslason
Páll Guðmundsson
Þórarinn Arnar Sævarsson
Berglind Hólm Birgisdóttir
Þorsteinn Gíslason
Guðrún Lilja Tryggvadóttir
Brynjar Ingólfsson
Guðný Þorsteinsdóttir
Bjarni Blöndal
Þorsteinn Ólafs
Þórdís Björk Davíðsdóttir
Jóhann Kristinn Jóhannesson
Bjarný Björg Arnórsdóttir
Salvör Þóra Davíðsdóttir
Magga Sigríður Gísladóttir
Upplýsingar
Byggt 2024
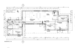
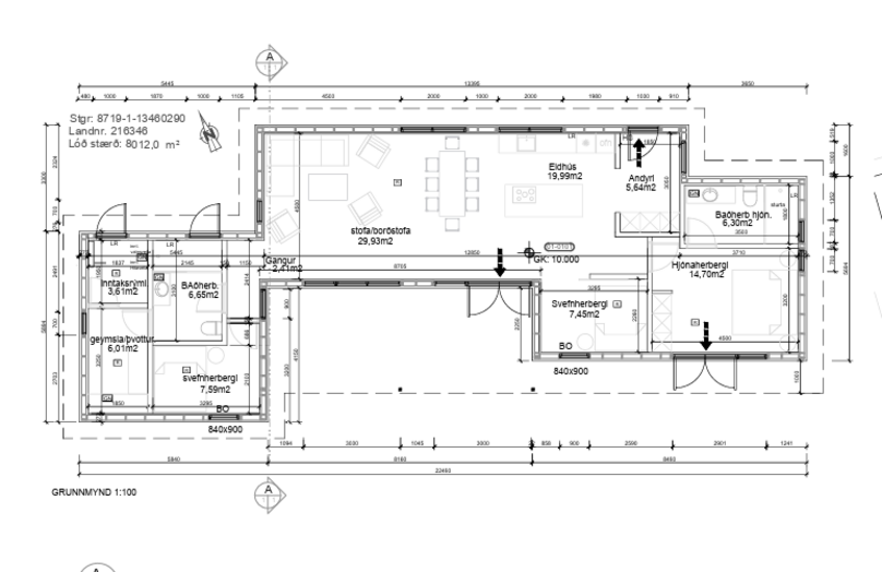
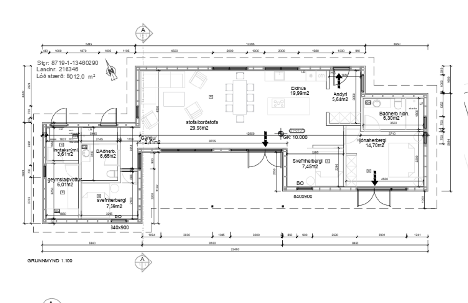
133 m²
4 herb.
2 baðherb.
3 svefnh.
Þvottahús
Lýsing
Erling Proppé lgf. & Remax kynna í sölu: Stórglæsilegt nýtt 133m2 sumarhús / heilsárshús með frábæru útsýni og gistileyfi 2 (airbnb/booking 365 daga á ári) á eignarlóð, við Giljatungu 29, í landi Ásgarðs í Grímsnes-og Grafningshreppi.
// Virkilega vandað nýtt sumarhús með frábæru útsýni
// Gistileyfi 2 samþykkt - Þú getur leigt út húsið í skamm- og langtímaleigu árið í kring!
// Svefnpláss fyrir 6-8 !
// Spónlagðar sérsmíðaðar innréttingar í reyktri eik
// Taj Mahal Quatzite steinn á borðum
// Vönduð eldhústæki og stór eyja
// Hjónasvíta ofl ofl..
- STAÐSETNING - SMELLTU HÉR -
Allar nánari upplýsingar veitir Erling Proppé lgf. sími 690-1300 eða erling@remax.is
Nánari lýsing:
Forstofa með fallegum 60x60 flísum á gólfi og góðum fataskáp.
Eldhús og stofa eru samliggjandi í stóru rými með góðri lofhæð, parketi á gólfi og útgengi út á timbur verönd.
Eldhús er glæsilegt með stórri eyju með Taj Mahal Quartzite náttúrustein, stóru spanhelluborði með innbyggðri viftu og miklu skápaplássi. Bakaraofn í vinnuhæð, innbyggð uppþvottavél, undirlímdur vaskur, innbyggður ísskápur. Innréttingin er með spónlagðri innréttingu (reykt eik, ekki plast).
Hjónasvíta með en suite baðherbergi: er rúmgott og bjart með parket á gólfi og góðum fataskáp. Inn af hjónaherbergi er glæsilegt en suite baðherbergi þar sem flísar mæta micro sementi, vönduð spónlögð innrétting (reykt eik, ekki plast), skápur með ljósum, Taj Mahal Quartzite náttúrusteinn og undirlímdur vaskur, vegghengt svart salerni, svartur handklæðaofn og svört blöndunartæki. Sturtan er með glerskilrúmi (walk in shower) og útgengt út á verönd.
Tvö barnaherbergi eru með parket á gólfum og góðum fataskáp.
Baðherbergi nr 2 er einnig glæsilegt, þar sem flísar mæta micro sementi, vönduð spónlögð innrétting (reykt eik, ekki plast), skápur með ljósum, Taj Mahal Quartzite náttúrusteinn og undirlímdur vaskur, vegghengt svart salerni, svartur handklæðaofn og svört blöndunartæki. Sturtan er með glerskilrúmi (walk in shower)
Þvottahús er með fallegri og veglegri ljósri innréttingu með quartz borðplötu, tengi fyrir þvottavél og þurrkara. Flísalagt gólf og microsement á veggjum. Inn af þvottahúsi er inntaksrými fyrir vatn og rafmagn, þaðan er einnig útgengt út á verönd.
Húsið er mjög vandað og stendur á eignarlandi í kjarrivöxnu gili þar sem lækur rennur niður, gistináttaleyfi 2 er samþykkt sem þýðir að heimilt er að leigja húsið út í skammtímaleigu allt árið í kring. Svæðið er lokað með rafmagnshliði og árgjald í félag sumarhúsaeiganda á svæðinu er um 70.000kr á ári. Heimilt er að byggja allt að 40m2 gestahús á lóðinni til viðbótar.
Í húsinu eru sérsmíðaðar spónlagðar innréttingar. Húsið er álklætt að utan með stuðlabergsklæðningu og með ál/tré gluggum. 120m2 Sólpallur klæddur með fallegu og endingargóðu pallaefni frá Lunawood í Finnlandi, sem hentar einstaklega vel fyrir krefjandi íslenskar aðstæður, skjólgirðing að hluta.
Gert er ráð fyrir heitum potti og tengingar eru fyrir hendi. Gólfplata er steypt og með hitalögn. Hitatúpa er fyrir gólfhitann og varmaskiptir fyrir neysluvatn. Að innan eru útveggir klæddir með sérskornri 12mm eikarklæðningu úr bjálkum í bland við microsement. Hurðir og innréttingar eru úr reyktri eyk. Loft eru með innfelldum ljósum. Lóð er að mestu frágengin en að öðruleiti skilast lóðin eins og hún er af náttúrunar hendi.
*Glæsilegt útsýni*
Um Lunawood: pallaefni frá Finnlandi. Efnið er hitameðhöndlað við 212°C, án nokkurrar efna- eða íblöndunar, sem gerir það að fullkomnu vali fyrir umhverfisvænar byggingarlausnir. Svansvottun tryggir sjálfbæra og vistvæna framleiðslu. Klæðningin hentar einstaklega vel fyrir krefjandi íslenskar aðstæður..
Allar nánari upplýsingar:
Erling Proppé lgf. sími 690-1300 eða erling@remax.is
Kostnaður kaupanda vegna kaupa: Stimpilgjald kaupsamnings einstaklinga er 0,8% og lögaðila 1,6% af fasteignamati eignar. Lántökugjald getur verið breytilegt eftir lánastofnunum, oftast 1%. Þinglýsingargjald er 2.700 fyrir hvert skjal. Þjónustu- og umsýslugjald til fasteignasölu skv. kauptilboði.
Um skoðunar- og aðgæsluskyldu: Í lögum um fasteignakaup nr. 40/2002 er kveðið á um ríka skoðunarskyldu kaupenda á fasteignum. REMAX bendir öllum sem hugsa sér að kaupa, að kynna sér vel ástand fasteignarinnar við skoðun fyrir tilboðsgerð og leita til sérfræðinga um nánari ástandsskoðun ef þörf þykir.
Forsendur söluyfirlits: Söluyfirlit er samið af fasteignasala í samræmi við ákvæði laga nr. 70/2015. Þær upplýsingar sem fram koma í söluyfirliti þessu eru sóttar í opinberar skrár, til seljanda sjálfs og eftir atvikum til húsfélags. Seljandi veitir upplýsingar um eign í samræmi við upplýsingaskyldu laga um fasteignakaup nr. 40/2002. Fasteignasali sannreynir að þær upplýsingar séu réttar með sjónskoðun á eigninni. Fasteignasali getur ekki fullyrt um ástand og eiginleika þeirra hluta fasteigna sem ekki eru aðgengilegir og sjást ekki berum augum, t.d. lagnir, dren, skólp og þak.
// Virkilega vandað nýtt sumarhús með frábæru útsýni
// Gistileyfi 2 samþykkt - Þú getur leigt út húsið í skamm- og langtímaleigu árið í kring!
// Svefnpláss fyrir 6-8 !
// Spónlagðar sérsmíðaðar innréttingar í reyktri eik
// Taj Mahal Quatzite steinn á borðum
// Vönduð eldhústæki og stór eyja
// Hjónasvíta ofl ofl..
- STAÐSETNING - SMELLTU HÉR -
Allar nánari upplýsingar veitir Erling Proppé lgf. sími 690-1300 eða erling@remax.is
Nánari lýsing:
Forstofa með fallegum 60x60 flísum á gólfi og góðum fataskáp.
Eldhús og stofa eru samliggjandi í stóru rými með góðri lofhæð, parketi á gólfi og útgengi út á timbur verönd.
Eldhús er glæsilegt með stórri eyju með Taj Mahal Quartzite náttúrustein, stóru spanhelluborði með innbyggðri viftu og miklu skápaplássi. Bakaraofn í vinnuhæð, innbyggð uppþvottavél, undirlímdur vaskur, innbyggður ísskápur. Innréttingin er með spónlagðri innréttingu (reykt eik, ekki plast).
Hjónasvíta með en suite baðherbergi: er rúmgott og bjart með parket á gólfi og góðum fataskáp. Inn af hjónaherbergi er glæsilegt en suite baðherbergi þar sem flísar mæta micro sementi, vönduð spónlögð innrétting (reykt eik, ekki plast), skápur með ljósum, Taj Mahal Quartzite náttúrusteinn og undirlímdur vaskur, vegghengt svart salerni, svartur handklæðaofn og svört blöndunartæki. Sturtan er með glerskilrúmi (walk in shower) og útgengt út á verönd.
Tvö barnaherbergi eru með parket á gólfum og góðum fataskáp.
Baðherbergi nr 2 er einnig glæsilegt, þar sem flísar mæta micro sementi, vönduð spónlögð innrétting (reykt eik, ekki plast), skápur með ljósum, Taj Mahal Quartzite náttúrusteinn og undirlímdur vaskur, vegghengt svart salerni, svartur handklæðaofn og svört blöndunartæki. Sturtan er með glerskilrúmi (walk in shower)
Þvottahús er með fallegri og veglegri ljósri innréttingu með quartz borðplötu, tengi fyrir þvottavél og þurrkara. Flísalagt gólf og microsement á veggjum. Inn af þvottahúsi er inntaksrými fyrir vatn og rafmagn, þaðan er einnig útgengt út á verönd.
Húsið er mjög vandað og stendur á eignarlandi í kjarrivöxnu gili þar sem lækur rennur niður, gistináttaleyfi 2 er samþykkt sem þýðir að heimilt er að leigja húsið út í skammtímaleigu allt árið í kring. Svæðið er lokað með rafmagnshliði og árgjald í félag sumarhúsaeiganda á svæðinu er um 70.000kr á ári. Heimilt er að byggja allt að 40m2 gestahús á lóðinni til viðbótar.
Í húsinu eru sérsmíðaðar spónlagðar innréttingar. Húsið er álklætt að utan með stuðlabergsklæðningu og með ál/tré gluggum. 120m2 Sólpallur klæddur með fallegu og endingargóðu pallaefni frá Lunawood í Finnlandi, sem hentar einstaklega vel fyrir krefjandi íslenskar aðstæður, skjólgirðing að hluta.
Gert er ráð fyrir heitum potti og tengingar eru fyrir hendi. Gólfplata er steypt og með hitalögn. Hitatúpa er fyrir gólfhitann og varmaskiptir fyrir neysluvatn. Að innan eru útveggir klæddir með sérskornri 12mm eikarklæðningu úr bjálkum í bland við microsement. Hurðir og innréttingar eru úr reyktri eyk. Loft eru með innfelldum ljósum. Lóð er að mestu frágengin en að öðruleiti skilast lóðin eins og hún er af náttúrunar hendi.
*Glæsilegt útsýni*
Um Lunawood: pallaefni frá Finnlandi. Efnið er hitameðhöndlað við 212°C, án nokkurrar efna- eða íblöndunar, sem gerir það að fullkomnu vali fyrir umhverfisvænar byggingarlausnir. Svansvottun tryggir sjálfbæra og vistvæna framleiðslu. Klæðningin hentar einstaklega vel fyrir krefjandi íslenskar aðstæður..
Allar nánari upplýsingar:
Erling Proppé lgf. sími 690-1300 eða erling@remax.is
Kostnaður kaupanda vegna kaupa: Stimpilgjald kaupsamnings einstaklinga er 0,8% og lögaðila 1,6% af fasteignamati eignar. Lántökugjald getur verið breytilegt eftir lánastofnunum, oftast 1%. Þinglýsingargjald er 2.700 fyrir hvert skjal. Þjónustu- og umsýslugjald til fasteignasölu skv. kauptilboði.
Um skoðunar- og aðgæsluskyldu: Í lögum um fasteignakaup nr. 40/2002 er kveðið á um ríka skoðunarskyldu kaupenda á fasteignum. REMAX bendir öllum sem hugsa sér að kaupa, að kynna sér vel ástand fasteignarinnar við skoðun fyrir tilboðsgerð og leita til sérfræðinga um nánari ástandsskoðun ef þörf þykir.
Forsendur söluyfirlits: Söluyfirlit er samið af fasteignasala í samræmi við ákvæði laga nr. 70/2015. Þær upplýsingar sem fram koma í söluyfirliti þessu eru sóttar í opinberar skrár, til seljanda sjálfs og eftir atvikum til húsfélags. Seljandi veitir upplýsingar um eign í samræmi við upplýsingaskyldu laga um fasteignakaup nr. 40/2002. Fasteignasali sannreynir að þær upplýsingar séu réttar með sjónskoðun á eigninni. Fasteignasali getur ekki fullyrt um ástand og eiginleika þeirra hluta fasteigna sem ekki eru aðgengilegir og sjást ekki berum augum, t.d. lagnir, dren, skólp og þak.