Löggiltir fasteignasalar innan Félags fasteignasala:
Runólfur Gunnlaugsson viðskiptafr.
Ásmundur Skeggjason
Jóhann Friðgeir Valdimarsson
Kristinn Tómasson viðsk.fr. MBA
Þórarinn Friðriksson
Vista
fjölbýlishús

Hólmgarður 25

108 Reykjavík

74.900.000 kr.

1.200.321 þ.kr./m2
Fasteignanúmer

F2035178

Fasteignamat

63.550.000 kr.

Brunabótamat

32.300.000 kr.

Áhvílandi

0 kr.

Arion banki – Reikna lán
Upplýsingar
Verðsaga
svg
Byggt 1951
svg
62,4 m²
svg
3 herb.
svg
1 baðherb.
svg
2 svefnh.
svg
Þvottahús
svg
Sérinngangur

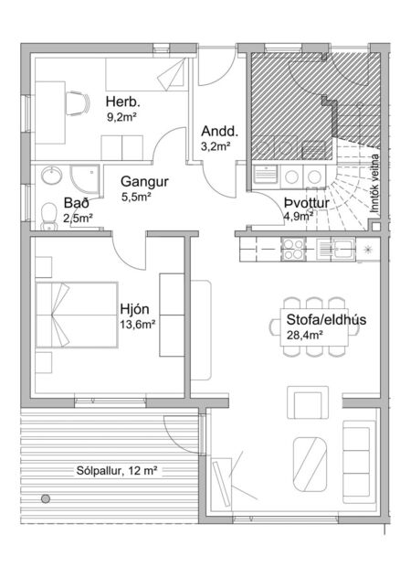
Lýsing

Glæsileg nýstandsett þriggja herbergja íbúð á jarðhæð með sér inngangi og sér verönd út af stofu á þessum eftirsótta stað. Íbúðin er laus strax. Verið er að endurmeta fasteigna og brunabótamat til hækkunar vegna stækkunar á stofu (viðbygging). 

Skoðaðu 3 D mynidr af eigninni hér

Komið er inn um sér inngang í góða parketlagða forstofu. Sér þvottahús og geymsla eru á vinstri hönd þegar inn er komið. Barnaherberg er parketlagt. Baðherbergi er flísalagt, upphengt salerni, gluggi er á baði og innrétting við vask. Hjónaherbergi er parketlagt með skápum. Eldhús er opið við stofu, snyrtileg innrétting, parket er á stofum og hurð úr stofu á sér timbur verönd í garði. 

Hér er á ferðinni falleg íbúð á eftirsóttum stað sem margir hafa beðið eftir. Hringdu núna og bókaðu tíma í einkaskoðun hjá Ásmundi Skeggjasyni, asi@hofdi.is, Gsm 895 3000.-

img
Ásmundur Skeggjason
Lögg.fasteignasali innan félags fasteignasala
Höfði fasteignasala
Suðurlandsbraut 52, 108 Reykjavík
Höfði  fasteignasala

Höfði fasteignasala

Suðurlandsbraut 52, 108 Reykjavík
phone
img

Ásmundur Skeggjason

Suðurlandsbraut 52, 108 Reykjavík
Ár
Fasteignamat
Kaupverð
Stærð
Fermetraverð
27. mar. 2023
47.100.000 kr.
58.600.000 kr.
62.4 m²
939.103 kr.
3. ágú. 2016
19.650.000 kr.
25.500.000 kr.
62.4 m²
408.654 kr.
21. des. 2012
15.800.000 kr.
18.500.000 kr.
62.4 m²
296.474 kr.
6. mar. 2007
14.420.000 kr.
15.600.000 kr.
62.4 m²
250.000 kr.
Byggt á upplýsingum úr Þjóðskrá Íslands frá 2006-2026
Höfði  fasteignasala

Höfði fasteignasala

Suðurlandsbraut 52, 108 Reykjavík
phone

Ásmundur Skeggjason

Suðurlandsbraut 52, 108 Reykjavík