Upplýsingar
Verðsaga
Byggt 2016
187 m²
4 herb.
2 baðherb.
3 svefnh.
Bílskúr
Útsýni
Sameiginl. inngangur
Hjólastólaaðgengi
Lyfta
Lýsing
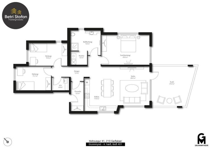
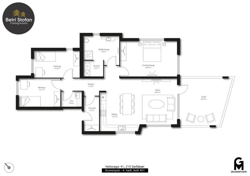
Betri Stofan og Jason Kristinn fasteignasali s 775-1515 eða jason@betristofan.is kynna: Þakíbúð við Holtsveg 41 sem er samtals 187 fm á efstu hæð. Íbúðin er með aukinni lofthæð og skiptist í þrjú svefnherbergi, tvö baðherbergi, eldhús, stofu, þvottahús innaf baðherbergi, tvennar svalir, bílskúr og geymslu inn af lokuðum bílskúr. Eina íbúðin á hæðinni.
Nánari lýsing. Komið er inn í forstofu með fataskáp og flísum á gólfi.
Eldhús og stofa er í einu stóru rými. Eldhúsið er með innréttingu (vínkælir) kvarts borðplata. Úr stofunni er útgengt á 24 fm. svalir með góðu útsýni, möguleiki er að setja svalalokun. Heitur pottur fylgir með.
Hjónaherbergið er rúmgott og með stórum fataskápum.
Tvö önnur svefnherbergi með fataskápum.
Baðherbergið er rúmgott og flísalagt í hólf og gólf með upphengdu salerni, vandaðri innréttingu við vask, sturtuklefa og góðri innréttingu fyrir þvottavél og þurrkara.
Gestasalerni er flísalagt með upphengdu salerni og góðum vaskaskáp.
Eigninn fylgir bílskúr sem er inn af bílageymslu á jarðhæð og innan hans er stór geymsla. Í bílskúrnum er heitt og kalt vatn, vaskur. Í bílageymslunni er vel útbúin þvottaðstaða með háþrýstidælu.
Í sameign er svo sameiginleg hjóla og vagnageymsla.
Skv. þjóðskrá er eignin samtals: 187 fm, íbúðin er skráð 130,9 fm, geymslan 20,6 fm og bílskúr 35,5 fm.
Stutt í skóla og þjónustu.
Allar nánari upplýsingar gefa::
Jason Kristinn Ólafsson lögg. fasteignasali sími: 775-1515 eða jason@betristofan.is löggiltur fasteignasali.
Þórhallur Biering löggiltur fasteignasali í síma 896-8232 eða thorhallur@betristofan.is
Nánari lýsing. Komið er inn í forstofu með fataskáp og flísum á gólfi.
Eldhús og stofa er í einu stóru rými. Eldhúsið er með innréttingu (vínkælir) kvarts borðplata. Úr stofunni er útgengt á 24 fm. svalir með góðu útsýni, möguleiki er að setja svalalokun. Heitur pottur fylgir með.
Hjónaherbergið er rúmgott og með stórum fataskápum.
Tvö önnur svefnherbergi með fataskápum.
Baðherbergið er rúmgott og flísalagt í hólf og gólf með upphengdu salerni, vandaðri innréttingu við vask, sturtuklefa og góðri innréttingu fyrir þvottavél og þurrkara.
Gestasalerni er flísalagt með upphengdu salerni og góðum vaskaskáp.
Eigninn fylgir bílskúr sem er inn af bílageymslu á jarðhæð og innan hans er stór geymsla. Í bílskúrnum er heitt og kalt vatn, vaskur. Í bílageymslunni er vel útbúin þvottaðstaða með háþrýstidælu.
Í sameign er svo sameiginleg hjóla og vagnageymsla.
Skv. þjóðskrá er eignin samtals: 187 fm, íbúðin er skráð 130,9 fm, geymslan 20,6 fm og bílskúr 35,5 fm.
Stutt í skóla og þjónustu.
Allar nánari upplýsingar gefa::
Jason Kristinn Ólafsson lögg. fasteignasali sími: 775-1515 eða jason@betristofan.is löggiltur fasteignasali.
Þórhallur Biering löggiltur fasteignasali í síma 896-8232 eða thorhallur@betristofan.is
Gjöld sem kaupandi þarf að standa straum af ef að kaupum verður:
1. Stimpilgjald af fasteignamati fasteignar er 0.8%, en 0,4% fyrir fyrstu kaup og 1,6% fyrir lögaðila.
2. Þinglýsingargjald: kaupsamningi, skuldabréfi, veðleyfi, afsali o.s.frv. er kr. 3.800 af hverju skjali.
3. Lántökukostnaður samkvæmt verðskrá viðkomandi lánastofnunar.
4. Umsýslugjald til fasteignasölu skv. gjaldskrá.
Skoðunarskylda kaupanda:
Í lögum um fasteignakaup nr. 40/2002 er kveðið á um ríka skoðunarskyldu kaupenda á fasteignum. Betri Stofan fasteignasala bendir væntanlegum kaupendum á að kynna sér vel ástand fasteigna við skoðun og fyrir tilboðsgerð og ef þurfa þykir að leita til sérfræðinga um nánari ástandsskoðun.
Ár
Fasteignamat
Kaupverð
Stærð
Fermetraverð
2. nóv. 2016
40.100.000 kr.
64.000.000 kr.
187 m²
342.246 kr.
Byggt á upplýsingum úr Þjóðskrá Íslands frá 2006-2026