Upplýsingar
Byggt 2025
135,2 m²
5 herb.
2 baðherb.
4 svefnh.
Þvottahús
Útsýni
Sérinngangur
Laus strax
Lýsing
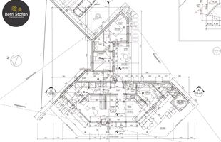
Jason Kristinn s. 775-1515 og Betri Stofan kynna: Glæsilegt heilsárshús í byggingu við Mánabakka 11, 135,2 fermetra steypt hús í nágrenni við Grímsborgir í Þrastarskógi.
Húsið er klætt með álklæðningu að hluta og filterað og málað að hluta. Eignin er í næsta nágrenni við frábæra golfvelli í Öndverðarnesi og Kiðjabergi.
Eignin skiptist í aðalhús með útsýni út á Sogið og gestahús með tveimur svefnherbergjum.
Aðalhús: Komið inní anddyri og gert ráð fyrir fataskáp. Baðherbergi er öðru megin og þvottahús gegnt baðherbergi. Gólfhiti er í eigninni.
Alrými skiptist í stofu, borðstofu og eldhús. Arinn er í stofu með fallegu útsýni. Gólfsíðir gluggar, einstakt útsýni og staðsetning lóðar er einstök.
Í sitthvorum endunum eru svefnherbergi og innaf öðru þeirra er hægt að ganga í baðherbergið.
Gestahús: Inngangur og tvö svefnherbergi og baðherbergi.
Geymslur eru tvær skv. teikningu. Möguleiki er að stækka eignina.
Húsið er hannað af ARK arkitetkum.
Húsið er með viðhaldsléttri klæðningu, náttúrulegt grastorf er á þaki.
Lóðin er frágengin við bílaplan.
Lokað svæði með fjarstýringu og einnig er hægt að hringja í hliðið til að láta opna það. Grímsborgir, Þrastalundur, Öndverðarnes eru í nokkurra mínútna fjarlægð.
Leiðarlýsing:
Fyrsta beygja til vinstri næsta hverfi á eftir Grímsborgum Inná svæði og þar er keyrt í gegnum hlið, svo til hægri og vinstri. Þá er lóðin I enda og liggur við árbakkann. Eignarlóð að stærðinni 6.754 fermetrar.
Húsinu er skilað í því ástandi sem það er í dag og gefur nýjum kaupanda tækifæri að velja sjálfur innréttingar og gólfefni.
Stutt til Selfoss til suðurs, eða Þingvalla til norðurs.
Allar nánari upplýsingar gefur: Jason Kristinn Ólafsson, s. 7751515 jason@betristofan.is löggiltur fasteignasali
Húsið er klætt með álklæðningu að hluta og filterað og málað að hluta. Eignin er í næsta nágrenni við frábæra golfvelli í Öndverðarnesi og Kiðjabergi.
Eignin skiptist í aðalhús með útsýni út á Sogið og gestahús með tveimur svefnherbergjum.
Aðalhús: Komið inní anddyri og gert ráð fyrir fataskáp. Baðherbergi er öðru megin og þvottahús gegnt baðherbergi. Gólfhiti er í eigninni.
Alrými skiptist í stofu, borðstofu og eldhús. Arinn er í stofu með fallegu útsýni. Gólfsíðir gluggar, einstakt útsýni og staðsetning lóðar er einstök.
Í sitthvorum endunum eru svefnherbergi og innaf öðru þeirra er hægt að ganga í baðherbergið.
Gestahús: Inngangur og tvö svefnherbergi og baðherbergi.
Geymslur eru tvær skv. teikningu. Möguleiki er að stækka eignina.
Húsið er hannað af ARK arkitetkum.
Húsið er með viðhaldsléttri klæðningu, náttúrulegt grastorf er á þaki.
Lóðin er frágengin við bílaplan.
Lokað svæði með fjarstýringu og einnig er hægt að hringja í hliðið til að láta opna það. Grímsborgir, Þrastalundur, Öndverðarnes eru í nokkurra mínútna fjarlægð.
Leiðarlýsing:
Fyrsta beygja til vinstri næsta hverfi á eftir Grímsborgum Inná svæði og þar er keyrt í gegnum hlið, svo til hægri og vinstri. Þá er lóðin I enda og liggur við árbakkann. Eignarlóð að stærðinni 6.754 fermetrar.
Húsinu er skilað í því ástandi sem það er í dag og gefur nýjum kaupanda tækifæri að velja sjálfur innréttingar og gólfefni.
Stutt til Selfoss til suðurs, eða Þingvalla til norðurs.
Allar nánari upplýsingar gefur: Jason Kristinn Ólafsson, s. 7751515 jason@betristofan.is löggiltur fasteignasali
Gjöld sem kaupandi þarf að standa straum af ef að kaupum verður:
1. Stimpilgjald af fasteignamati fasteignar er 0.8%, en 0,4% fyrir fyrstu kaup og 1,6% fyrir lögaðila.
2. Þinglýsingargjald: kaupsamningi, skuldabréfi, veðleyfi, afsali o.s.frv. er kr. 3.800 af hverju skjali.
3. Lántökukostnaður samkvæmt verðskrá viðkomandi lánastofnunar.
4. Umsýslugjald til fasteignasölu skv. gjaldskrá.
Skoðunarskylda kaupanda:
Í lögum um fasteignakaup nr. 40/2002 er kveðið á um ríka skoðunarskyldu kaupenda á fasteignum. Betri Stofan fasteignasala bendir væntanlegum kaupendum á að kynna sér vel ástand fasteigna við skoðun og fyrir tilboðsgerð og ef þurfa þykir að leita til sérfræðinga um nánari ástandsskoðun.