Upplýsingar
Verðsaga
Byggt 1976
119,9 m²
5 herb.
1 baðherb.
4 svefnh.
Þvottahús
Útsýni
Sameiginl. inngangur
Lýsing
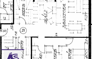
Falleg og vel skipulögð 4ra til 5 herbergja íbúð á fyrstu hæð á þessum vinsæla stað í Norðurbænum í Hafnarfirði.
Íbúðin er skráð 4ra herbergja en það er búið að útbúa fjórða herbergið í íbúðinni þannig í dag er íbúðin með fjögur herbergi.
Heildarstærð samkv. HMS er 119,9 fm sem skiptist þannig að íbúðin er 103,5 fm, síðan eru tvær geymslur, önnur er 8,8 fm og hin 7.6 fm.
Nánari lýsing:
Forstofa með flísum á gólfi og fatahengi.
Hol/gangur með parket á gólfi.
Stofa og borðstofa með parket á gólfi og útsýn yfir hraunið.
Eldhúsið er með parket á gólfi, vifta, stæði fyrir uppþvottavél. Í enda á eldhúsinu er góður borðkrókur með glugga.
Innaf eldhúsi er þvottahús með lökkuðu gólfi, innrétting og opnanlegur gluggi.
Baðherbergi með sturtu, hvít innrétting, upphengt salerni, opnalegur gluggi.
Fjögur herbergi með parket á gólfi, skápar í þrem, útgengt út á yfirbyggðar suð/austur svalir úr einu herberginu.
Tvær geymslur/hobbýherbergi í kjallara.
Hjóla- og vagnageymsla.
Sameign er snyrtileg.
Framkvæmdir seinustu ára skv. seljanda:
2025 Rafhleðslustaurar (við endan á númer 18
2026 Verið að setja upp nýja hitaveitugrind
2025 Baðherbergi endurnýjað að hluta.
2025 Nýtt rafmagn í stigagangi 2025
2022-2024 Lóð tekin í gegn.
2021 Drenað í kringum allt húsið
2017 Skipt um þak, svalir glerjaðar, og skipt um gler og gluggakarma á tveimur hliðum og hluta á þriðju hliðinni. Skipt var um allt gler í þessari íbúð.
2018 voru flest gólfefni endurnýjuð svo og hurðar.
Nánari upplýsingar veitir Svala Haraldsdóttir löggiltur fasteignasali í s. 820-9699 / svala@as.is og Eiríkur Svanur Sigfússon löggiltur fasteignasali í s. 862-3377 / eirikur@as.is og
Ás fasteignasala er rótgróið fyrirtæki sem hefur veitt alla almenna þjónustu í fasteignaviðskiptum frá árinu 1988.
www.facebook.com/asfasteignasala
www.instagram.com/as_fasteignasala
www.as.is
Íbúðin er skráð 4ra herbergja en það er búið að útbúa fjórða herbergið í íbúðinni þannig í dag er íbúðin með fjögur herbergi.
Heildarstærð samkv. HMS er 119,9 fm sem skiptist þannig að íbúðin er 103,5 fm, síðan eru tvær geymslur, önnur er 8,8 fm og hin 7.6 fm.
Nánari lýsing:
Forstofa með flísum á gólfi og fatahengi.
Hol/gangur með parket á gólfi.
Stofa og borðstofa með parket á gólfi og útsýn yfir hraunið.
Eldhúsið er með parket á gólfi, vifta, stæði fyrir uppþvottavél. Í enda á eldhúsinu er góður borðkrókur með glugga.
Innaf eldhúsi er þvottahús með lökkuðu gólfi, innrétting og opnanlegur gluggi.
Baðherbergi með sturtu, hvít innrétting, upphengt salerni, opnalegur gluggi.
Fjögur herbergi með parket á gólfi, skápar í þrem, útgengt út á yfirbyggðar suð/austur svalir úr einu herberginu.
Tvær geymslur/hobbýherbergi í kjallara.
Hjóla- og vagnageymsla.
Sameign er snyrtileg.
Framkvæmdir seinustu ára skv. seljanda:
2025 Rafhleðslustaurar (við endan á númer 18
2026 Verið að setja upp nýja hitaveitugrind
2025 Baðherbergi endurnýjað að hluta.
2025 Nýtt rafmagn í stigagangi 2025
2022-2024 Lóð tekin í gegn.
2021 Drenað í kringum allt húsið
2017 Skipt um þak, svalir glerjaðar, og skipt um gler og gluggakarma á tveimur hliðum og hluta á þriðju hliðinni. Skipt var um allt gler í þessari íbúð.
2018 voru flest gólfefni endurnýjuð svo og hurðar.
Nánari upplýsingar veitir Svala Haraldsdóttir löggiltur fasteignasali í s. 820-9699 / svala@as.is og Eiríkur Svanur Sigfússon löggiltur fasteignasali í s. 862-3377 / eirikur@as.is og
Ás fasteignasala er rótgróið fyrirtæki sem hefur veitt alla almenna þjónustu í fasteignaviðskiptum frá árinu 1988.
www.facebook.com/asfasteignasala
www.instagram.com/as_fasteignasala
www.as.is
Ár
Fasteignamat
Kaupverð
Stærð
Fermetraverð
13. jan. 2012
19.500.000 kr.
22.000.000 kr.
119.9 m²
183.486 kr.
Byggt á upplýsingum úr Þjóðskrá Íslands frá 2006-2026