Löggiltir fasteignasalar innan Félags fasteignasala:
Kristján Baldursson
Guðbjörg G. Sveinbjörnsdóttir
Sólveig Regína Biard
Kristín María Stefánsdóttir
Viktoría Rannveig Larsen
Aðalsteinn Jón Bergdal
Hallgrímur Óli Hólmsteinsson
Vista
fjölbýlishús

Skógarbraut 916

262 Reykjanesbær

49.900.000 kr.

402.744 þ.kr./m2
Fasteignanúmer

F2309213

Fasteignamat

55.750.000 kr.

Brunabótamat

58.050.000 kr.

Áhvílandi

0 kr.

Arion banki – Reikna lán
Upplýsingar
svg
Byggt 1978
svg
123,9 m²
svg
5 herb.
svg
2 baðherb.
svg
4 svefnh.
svg
Þvottahús
svg
Sameiginl. inngangur

Lýsing

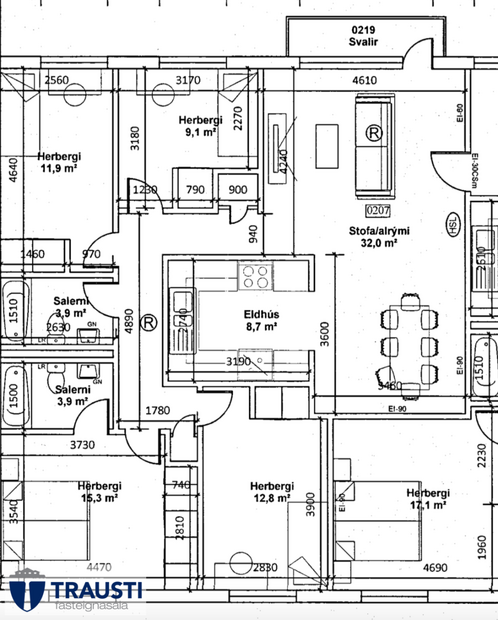
Skógarbraut í Reykjanesbæ er íbúðarhúsnæði á þremur hæðum, 8 íbúðir eru í hverjum stigagangi og hefur húsið fengið gott viðhald í gegnum árin. Íbúðirnar í húsinu eru 2-5 herbergja og eru á bilinu 90-125fm.
Um er að ræða rúmgóð og bjarta 5 herbergja íbúð á 2. hæð við Skógarbraut í Reykjanesbæ. Eignin skiptist í stofu, eldhús, hjónaherbergi, þrjú herbergi, tvö baðherbergi, gang, sérgeymsla og þvottahús eru í sameign. Húsið er nýmálað að utan.  Eignin er laus við kaupsamning. 

Eignin er skráð skv. Þjóðskrá Íslands alls 123,9fm og þar af er geymsla 3,5fm.



Nánari lýsing:
Anddyri
 með harðparketi á gólfi.
Stofa/borðstofa björt og rúmgóð með harðparketi á gólfi. 
Eldhús með nýrri fallegri innréttingu með helluborði, ofni, háf, innbyggðum ísskáp, innbyggð uppþvottavél og parket á gólfi. 
Hjónaherbergi rúmgott með góðu skápaplássi og parketi á gólfi. Innan af hjónaherbergi er baðherbergi með nýlegri innréttingu, innangendri sturtu og flísum á gólfi.
Svefnherbergin 3 eru rúmgóð með fataskáp og parketi á gólfi.
Baðherbergi með innangengri sturtu, handklæðaofn, upphengdu salerni, speglaskáp með led lýsingu og flísum á gólfi og hluta veggja.  Hreinlætistæki voru endurnýjuð árið 2018 og er frá Byko.
Geymsla er á jarðhæð hússins.

Þvottahús er í sameign þar sem hver íbúð er með sitt tengi. 

Blokkin var sprunguviðgerð að utan árið 2018
Sameign er mjög snyrtileg, á gólfum eru nýleg gólfefni.
Nýlega endurnýjað hitaveitu ofna og lagnir þar sem þess þurfti, allar ofnlagnir voru úr eir og eru þær heillegar.
Neysluvatnslagnir voru endurnýjaðar árið 2018 og frárennsli að plötu 1. hæðar.
Blokkin var öll máluð að utan sumarið 2025.

Íbúðirnar eru á Ásbrú sem er ört stækkandi samfélag á Suðurnesjum og stutt er í alla þjónustu og skóla. Einungis er um 30-40 mínútna akstur frá Reykjavík.

Allar nánari upplýsingar veitir Guðbjörg G. Sveinbjörnsdóttir löggiltur fasteignasali í síma 899-5940 eða á netfanginu gudbjorg@trausti.is
 

Forsendur söluyfirlits: 
Söluyfirlit er samið af fasteignasala í samræmi við ákvæði laga nr. 70/2015. Þær upplýsingar sem fram koma í söluyfirliti þessu eru sóttar í opinberar skrár, til seljanda sjálfs og eftir atvikum til húsfélags. Seljandi veitir upplýsingar um eign í samræmi við upplýsingaskyldu laga um fasteignakaup nr. 40/2002. Fasteignasali sannreynir að þær upplýsingar séu réttar með sjónskoðun á eigninni. Fasteignasali getur ekki fullyrt um ástand og eiginleika þeirra hluta fasteigna sem ekki eru aðgengilegir og sjást ekki berum augum, t.d. lagnir, dren, skólp og þak. 

Skoðunarskylda: 
Í lögum um fasteignakaup nr. 40/2002 er kveðið á um ríka skoðunarskyldu kaupenda á fasteignum. Vill Trausti fasteignasala því benda væntanlegum kaupendum á að kynna sér vel ástand fasteigna fyrir kauptilboðsgerð og leita til þar til bærra sérfræðinga um nánari skoðun ef þurfa þykir.

Gjöld sem kaupandi þarf að standa straum af vegna kaupanna:
1. Stimpilgjald af kaupsamningi, fyrstu kaup (0,4%), almenn kaup (0,8%), lögaðilar (1,6%) af heildarfasteignamati.
2. Þinglýsingargjald af kaupsamningi, veðskuldabréfi, mögulegu veðleyfi o.fl. - kr. 3.800 af hverju skjali.
3. Lántökugjald lánastofnunar er skv. verðskrá viðkomandi lánastofnunar. Nánari upplýsingar á t.d. heimasíðu lánastofnana.
4. Umsýslugjald til fasteignasölu skv. kauptilboði.

img
Guðbjörg G. Sveinbjörnsdóttir
Lögg.fasteignasali innan félags fasteignasala
Trausti fasteignasala
Vegmúla 4, 108 Reykjavík
Trausti fasteignasala

Trausti fasteignasala

Vegmúla 4, 108 Reykjavík
phone
img

Guðbjörg G. Sveinbjörnsdóttir

Vegmúla 4, 108 Reykjavík
Trausti fasteignasala

Trausti fasteignasala

Vegmúla 4, 108 Reykjavík
phone

Guðbjörg G. Sveinbjörnsdóttir

Vegmúla 4, 108 Reykjavík