Löggiltir fasteignasalar innan Félags fasteignasala:
Ástþór Reynir Guðmundsson
Vigdís R. S. Helgadóttir
Guðbjörg Helga Jóhannesdóttir
Gylfi Jens Gylfason
Sigrún Matthea Sigvaldadóttir
Sveinn Gíslason
Páll Guðmundsson
Þórarinn Arnar Sævarsson
Berglind Hólm Birgisdóttir
Þorsteinn Gíslason
Guðrún Lilja Tryggvadóttir
Brynjar Ingólfsson
Guðný Þorsteinsdóttir
Bjarni Blöndal
Þorsteinn Ólafs
Þórdís Björk Davíðsdóttir
Jóhann Kristinn Jóhannesson
Bjarný Björg Arnórsdóttir
Salvör Þóra Davíðsdóttir
Magga Sigríður Gísladóttir
Upplýsingar
Verðsaga
Byggt 2020
176,3 m²
4 herb.
2 baðherb.
3 svefnh.
Þvottahús
Bílskúr
Útsýni
Sérinngangur
Laus strax
Lýsing
BÓKIÐ EINKASKOÐUN
NÁNARI UPPLÝSINGAR FÆRÐU HJÁ GUÐNÝJU ÞORSTEINS Í SÍMA 7715211 EÐA GUDNYTH@REMAX.IS
SMELLTU HÉR OG SJÁÐU EIGNINA Í ÞRÍVÍDD
RE/MAX og GUÐNÝ ÞORSTEINS Löggiltur fasteignasali kynna í einkasölu: Mjög vel skipulagt og fallegt 164,3fm parhús á tveimur hæðum með 2-3 svefnherbergjum ásamt innbyggðum bílskúr við Grænatún 20b, í eftirsóttu hverfi í Kópavogi. ATH fyrir afhendingu verðu 12fm sólskálinn reistur ásamt því að húsið verður málað að utan. Samtals stærð 176m2.
Nánari lýsing:
1. hæð:
Forstofa: Er virkilega rúmgóð með góðum skápum, flísar ásamt hita í gólfi.
Stofa/Eldhús: Eru í sameiginlegu opnu og flæðandi rými með 2 rennihurðum út í 12 fm sólskála sem snýr í suður. Vínilparket ásamt hiti er í gólfum.
Baðherbergi: Er með rúmgóðri sturtu, upphengdu salerni, vaski með skúffum undir. Útgangur eru út í garð til austurs. Flísar ásamt hita í gólfi.
Bílskúr: Er innangengur úr íbúð, 24,5fm að stærð ásamt rafdrifinni hurð.
Bílaplan: Er stórt og gott, búið er að leggja fyrir hita í planið.
Stigi: Er steyptur, gert er ráð fyrir næturlýsingu við þrepin.
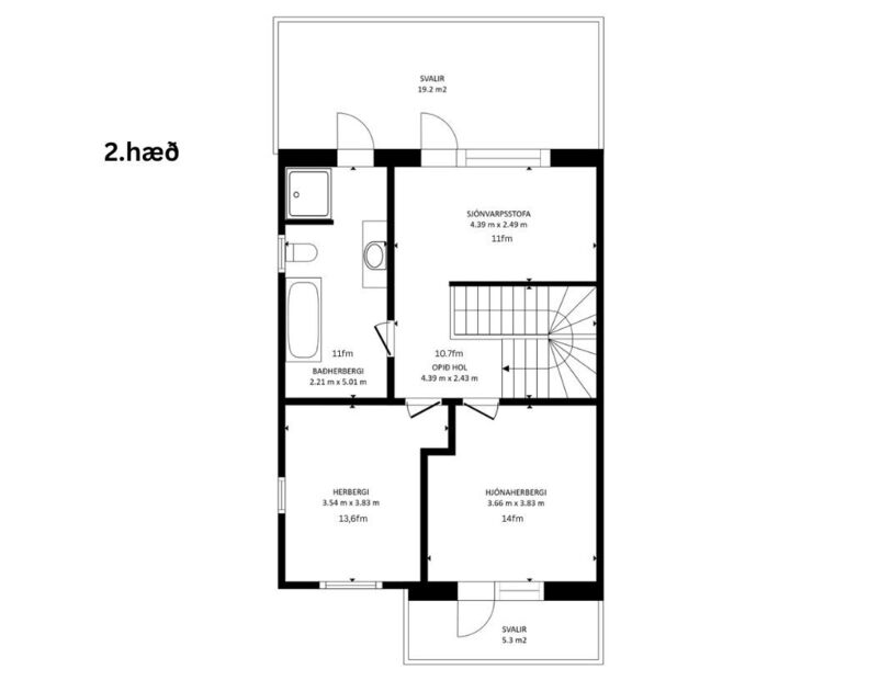
2. hæð:
Herbergi I: Er 13fm að stærð með góðum fataskápum ásamt útgangi út á norður svalir, harðparket ásamt hita í gólfi.
Herbergi II: Er 13,1fm að stærð með fataskáp, harðparket ásamt hita í gólfi.
Herbergi III / Sjónvarpsherbergi: Er 11,6fm að stærð með útgang út á suður svalir, harðparket ásamt hita í gólfi.
Baðherbergi: Er 11,6fm að stærð, virkilega fallegt með útgang út á svalir, rúmgóðri sturtu, baðkari, upphengdu salerni, vaskur með skúffum undir. Flísar ásamt hita í gólfi.
Þvotta aðstaða: Er inni á baðherbergi á 2. hæð.
Arkitekt hússins er Einar V. Tryggvason arkitekt.
Húsið er vel staðsett í vinsælu hverfi á grónum stað þar sem stutt er í alla helstu þjónustu eins og leik- og grunnskóla, verslanir ásamt fallegu útivistasvæði í Fossvogsdalnum.
Allar nánari upplýsingar og bókun á skoðun veitir Guðný Þorsteins löggiltur fasteigna- og skipasali s: 771-5211 eða á netfangið gudnyth@remax.is.
Í lögum um fasteignakaup nr. 40/2002 er kveðið á um ríka skoðunarskyldu kaupenda á fasteignum. Vill Re/Max því skora á væntanlega kaupendur að kynna sér vel ástand fasteigna fyrir kauptilboðsgerð og leita til þar til bærra sérfræðinga um nánari skoðun.
Gjöld sem kaupandi þarf að standa straum af vegna kaupanna:
1. Stimpilgjald af kaupsamningi - 0.8% af heildarfasteignamati / 1.6% fyrir lögaðila. (0.4% við fyrstu kaup einstaklinga).
2. Þinglýsingargjald af kaupsamningi, veðskuldabréfi, veðleyfi o.fl.- kr. 2.700 af hverju skjali.
3. Lántökugjald lánastofnunar - skv. gjaldskrá lánastofnunar
4. Umsýsluþóknun til fasteignasölu, 69.900 kr. m.vsk.
NÁNARI UPPLÝSINGAR FÆRÐU HJÁ GUÐNÝJU ÞORSTEINS Í SÍMA 7715211 EÐA GUDNYTH@REMAX.IS
SMELLTU HÉR OG SJÁÐU EIGNINA Í ÞRÍVÍDD
RE/MAX og GUÐNÝ ÞORSTEINS Löggiltur fasteignasali kynna í einkasölu: Mjög vel skipulagt og fallegt 164,3fm parhús á tveimur hæðum með 2-3 svefnherbergjum ásamt innbyggðum bílskúr við Grænatún 20b, í eftirsóttu hverfi í Kópavogi. ATH fyrir afhendingu verðu 12fm sólskálinn reistur ásamt því að húsið verður málað að utan. Samtals stærð 176m2.
- Aukin lofthæð
- 2 baðherbergi bæði með útgangi
- Suður og norður svalir
- 12fm sólskáli
- Hiti í gólfum
- Afhendist við kaupsamning
Nánari lýsing:
1. hæð:
Forstofa: Er virkilega rúmgóð með góðum skápum, flísar ásamt hita í gólfi.
Stofa/Eldhús: Eru í sameiginlegu opnu og flæðandi rými með 2 rennihurðum út í 12 fm sólskála sem snýr í suður. Vínilparket ásamt hiti er í gólfum.
Baðherbergi: Er með rúmgóðri sturtu, upphengdu salerni, vaski með skúffum undir. Útgangur eru út í garð til austurs. Flísar ásamt hita í gólfi.
Bílskúr: Er innangengur úr íbúð, 24,5fm að stærð ásamt rafdrifinni hurð.
Bílaplan: Er stórt og gott, búið er að leggja fyrir hita í planið.
Stigi: Er steyptur, gert er ráð fyrir næturlýsingu við þrepin.
2. hæð:
Herbergi I: Er 13fm að stærð með góðum fataskápum ásamt útgangi út á norður svalir, harðparket ásamt hita í gólfi.
Herbergi II: Er 13,1fm að stærð með fataskáp, harðparket ásamt hita í gólfi.
Herbergi III / Sjónvarpsherbergi: Er 11,6fm að stærð með útgang út á suður svalir, harðparket ásamt hita í gólfi.
Baðherbergi: Er 11,6fm að stærð, virkilega fallegt með útgang út á svalir, rúmgóðri sturtu, baðkari, upphengdu salerni, vaskur með skúffum undir. Flísar ásamt hita í gólfi.
Þvotta aðstaða: Er inni á baðherbergi á 2. hæð.
Arkitekt hússins er Einar V. Tryggvason arkitekt.
Húsið er vel staðsett í vinsælu hverfi á grónum stað þar sem stutt er í alla helstu þjónustu eins og leik- og grunnskóla, verslanir ásamt fallegu útivistasvæði í Fossvogsdalnum.
Allar nánari upplýsingar og bókun á skoðun veitir Guðný Þorsteins löggiltur fasteigna- og skipasali s: 771-5211 eða á netfangið gudnyth@remax.is.
Í lögum um fasteignakaup nr. 40/2002 er kveðið á um ríka skoðunarskyldu kaupenda á fasteignum. Vill Re/Max því skora á væntanlega kaupendur að kynna sér vel ástand fasteigna fyrir kauptilboðsgerð og leita til þar til bærra sérfræðinga um nánari skoðun.
Gjöld sem kaupandi þarf að standa straum af vegna kaupanna:
1. Stimpilgjald af kaupsamningi - 0.8% af heildarfasteignamati / 1.6% fyrir lögaðila. (0.4% við fyrstu kaup einstaklinga).
2. Þinglýsingargjald af kaupsamningi, veðskuldabréfi, veðleyfi o.fl.- kr. 2.700 af hverju skjali.
3. Lántökugjald lánastofnunar - skv. gjaldskrá lánastofnunar
4. Umsýsluþóknun til fasteignasölu, 69.900 kr. m.vsk.
Ár
Fasteignamat
Kaupverð
Stærð
Fermetraverð
31. ágú. 2021
45.100.000 kr.
80.000.000 kr.
164.3 m²
486.914 kr.
5. okt. 2012
26.550.000 kr.
25.000.000 kr.
106.4 m²
234.962 kr.
Byggt á upplýsingum úr Þjóðskrá Íslands frá 2006-2026