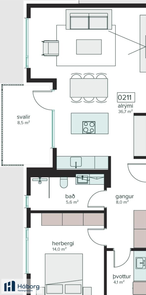
Hestamýri, 225 Garðabær