Upplýsingar
Byggt 2025
137,4 m²
4 herb.
2 baðherb.
3 svefnh.
Þvottahús
Sameiginl. inngangur
Bílastæði
Lyfta
Lýsing
GLÆSILEG PENTHOUSE ÍBÚÐ - KAUPENDUR GETA HAFT ÁHRIF Á LOKAÚTLIT INNRÉTTINGA&GÓLFEFNA
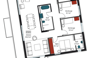
Fasteignasalan TORG kynnir: Nýbygging við Áshamar 24-26, Hafnarfirði. Eignin er hin glæsilegasta og er á efstu hæð með fallegu útsýni. Íbúðin er fjögurra herbergja og 137,4 fm, þar af 5,9 fm geymsla í sameign. Ísskápur og innbyggð uppþvottavél fylgir. Sameiginlegur inngangur og 43,8 fm svalir til suður, vestur og norður út frá stofu. Íbúðinni fylgja tvö stæði (B092 og B115) í lokuðum bílakjallara. Stutt er í alla helstu þjónustu. Afhending er við kaupsamning. Íbúðir skilast fullbúin samkvæmt byggingastigi 7, parket á gólfum nema í votrýmum, sem verða flísalögð. BÓKIÐ SKOÐUN – MATTHILDUR LGFS SÍMI 690 4966 - EMAIL matthildur@fstorg.is. SÆKJA SÖLUYFIRLIT HÉR.
Kynnið ykkur Skjólfestu, ný leið til að auðvelda íbúðakaup: https://skjolfesta.is/
Kaupandi þarf einungis að eiga 10% útborgun og standast greiðslumat upp á 70% lán
Dæmi: Verð 69,0 millj - eigandi á 6,9 millj - Skjólfesta kaupir 20%: 13,8 millj - kaupandi tekur lán upp á 48,3 millj.
Nánari lýsing:
Komið er inn í anddyri með góðu skápaplássi
Alrými með stofu og eldhúsi, innréttingar í eldhúsi eru frá HTH innréttingum eða sambærilegum. Spanhelluborð, gufugleypir/eyjuháfur, ísskápur og innbyggð uppþvottavél frá AEG eða sambærilegu. Vönduð blöndunartæki.
Gengið er út á 43,8 fm svalir til suður, vesturs og norður frá stofu og eldhúsi.
Hjónaherbergi með baðherbergi inn af.
Tvö rúmgóð svefnherbergi með skápum.
Baðherbergi eru með innréttingu og efri skáp, upphengdu salerni og sturtu.
Þvottahús innan íbúðar.
Sér geymsla í sameign.
Sér stæði í bílageymslu, merkt B092 og B115
Nánari upplýsingar veitir Matthildur Sunna Þorláksdóttir lögfræðingur og löggiltur fasteignasali í síma 690 4966 eða matthildur@fstorg.is
Nánar um hverfið (tekið af heimasíðu fyrir áshamar 12-26)
Áshamar 12-26 í Hamranesi er kjarni sex nútímalegra fjölbýlishúsa með 154 íbúðum í hverfi þar sem þegar hefur byggð upp þjónustu fyrir íbúa. Vellirnir/Skarðshlíð skarta tveimur grunnskólum og fjórum leikskólum en einnig er gert ráð fyrir að það komi grunnskóli og tveir fjögurra deilda leikskólar auk hjúkrunar- og heilsugæslustöð í Hamranesið.
Íbúðirnar eru tveggja til fjögurra herbergja. Breytt úrval fyrir allar gerðir fjölskyldna þar sem hugað er að öryggi í umferðinni með góðum göngustígum og gangnakerfi. Húsin eru nærri náttúruperlum sem eru vinsælar til útivistar.
Kaupandi greiðir skipulagsgjald af eigninni sem nemur 0,3% af brunabótamati og leggst á eftir að endanlegt brunabótamat hefur fengist á eignina.
Forsendur söluyfirlits:
Söluyfirlit er samið af fasteignasala í samræmi við ákvæði laga nr. 70/2015. Þær upplýsingar sem fram koma í söluyfirliti þessu eru sóttar í opinberar skrár, til seljanda sjálfs og eftir atvikum til húsfélags. Seljandi veitir upplýsingar um eign í samræmi við upplýsingaskyldu laga um fasteignakaup nr. 40/2002. Fasteignasali sannreynir að þær upplýsingar séu réttar með sjónskoðun á eigninni. Fasteignasali getur ekki fullyrt um ástand og eiginleika þeirra hluta fasteigna sem ekki eru aðgengilegir og sjást ekki berum augum, t.d. lagnir, dren, skólp og þak.
Gjöld sem kaupandi þarf að standa straum af vegna kaupanna:
Stimpilgjald af kaupsamningi sem er hlutfall af fasteignamati. Stimpilgjald er 0,8% fyrir einstaklinga (0,4% við fyrstu kaup m.v. að lágmarki 50% eignarhlut) og 1,6% fyrir lögaðila. Þinglýsingargjald hvers skjals er kr. 2.700,-. Lántökugjald lánastofnunar skv. gjaldskrá viðkomandi lánveitanda. Umsýsluþóknun fasteignasölu skv. gjaldskrá. Ef um nýbyggingu er að ræða greiðir kaupandi skipulagsgjald, 0,3% af brunabótamati, þegar það er lagt á.
TORG fasteignasala bendir fasteignakaupendum á ríka skoðunarskyldu kaupenda sem kveðið er á í lögum um fasteignakaup nr. 40/2002. Skorað er á kaupendur að kynna sér vandlega ástand fasteigna og nýta til þess aðstoð sérfræðinga. Sömuleiðis er bent á upplýsingaskyldu seljanda samanber 26.gr. Laga nr.40/2002 um fasteignakaup og 25.gr. laga nr.26/1994 um fjöleignarhús. Seljanda er bent á að kynna sér tilvitnaðar lagagreinar.
Fasteignasalan TORG kynnir: Nýbygging við Áshamar 24-26, Hafnarfirði. Eignin er hin glæsilegasta og er á efstu hæð með fallegu útsýni. Íbúðin er fjögurra herbergja og 137,4 fm, þar af 5,9 fm geymsla í sameign. Ísskápur og innbyggð uppþvottavél fylgir. Sameiginlegur inngangur og 43,8 fm svalir til suður, vestur og norður út frá stofu. Íbúðinni fylgja tvö stæði (B092 og B115) í lokuðum bílakjallara. Stutt er í alla helstu þjónustu. Afhending er við kaupsamning. Íbúðir skilast fullbúin samkvæmt byggingastigi 7, parket á gólfum nema í votrýmum, sem verða flísalögð. BÓKIÐ SKOÐUN – MATTHILDUR LGFS SÍMI 690 4966 - EMAIL matthildur@fstorg.is. SÆKJA SÖLUYFIRLIT HÉR.
Kynnið ykkur Skjólfestu, ný leið til að auðvelda íbúðakaup: https://skjolfesta.is/
Kaupandi þarf einungis að eiga 10% útborgun og standast greiðslumat upp á 70% lán
Dæmi: Verð 69,0 millj - eigandi á 6,9 millj - Skjólfesta kaupir 20%: 13,8 millj - kaupandi tekur lán upp á 48,3 millj.
Nánari lýsing:
Komið er inn í anddyri með góðu skápaplássi
Alrými með stofu og eldhúsi, innréttingar í eldhúsi eru frá HTH innréttingum eða sambærilegum. Spanhelluborð, gufugleypir/eyjuháfur, ísskápur og innbyggð uppþvottavél frá AEG eða sambærilegu. Vönduð blöndunartæki.
Gengið er út á 43,8 fm svalir til suður, vesturs og norður frá stofu og eldhúsi.
Hjónaherbergi með baðherbergi inn af.
Tvö rúmgóð svefnherbergi með skápum.
Baðherbergi eru með innréttingu og efri skáp, upphengdu salerni og sturtu.
Þvottahús innan íbúðar.
Sér geymsla í sameign.
Sér stæði í bílageymslu, merkt B092 og B115
Nánari upplýsingar veitir Matthildur Sunna Þorláksdóttir lögfræðingur og löggiltur fasteignasali í síma 690 4966 eða matthildur@fstorg.is
Nánar um hverfið (tekið af heimasíðu fyrir áshamar 12-26)
Áshamar 12-26 í Hamranesi er kjarni sex nútímalegra fjölbýlishúsa með 154 íbúðum í hverfi þar sem þegar hefur byggð upp þjónustu fyrir íbúa. Vellirnir/Skarðshlíð skarta tveimur grunnskólum og fjórum leikskólum en einnig er gert ráð fyrir að það komi grunnskóli og tveir fjögurra deilda leikskólar auk hjúkrunar- og heilsugæslustöð í Hamranesið.
Íbúðirnar eru tveggja til fjögurra herbergja. Breytt úrval fyrir allar gerðir fjölskyldna þar sem hugað er að öryggi í umferðinni með góðum göngustígum og gangnakerfi. Húsin eru nærri náttúruperlum sem eru vinsælar til útivistar.
Kaupandi greiðir skipulagsgjald af eigninni sem nemur 0,3% af brunabótamati og leggst á eftir að endanlegt brunabótamat hefur fengist á eignina.
Forsendur söluyfirlits:
Söluyfirlit er samið af fasteignasala í samræmi við ákvæði laga nr. 70/2015. Þær upplýsingar sem fram koma í söluyfirliti þessu eru sóttar í opinberar skrár, til seljanda sjálfs og eftir atvikum til húsfélags. Seljandi veitir upplýsingar um eign í samræmi við upplýsingaskyldu laga um fasteignakaup nr. 40/2002. Fasteignasali sannreynir að þær upplýsingar séu réttar með sjónskoðun á eigninni. Fasteignasali getur ekki fullyrt um ástand og eiginleika þeirra hluta fasteigna sem ekki eru aðgengilegir og sjást ekki berum augum, t.d. lagnir, dren, skólp og þak.
Gjöld sem kaupandi þarf að standa straum af vegna kaupanna:
Stimpilgjald af kaupsamningi sem er hlutfall af fasteignamati. Stimpilgjald er 0,8% fyrir einstaklinga (0,4% við fyrstu kaup m.v. að lágmarki 50% eignarhlut) og 1,6% fyrir lögaðila. Þinglýsingargjald hvers skjals er kr. 2.700,-. Lántökugjald lánastofnunar skv. gjaldskrá viðkomandi lánveitanda. Umsýsluþóknun fasteignasölu skv. gjaldskrá. Ef um nýbyggingu er að ræða greiðir kaupandi skipulagsgjald, 0,3% af brunabótamati, þegar það er lagt á.
TORG fasteignasala bendir fasteignakaupendum á ríka skoðunarskyldu kaupenda sem kveðið er á í lögum um fasteignakaup nr. 40/2002. Skorað er á kaupendur að kynna sér vandlega ástand fasteigna og nýta til þess aðstoð sérfræðinga. Sömuleiðis er bent á upplýsingaskyldu seljanda samanber 26.gr. Laga nr.40/2002 um fasteignakaup og 25.gr. laga nr.26/1994 um fjöleignarhús. Seljanda er bent á að kynna sér tilvitnaðar lagagreinar.