Löggiltir fasteignasalar innan Félags fasteignasala:
Ástþór Reynir Guðmundsson
Vigdís R. S. Helgadóttir
Guðbjörg Helga Jóhannesdóttir
Gylfi Jens Gylfason
Sigrún Matthea Sigvaldadóttir
Sveinn Gíslason
Páll Guðmundsson
Þórarinn Arnar Sævarsson
Berglind Hólm Birgisdóttir
Þorsteinn Gíslason
Guðrún Lilja Tryggvadóttir
Brynjar Ingólfsson
Guðný Þorsteinsdóttir
Bjarni Blöndal
Þorsteinn Ólafs
Þórdís Björk Davíðsdóttir
Jóhann Kristinn Jóhannesson
Bjarný Björg Arnórsdóttir
Salvör Þóra Davíðsdóttir
Magga Sigríður Gísladóttir
Upplýsingar
Byggt 1985
228,1 m²
8 herb.
2 baðherb.
5 svefnh.
Þvottahús
Bílskúr
Útsýni
Sérinngangur
Lýsing
Dagbjartur Willardsson lgf. og RE/MAX kynna einbýlishúsið Jakasel 38 fnr. 205-7350
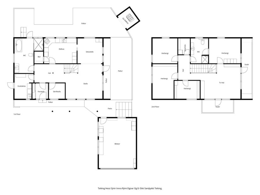
Nánari lýsing: Húsið er byggt árið 1985 og er úr timbri. Húsið er skráð hjá 228,1 fm og þar af er bílskúr 35 fm. Þar sem hluti efri hæðar er undir súð þá eru nýtanlegir fermetrar fleiri en skráðir eru. Húsið stendur á rólegum og fjölskylduvænum stað, í göngufæri við skóla, íþróttasvæði og verslanir.
FÁÐU SENT SÖLUYFIRLIT YFIR EIGNINA HÉR.
Aðkoma: Hellulagt bílaplan. Einnig er hellulagt að inngangi neðri í húsið og fyrir framan. Hitalögn er undir hellulögn fyrir framan skúrinn sem og að inngangi og gangstéttum við húsið.
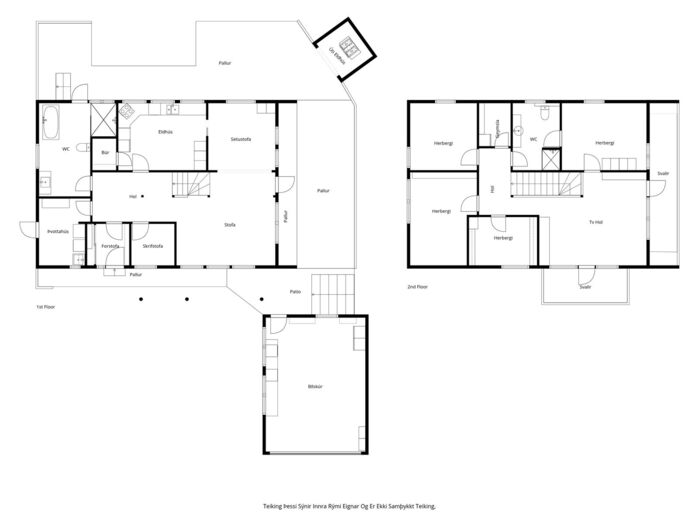
NEÐRI HÆÐ:
Forstofa: Flísar á gólfi. Fataskápur.
Baðherbergi: Flísalagt í hólf og gólf með fallegum stórum flísum. Inngöngusturta með glerþili. Frístandandi baðkar. Innrétting með handlaug. Innfelld lýsing í lofti. Gólfhiti er í baðherbergi. Útgengt á baklóð í heitan pott.
Eldhús: Parket á gólfi. Rúmgóð vönduð innrétting með góðu skápaplássi. Flísalagt með mosaikflísum á gluggavegg. Helluborð með háfi yfir. Bakstursofn í vinnuhæð. Búr er inn af eldhúsi og með góðri innréttingu og flísum á gólfi.
Þvottahús: Flísar á gólfi. Góð innrétting fyrir þvottavél og þurrkara í vinnuhæð með skúffum fyrir neðan. Útgengt úr þvotthúsi á lóð.
Stofa/Borðstofa: Parket á gólfi. Útgegnt á sólpall með skjólveggjum og útihúsi þar sem byggt hefur verið yfir grillið á smekklegan hátt.
Svefnherbergi/Vinnurými: Eitt svefnherbergi er á neðri hæð en það er nýtt í dag sem vinnurými. Parket á gólfi.
EFRI HÆÐ:
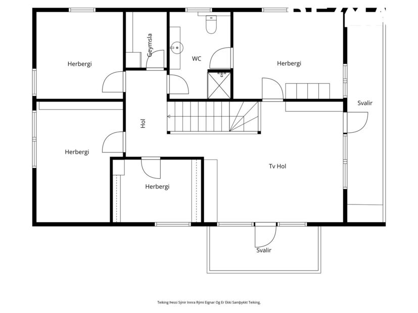
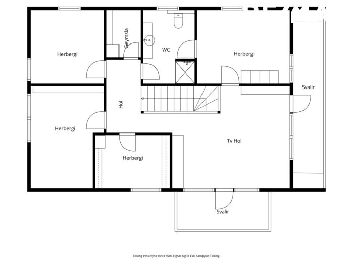
Svefnherbergi: Eru fjögur og er parket á gólfum þeirra allra.
Baðherbergi: Flísalagt í hólf og gólf. Innrétting með handlaug. Sturtuklefi. Upphengt salerni.
Stofa/sjónvarpsrými: Parket á gólfi sem er farið að sjá á. Útgengt á tvennar svalir sem snúa til suðurs og vesturs.
Geymsla: Lítil geymsla er á hæðinni.
Lóð: Lóðin er einstaklega smekkleg með palli og skjólveggjum. Heitur pottur þar sem stýring er í þvottahúsi. Gott hús fyrir grillið. Hitalögn undir hellulögn við húsið.
Bílskúr: Er skráður 35 fm. Heitt og kalt vatn og rafmagn. Innkeyrsluhurð með fjaropnun. Inngönguhurð í skúrinn er á bakhlið. Hellulagt bílaplan með hitalögn.
Einstaklega falleg og snyrtileg eign sem til dæmis hentar stórum fjölskyldum. Eignin hefur fengið gott viðhald og umhyggju. Húsið er vel staðsett í enda á botnlanga og því lítil aukaumferð við húsið. Núverandi eigendur eru aðrir eigendur hússins frá byggingu þess árið 1985. Núverandi eigendur keyptu eignina 2004.
Húsið hefur fengið gott viðhald og hér fyrir neðan er yfirlit yfir það sem hefur verið gert síðustu árin.
- Málun á ytra byrði hússins 2021. Þak málað 2022.
- Rúðum sem móða hefur safnast í skipt út jafnóðum með nýjum listum
- Rafmagnstafla algjörlega endurnýjuð 2023 og dregið í allt á neðri hæðinni ásamt því sem skipt var úr Ticino gömlu gerðinni í venjulega tnegla og rofa. Skipt var um allar tengla og rofa á efri hæð 20025 og þá jafnframt sett USB-c tengi í þrjú svefnherbergi
- Flúrljós undir þakskeggi á húsi og bílskúr eru nú LED ljós og öll önnur útilýsing er LED. Jafnframt var settur GPS rofi fyrir ljósin í töflu.
- Tréveggur við suðurhlið og pallur við austurhlið 2022 og grillskýli sama ár.
- Baðherbergi á neðri hæð endurnýjað með nýjum lögnum og innra byrði veggja 2022 og allar neysluvatnslagnir endurnýjaðar á neðri hæð. Settur varmaskiptir í þvottahús. Gerðar dyr á austurvegg baðherbergis og heitavatnspottur með stýringu í þvottahúsi.
- Vatnslagnir milli húss og bílskúrs hafa verið endurnýjaðar með rör-í-rör lögn.
- Búið er að endurnýja flesta ofna í húsinu.
- Báðar svalirnar voru endurnýjaðar fyrir fimm árum úr gagnvörðu efni.
Allar nánari upplýsingar veita Dagbjartur Willardsson lgf. í síma 861-7507 eða daddi@remax.is
Gjöld sem kaupandi þarf að standa straum af vegna kaupanna:
1. Stimpilgjald af kaupsamningi - 0,8% af heildarfasteignamati hjá einstaklingum. (Sé um fyrstu kaup að ræða er stimpilgjald af kaupsamningi 0,4%)
2. Stimpilgjald af kaupsamningi - 1,6% af heildarfasteignamati hjá lögaðilum.
3. Þinglýsingagjald af kaupsamningi, veðskuldabréfi, veðleyfi o.fl. 2.700 kr. af hverju skjali.
4. Lántökugjald lánastofnunar - sjá heimasíður lánastofnanna.
5. Umsýslugjald til fasteignasölu 59.900. kr. m.vsk.
Í lögum um fasteignakaup nr. 40/2002 er kveðið á um ríka skoðunarskyldu kaupenda á fasteignum. Vill Remax Senter því skora á væntanlega kaupendur að kynna sér vel ástand fasteigna fyrir kauptilboðsgerð og leita til þar til bærra sérfræðinga um nánari skoðun.
Nánari lýsing: Húsið er byggt árið 1985 og er úr timbri. Húsið er skráð hjá 228,1 fm og þar af er bílskúr 35 fm. Þar sem hluti efri hæðar er undir súð þá eru nýtanlegir fermetrar fleiri en skráðir eru. Húsið stendur á rólegum og fjölskylduvænum stað, í göngufæri við skóla, íþróttasvæði og verslanir.
FÁÐU SENT SÖLUYFIRLIT YFIR EIGNINA HÉR.
Aðkoma: Hellulagt bílaplan. Einnig er hellulagt að inngangi neðri í húsið og fyrir framan. Hitalögn er undir hellulögn fyrir framan skúrinn sem og að inngangi og gangstéttum við húsið.
NEÐRI HÆÐ:
Forstofa: Flísar á gólfi. Fataskápur.
Baðherbergi: Flísalagt í hólf og gólf með fallegum stórum flísum. Inngöngusturta með glerþili. Frístandandi baðkar. Innrétting með handlaug. Innfelld lýsing í lofti. Gólfhiti er í baðherbergi. Útgengt á baklóð í heitan pott.
Eldhús: Parket á gólfi. Rúmgóð vönduð innrétting með góðu skápaplássi. Flísalagt með mosaikflísum á gluggavegg. Helluborð með háfi yfir. Bakstursofn í vinnuhæð. Búr er inn af eldhúsi og með góðri innréttingu og flísum á gólfi.
Þvottahús: Flísar á gólfi. Góð innrétting fyrir þvottavél og þurrkara í vinnuhæð með skúffum fyrir neðan. Útgengt úr þvotthúsi á lóð.
Stofa/Borðstofa: Parket á gólfi. Útgegnt á sólpall með skjólveggjum og útihúsi þar sem byggt hefur verið yfir grillið á smekklegan hátt.
Svefnherbergi/Vinnurými: Eitt svefnherbergi er á neðri hæð en það er nýtt í dag sem vinnurými. Parket á gólfi.
EFRI HÆÐ:
Svefnherbergi: Eru fjögur og er parket á gólfum þeirra allra.
Baðherbergi: Flísalagt í hólf og gólf. Innrétting með handlaug. Sturtuklefi. Upphengt salerni.
Stofa/sjónvarpsrými: Parket á gólfi sem er farið að sjá á. Útgengt á tvennar svalir sem snúa til suðurs og vesturs.
Geymsla: Lítil geymsla er á hæðinni.
Lóð: Lóðin er einstaklega smekkleg með palli og skjólveggjum. Heitur pottur þar sem stýring er í þvottahúsi. Gott hús fyrir grillið. Hitalögn undir hellulögn við húsið.
Bílskúr: Er skráður 35 fm. Heitt og kalt vatn og rafmagn. Innkeyrsluhurð með fjaropnun. Inngönguhurð í skúrinn er á bakhlið. Hellulagt bílaplan með hitalögn.
Einstaklega falleg og snyrtileg eign sem til dæmis hentar stórum fjölskyldum. Eignin hefur fengið gott viðhald og umhyggju. Húsið er vel staðsett í enda á botnlanga og því lítil aukaumferð við húsið. Núverandi eigendur eru aðrir eigendur hússins frá byggingu þess árið 1985. Núverandi eigendur keyptu eignina 2004.
Húsið hefur fengið gott viðhald og hér fyrir neðan er yfirlit yfir það sem hefur verið gert síðustu árin.
- Málun á ytra byrði hússins 2021. Þak málað 2022.
- Rúðum sem móða hefur safnast í skipt út jafnóðum með nýjum listum
- Rafmagnstafla algjörlega endurnýjuð 2023 og dregið í allt á neðri hæðinni ásamt því sem skipt var úr Ticino gömlu gerðinni í venjulega tnegla og rofa. Skipt var um allar tengla og rofa á efri hæð 20025 og þá jafnframt sett USB-c tengi í þrjú svefnherbergi
- Flúrljós undir þakskeggi á húsi og bílskúr eru nú LED ljós og öll önnur útilýsing er LED. Jafnframt var settur GPS rofi fyrir ljósin í töflu.
- Tréveggur við suðurhlið og pallur við austurhlið 2022 og grillskýli sama ár.
- Baðherbergi á neðri hæð endurnýjað með nýjum lögnum og innra byrði veggja 2022 og allar neysluvatnslagnir endurnýjaðar á neðri hæð. Settur varmaskiptir í þvottahús. Gerðar dyr á austurvegg baðherbergis og heitavatnspottur með stýringu í þvottahúsi.
- Vatnslagnir milli húss og bílskúrs hafa verið endurnýjaðar með rör-í-rör lögn.
- Búið er að endurnýja flesta ofna í húsinu.
- Báðar svalirnar voru endurnýjaðar fyrir fimm árum úr gagnvörðu efni.
Allar nánari upplýsingar veita Dagbjartur Willardsson lgf. í síma 861-7507 eða daddi@remax.is
Gjöld sem kaupandi þarf að standa straum af vegna kaupanna:
1. Stimpilgjald af kaupsamningi - 0,8% af heildarfasteignamati hjá einstaklingum. (Sé um fyrstu kaup að ræða er stimpilgjald af kaupsamningi 0,4%)
2. Stimpilgjald af kaupsamningi - 1,6% af heildarfasteignamati hjá lögaðilum.
3. Þinglýsingagjald af kaupsamningi, veðskuldabréfi, veðleyfi o.fl. 2.700 kr. af hverju skjali.
4. Lántökugjald lánastofnunar - sjá heimasíður lánastofnanna.
5. Umsýslugjald til fasteignasölu 59.900. kr. m.vsk.
Í lögum um fasteignakaup nr. 40/2002 er kveðið á um ríka skoðunarskyldu kaupenda á fasteignum. Vill Remax Senter því skora á væntanlega kaupendur að kynna sér vel ástand fasteigna fyrir kauptilboðsgerð og leita til þar til bærra sérfræðinga um nánari skoðun.