Löggiltir fasteignasalar innan Félags fasteignasala:
Gunnlaugur Hilmarsson
Vista
fjölbýlishús

Holtagerði 70

200 Kópavogur

112.400.000 kr.

754.362 þ.kr./m2
Fasteignanúmer

F2062542

Fasteignamat

102.250.000 kr.

Brunabótamat

66.350.000 kr.

Áhvílandi

0 kr.

Arion banki – Reikna lán
Upplýsingar
Verðsaga
svg
Byggt 1960
svg
149 m²
svg
4 herb.
svg
1 baðherb.
svg
3 svefnh.
svg
Þvottahús
svg
Garður
svg
Bílskúr
svg
Útsýni
svg
Sérinngangur
svg
Bílastæði
svg
Svalir

Lýsing

Fasteignaval ehf. kynnir fjölbýlishús í 200, Kópavogsbær

Fáðu nánari upplýsingar og gerðu tilboð á sölusíðu eignarinnar.

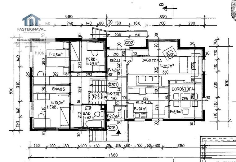
Fasteignaval / Gunnlaugur Hilmarsson kynna: Fallega og bjarta 149m2 hæð og bílskúr á frábærum stað við Holtagerði 70, 200 Kópavogur.

Íbúðin er 117,5m2 og bílskúr er 31,5m2.

Forstofa er flísalögð og með fatahengi. Eldhús er bjart og rúmgott með ljósri innréttingu og góðum tækjum, gólf er flísalagt. Björt og falleg borðstofa er inn af eldhúsi í opnu rými með stofu. Stofa er björt og rúmgóð með með parketi og flísum á gólfi. Svalahurð út á steypta verönd og af verönd eru steyptar tröppur niður í fallegan garð. Svefnherbergin eru þrjú. Hjónaherbergi er bjart og rúmgott með fataskáp og parket á gólfi. Barnaherbergin eru einnig björt og rúmgóð með parketi á gólfi. Baðherbergi er rúmgott með baðkari og upphengdu salerni, flísalagða veggi og dúkur á gólfi. Sameiginlegt þvottahús er með neðrihæð.

Bílskúr er rúmgóður og bjartur með góða lofthæð og þrjá glugga sem snúa til suðurs og út á lóð.

Skipt var um þakjárn og pappa árið 2010. Fyrir ca. 10 árum var dregið í nýtt rafmagn í alla íbúðina. Búið er að skipta um nánast alla ofna í íbúðinni. Árið 2025 var ein hlið hússins sprunguviðgerð, múruð og máluð. Skipt hefur verið um frárenslislögn að hluta.

Eignin er vel skipulögð og staðsetning er frábær þar sem stutt er í leikskóla, grunnskóla, sundlagu og verslun.

Allar upplýsingar veitir Gunnlaugur Hilmarsson, löggildur fasteignasali og viðskiptafræðingur, í síma 777 56 56, gunnlaugur@fasteignaval.is, og á skrifstofu í síma 517 26 00 eða á heimasíðu okkar www.fasteignaval.is

Kostnaður kaupanda:
1. Stimpilgjald af kaupsamningi –0,8% af heildarfasteignamati, 0,4% við fyrstu kaup og fyrir lögaðila 1,6% af heildarfasteignamati.
2. Þinglýsingagjald af kaupsamningi, veðskuldabréfi, veðleyfi o.fl. kr 3.800 af hverju skjali.
3. Lántökugjald lánastofnunar - almennt 1,0% af höfuðstól skuldabréfs.
4. Umsýslugjald til fasteignasölu, kr. 50.000 auk vsk. sbr. Kauptilboði.

Fyrirvarar:

Í lögum um fasteignakaup nr. 40/2002 er kveðið á um ríka skoðunarskyldu kaupenda á fasteignum. Vill seljandi því skora á væntanlega kaupendur að kynna sér vel ástand fasteignarinnar fyrir kauptilboðsgerð og leita til þar til bærra sérfræðinga um nánari skoðun.

Þær upplýsingar sem fram koma í söluyfirliti þessu eru sóttar í opinberar skrár, til seljanda sjálfs og eftir atvikum til húsfélags. Seljandi veitir upplýsingar um eign í samræmi við upplýsingaskyldu laga um fasteignakaup nr. 40/2002.

img
Gunnlaugur Hilmarsson
Lögg.fasteignasali innan félags fasteignasala
Fasteignaval
Hamraborg 14a, Kópavogur
Fasteignaval

Fasteignaval

Hamraborg 14a, Kópavogur
phone
img

Gunnlaugur Hilmarsson

Hamraborg 14a, Kópavogur
Ár
Fasteignamat
Kaupverð
Stærð
Fermetraverð
2. feb. 2007
22.480.000 kr.
29.600.000 kr.
149 m²
198.658 kr.
Byggt á upplýsingum úr Þjóðskrá Íslands frá 2006-2026
Fasteignaval

Fasteignaval

Hamraborg 14a, Kópavogur
phone

Gunnlaugur Hilmarsson

Hamraborg 14a, Kópavogur