Upplýsingar
Byggt 2024
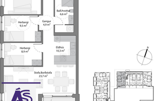
111,1 m²
4 herb.
1 baðherb.
3 svefnh.
Bílastæði
Lýsing
Glæsilegar nýjar 2ja til 4ra herbergja íbúðir við Áshamar 2-10 í Hamranesinu, Hafnarfirði. Sér bílastæði fylgir öllum íbúðunum.
Íbúðirnar skilast fullbúnar að innan og utan, með gólfefnum, innbyggðri uppþvottavél og ísskáp.
Stærðir: 66,7 - 121,1 fm
Herbergi: 2ja, 3ja og 4ra herbergja
Afhending: Fyrstu íbúðir eru tilbúnar til afhendingar við kaupsamning, síðustu íbúðir afhendast sumarið 2024.
Smelltu hér til að skoða sölusíðu íbúðanna
Skuggi byggir 140 íbúðir við Áshamar 2-10. Byggingarnar eru fjölbýlishús, fimm samtals á 6-7 hæðum, þrjú opin bílastæðahús eru á lóð, þar af 2 með þakgarði fyrir leiksvæði og 1 bílastæðahús á 2 hæðum. Eitt bílastæði tilheyrir hverri íbúð, sum eru undir bílastæðahúsi og önnur undir berum himni. Burðarkerfi hússins er staðsteypt, plötur á milli hæða eru filigran að undanskyldu þaki á bílastæðahúsi sem eru holplötur. Þrep í stigagöngum verða forsteypt og svalir, en svalagangar staðsteyptir. Húsið er einangrað að utan og klætt að mestu með álklæðningu. Íbúðum verður skilað fullfrágengnum með gólfefnum. Sameign og lóð skilast frágengin samkvæmt skilalýsingu seljanda og með hliðsjón af teikningum hönnuða.
- Innréttingar frá þýska framleiðandanum Nobilia.
- Eldhúsinnrétting er fullbúin með blöndunartækjum og eldhústækjum, þ.e. helluborði, viftu í innréttingu eða eyjuháfi yfir helluborði þar sem það á við, innbyggðum ísskáp, innbyggðri uppþvottavél og ofni.
- Geymslur á jarðhæð fylgja öllum íbúðum.
Hamranesið er nýtt og glæsilegt hverfi þar sem stutt er í alla helstu þjónstu, s.s. verslanir, grunn- og leikskóla, útibú tónlistarskóla Hafnarfjarðar, íþróttasvæði Hauka, sundlaugar, líkamsræktarstöðvar, apótek og falleg útivistarsvæði.
Byggingaraðili er traustur verktaki: Skuggi Byggingafélag.
Ath. myndirnar með auglýsingunni eru tölvumyndir og endurspegla ekki endilega útlit íbúðarinnar sem hér um ræðir.
Bókið skoðun og fáið nánari upplýsingar hjá sölumönnum Ás fasteignasölu:
Stefán Rafn Sigurmannsson löggiltur fasteignasali s. 655-7000 / stefan@as.is
Arnór Daði Eiríksson aðsoðarmaður fasteignasala s. 777-0939 / arnor@as.is
Svala Haraldsdóttir löggiltur fasteignasali s. 820-9699 / svala@as.is
Aron Freyr Eiríksson löggiltur fasteignasali s. 772-7376 / aron@as.is
Eiríkur Svanur Sigfússon löggiltur fasteignasali í s. 862-3377 / eirikur@as.is
Frábær staðsetning þar sem stutt er í helstu þjónustu og falleg útivistarsvæði.
Ás fasteignasala er rótgróið fyrirtæki sem hefur veitt alla almenna þjónustu í fasteignaviðskiptum frá árinu 1988.
www.facebook.com/asfasteignasala
www.instagram.com/as_fasteignasala
www.as.is
Íbúðirnar skilast fullbúnar að innan og utan, með gólfefnum, innbyggðri uppþvottavél og ísskáp.
Stærðir: 66,7 - 121,1 fm
Herbergi: 2ja, 3ja og 4ra herbergja
Afhending: Fyrstu íbúðir eru tilbúnar til afhendingar við kaupsamning, síðustu íbúðir afhendast sumarið 2024.
Smelltu hér til að skoða sölusíðu íbúðanna
Skuggi byggir 140 íbúðir við Áshamar 2-10. Byggingarnar eru fjölbýlishús, fimm samtals á 6-7 hæðum, þrjú opin bílastæðahús eru á lóð, þar af 2 með þakgarði fyrir leiksvæði og 1 bílastæðahús á 2 hæðum. Eitt bílastæði tilheyrir hverri íbúð, sum eru undir bílastæðahúsi og önnur undir berum himni. Burðarkerfi hússins er staðsteypt, plötur á milli hæða eru filigran að undanskyldu þaki á bílastæðahúsi sem eru holplötur. Þrep í stigagöngum verða forsteypt og svalir, en svalagangar staðsteyptir. Húsið er einangrað að utan og klætt að mestu með álklæðningu. Íbúðum verður skilað fullfrágengnum með gólfefnum. Sameign og lóð skilast frágengin samkvæmt skilalýsingu seljanda og með hliðsjón af teikningum hönnuða.
- Innréttingar frá þýska framleiðandanum Nobilia.
- Eldhúsinnrétting er fullbúin með blöndunartækjum og eldhústækjum, þ.e. helluborði, viftu í innréttingu eða eyjuháfi yfir helluborði þar sem það á við, innbyggðum ísskáp, innbyggðri uppþvottavél og ofni.
- Geymslur á jarðhæð fylgja öllum íbúðum.
Hamranesið er nýtt og glæsilegt hverfi þar sem stutt er í alla helstu þjónstu, s.s. verslanir, grunn- og leikskóla, útibú tónlistarskóla Hafnarfjarðar, íþróttasvæði Hauka, sundlaugar, líkamsræktarstöðvar, apótek og falleg útivistarsvæði.
Byggingaraðili er traustur verktaki: Skuggi Byggingafélag.
Ath. myndirnar með auglýsingunni eru tölvumyndir og endurspegla ekki endilega útlit íbúðarinnar sem hér um ræðir.
Bókið skoðun og fáið nánari upplýsingar hjá sölumönnum Ás fasteignasölu:
Stefán Rafn Sigurmannsson löggiltur fasteignasali s. 655-7000 / stefan@as.is
Arnór Daði Eiríksson aðsoðarmaður fasteignasala s. 777-0939 / arnor@as.is
Svala Haraldsdóttir löggiltur fasteignasali s. 820-9699 / svala@as.is
Aron Freyr Eiríksson löggiltur fasteignasali s. 772-7376 / aron@as.is
Eiríkur Svanur Sigfússon löggiltur fasteignasali í s. 862-3377 / eirikur@as.is
Frábær staðsetning þar sem stutt er í helstu þjónustu og falleg útivistarsvæði.
Ás fasteignasala er rótgróið fyrirtæki sem hefur veitt alla almenna þjónustu í fasteignaviðskiptum frá árinu 1988.
www.facebook.com/asfasteignasala
www.instagram.com/as_fasteignasala
www.as.is