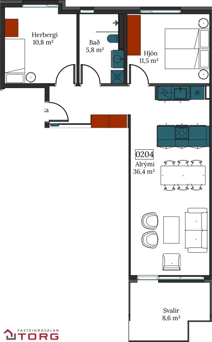
Áshamar 18, 221 Hafnarfjörður