Löggiltir fasteignasalar innan Félags fasteignasala:
Hannes Steindórsson
Bogi Molby Pétursson
Guðrún Antonsdóttir
Heimir Hallgrímsson
Hrafnkell P. H. Pálmason
Viðar Marinósson
Elías Haraldsson
Kristján Þórir Hauksson
Albert Bjarni Úlfarsson
Ragnar Þorsteinsson
Þórey Ólafsdóttir
Andri Freyr Halldórsson
Upplýsingar
65,3 m²
2 herb.
1 baðherb.
1 svefnh.
Sameiginl. inngangur
Bílastæði
Lyfta
Opið hús: 16. mars 2026
kl. 17:30
til 18:00
Opið hús: Hafnarbraut 18, 200 Kópavogur, Íbúð merkt: 01 03 11. Eignin verður sýnd mánudaginn 16. mars 2026 milli kl. 17:30 og kl. 18:00.
Lýsing
Hannes Steindórsson kynnir með stolti:
Útsýnisíbúð við sjóinn, með 20 fm yfirbyggðum svölum, aukinni lofthæð, bílastæði í bílakjallara og sérsmíðuðum innréttingum.
-20 fm yfirbyggðar svalir - Loftskipti - Sérsmíðaðar innréttingar Brúnás - QUARTZ borðplötur S. Helgason
-Hljóðdúkur - Álklætt með áltré gluggum - Sér grillgeymsla á svölum
Allar upplýsingar veitir: Hannes Steindórsson s.699-5008 hannes@fastlind.is
Nýtt og einstaklega vandað fjölbýlishús við sjávarsíðuna á vestanverðu Kársnesi, nálægt fyrirhugaðri Fossvogsbrú, samfelldur útivistastígur meðfram strandlengjunni.
Hér má skoða íbúðina og verkefnið.
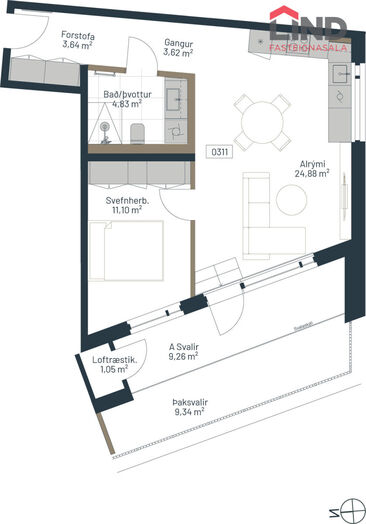
Íbúð 311 er tveggja herbergja íbúð á 3.hæð ásamt sérmerktu bílastæði í bílakjallara, 20 fm svölum yfirbyggðar að hluta.
Forstofa, svefnherbergi, baðherbergi, 24,8 fm alrými, stofa, eldhús og borðstofa. Sérgeymsla er í kjallara
Húsið er 5.hæða lyftuhús með 52 íbúðum. Áhersla lögð á gott skipulag, björt og vistleg rými.
Sérsmíðaðar innréttingar frá Brúnás, flísar 60x60 Stone Italiana, aukin lofthæð og
hlaðnir milliveggir.
Húsið er klætt að utan með sérhannaðri þýskri álklæðningu. Áltré gluggar,
þykkar ítalskar QUARTZ borðplötur í ljósum lit, Stone Italiana frá S.Helgasyni.
Afhending: Apríl 2026
Allar upplýsingar veita: Gunnar Valsson s.699-3702 gunnar@fastlind.is og Hannes Steindórsson s.699-5008 hannes@fastlind.is
Útsýnisíbúð við sjóinn, með 20 fm yfirbyggðum svölum, aukinni lofthæð, bílastæði í bílakjallara og sérsmíðuðum innréttingum.
-20 fm yfirbyggðar svalir - Loftskipti - Sérsmíðaðar innréttingar Brúnás - QUARTZ borðplötur S. Helgason
-Hljóðdúkur - Álklætt með áltré gluggum - Sér grillgeymsla á svölum
Allar upplýsingar veitir: Hannes Steindórsson s.699-5008 hannes@fastlind.is
Nýtt og einstaklega vandað fjölbýlishús við sjávarsíðuna á vestanverðu Kársnesi, nálægt fyrirhugaðri Fossvogsbrú, samfelldur útivistastígur meðfram strandlengjunni.
Hér má skoða íbúðina og verkefnið.
Íbúð 311 er tveggja herbergja íbúð á 3.hæð ásamt sérmerktu bílastæði í bílakjallara, 20 fm svölum yfirbyggðar að hluta.
Forstofa, svefnherbergi, baðherbergi, 24,8 fm alrými, stofa, eldhús og borðstofa. Sérgeymsla er í kjallara
Húsið er 5.hæða lyftuhús með 52 íbúðum. Áhersla lögð á gott skipulag, björt og vistleg rými.
Sérsmíðaðar innréttingar frá Brúnás, flísar 60x60 Stone Italiana, aukin lofthæð og
hlaðnir milliveggir.
Húsið er klætt að utan með sérhannaðri þýskri álklæðningu. Áltré gluggar,
þykkar ítalskar QUARTZ borðplötur í ljósum lit, Stone Italiana frá S.Helgasyni.
Afhending: Apríl 2026
Allar upplýsingar veita: Gunnar Valsson s.699-3702 gunnar@fastlind.is og Hannes Steindórsson s.699-5008 hannes@fastlind.is