Upplýsingar
Verðsaga
Byggt 2019
92,3 m²
3 herb.
1 baðherb.
2 svefnh.
Þvottahús
Bílastæði
Lýsing
Borg fasteignasala kynnir;
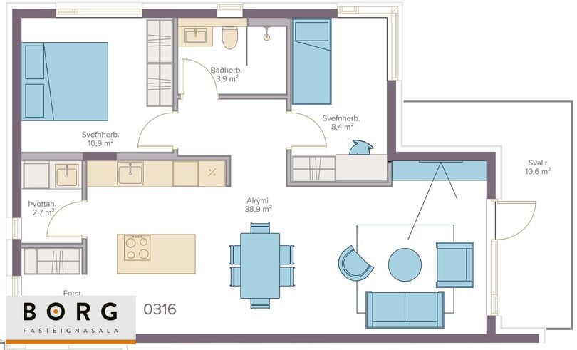
Nýlega þriggja herbergja 92,3 fm. íbúð merkta 03-16 í lyftuhúsi byggðu 2019 í miðbæ Reykjavíkur. Íbúðinni fylgir bílastæði í kjallara merkt B0-15.
Samkvæmt skráningu Þjóðskrár Íslands er birt flatarmál eignarinnar 92,3 fm, þar af er 10,5 fm. sérgeymsla í sameign.
Íbúðin skiptist í forstofu/anddyri, alrými með eldhúsi, 2 svefnherbergi, baðherbergi og þvottahús.
Nánari lýsing: Komið inn í flísalagt hol með góðum fataskáp. Stofa, borðstofa og eldhús í alrými, fallegt ljóst parket á gólfum. Svalir út frá stofum og gott útsýni yfir miðbæinn. Eldhús með fallegri hvítri innréttingu, granít bæði á innréttingu og eyju. Mjög gott skápapláss er í innréttingu. Baðherbergi er flísalagt hólf í gólf, hvít innrétting, góður sturtuklefi og gluggi.
Tvö góð svefnherbergi eru í íbúðinni, bæði með skápum. Flísalagt þvottahús með vaski og hvítum innréttingum er innan íbúðar.
Stæði í bílageymslu fylgir íbúðinni.
Frábærlega staðsett íbúð í fallegu fjölbýlishúsi í miðborg Reykjavíkur. Skjólgóður inngarður og gönguleiðir eru hannaðar af landslagsarkitekt hússins. Hverfið liggur ákaflega vel við samgöngum og styður vel við bíllausan lífsstíl fyrir þau sem það kjósa.
Tvö stigahús með lyftum eru í húsinu. Innkeyrsla í bílakjallara er um inngötu frá Vitastíg. Í húsinu eru tvær kjallarahæðir með bílastæðum og geymslum. Burðarvirki hússins er steinsteypt, veggir einangraðir að utan og klæddir með álplötum, steyptum plötum og viðarklæðningu. Hluti jarðhæðar og kjallara er einangraður að innan og múrhúðaður.
Nánari upplýsingar veitir:
Úlfar Þór Davíðsson. lögg. fasteignasali, í síma 788-9030, tölvupóstur, ulfar@fastborg.is
Nýlega þriggja herbergja 92,3 fm. íbúð merkta 03-16 í lyftuhúsi byggðu 2019 í miðbæ Reykjavíkur. Íbúðinni fylgir bílastæði í kjallara merkt B0-15.
Samkvæmt skráningu Þjóðskrár Íslands er birt flatarmál eignarinnar 92,3 fm, þar af er 10,5 fm. sérgeymsla í sameign.
Íbúðin skiptist í forstofu/anddyri, alrými með eldhúsi, 2 svefnherbergi, baðherbergi og þvottahús.
Nánari lýsing: Komið inn í flísalagt hol með góðum fataskáp. Stofa, borðstofa og eldhús í alrými, fallegt ljóst parket á gólfum. Svalir út frá stofum og gott útsýni yfir miðbæinn. Eldhús með fallegri hvítri innréttingu, granít bæði á innréttingu og eyju. Mjög gott skápapláss er í innréttingu. Baðherbergi er flísalagt hólf í gólf, hvít innrétting, góður sturtuklefi og gluggi.
Tvö góð svefnherbergi eru í íbúðinni, bæði með skápum. Flísalagt þvottahús með vaski og hvítum innréttingum er innan íbúðar.
Stæði í bílageymslu fylgir íbúðinni.
Frábærlega staðsett íbúð í fallegu fjölbýlishúsi í miðborg Reykjavíkur. Skjólgóður inngarður og gönguleiðir eru hannaðar af landslagsarkitekt hússins. Hverfið liggur ákaflega vel við samgöngum og styður vel við bíllausan lífsstíl fyrir þau sem það kjósa.
Tvö stigahús með lyftum eru í húsinu. Innkeyrsla í bílakjallara er um inngötu frá Vitastíg. Í húsinu eru tvær kjallarahæðir með bílastæðum og geymslum. Burðarvirki hússins er steinsteypt, veggir einangraðir að utan og klæddir með álplötum, steyptum plötum og viðarklæðningu. Hluti jarðhæðar og kjallara er einangraður að innan og múrhúðaður.
Nánari upplýsingar veitir:
Úlfar Þór Davíðsson. lögg. fasteignasali, í síma 788-9030, tölvupóstur, ulfar@fastborg.is
Ár
Fasteignamat
Kaupverð
Stærð
Fermetraverð
5. jún. 2020
46.750.000 kr.
59.000.000 kr.
92.3 m²
639.220 kr.
Byggt á upplýsingum úr Þjóðskrá Íslands frá 2006-2026